Lunn

Lunn

This contemporary family home in a woodland setting was built for a client who wanted to move out of the city. It is tucked away in a tranquil location on the edge of the South Downs National Park in Sussex. The challenge of this build was to create a house with minimal intervention that works with the landscape in this Area of Outstanding Natural Beauty. The design was inspired by nature – from the irregular timber cladding that echoes the pattern of trees, to the shape of the building with two distinct wings that reduce the visual impact of the house. Natural materials and muted colours allow it to blend seamlessly into its environment. Inside, the open-plan layout offers vistas through the house to the garden.

Fact sheet

Roof shape
Pitched roof
Façade
Timber
Bedrooms
5
Dimensions in m
1248 x 6,33 each wing
Gross External Area in ft² (incl. basement if present)
3430
Lunn

Architecture in harmony with nature

Architect

Magnus Nilsson

"Set in a rural location, the house has been designed as a barn with two storeys under a pitched roof. It comprises two entities that give the impression of sliding past one another, making them appear distinct – a nod to the incremental building practices of rural architecture. Externally, this minimises the visual impact, while internally it forms two separate, yet interconnected areas."

Lunn
Lunn
Lunn
Lunn
Lunn
Lunn
Lunn
Lunn

Broadening horizons

A fixed frame window in the master bedroom overlooks the dining area with views into the garden and surrounding woodland beyond. The large glass surface opens up the wall to create a feeling of space. A blind can be closed to ensure privacy. This window also provides an additional source of light for the kitchen and dining area below.

Lunn

A light touch

The double-height ceiling over the dining table creates a feeling of space with an interplay of light. The house has been designed so that that the rooms in which the family lives are facing south-west, with large windows to make the most of the views of the woodlands and surrounding nature. The functional rooms to the north-east are more private and have smaller windows.

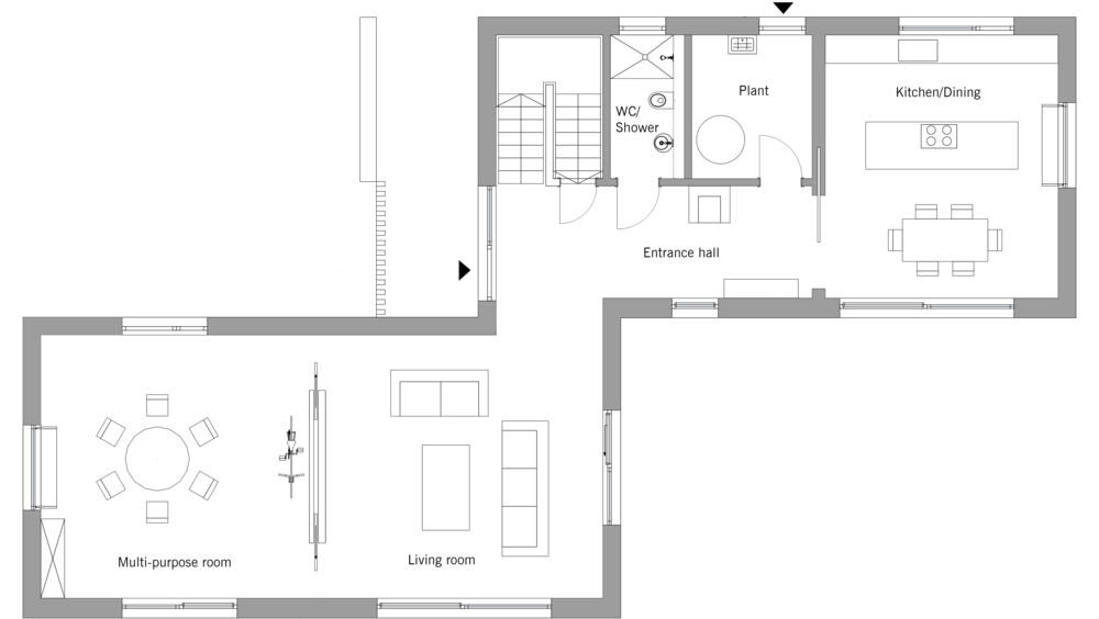
Floor plans

Ground Floor

First Floor

Lunn

"The house is set on a north-west to south-east axis. Large windows in the habitable rooms offer views of the garden with mature trees and the surrounding countryside."

Magnus Nilsson, architect

Looking for some inspiration? Request one of our catalogues

  • Carefully curated selection of bespoke Baufritz homes
  • Insights into the design, planning and build process
  • Expert opinions and testimonials
  • Printed on high-quality SFC®-certified, recycled paper
  • Eco-friendly, free shipping

Request a catalogue

  • Schritt 1
  • Schritt 2
  • Schritt 3
Which catalogue(s) would you like to receive? * ?

*Mandatory field

An error has occurred. Please try again later.

You want to know what to expect?

The catalogues at a glance

Baufritz Catalogue

This catalogue is filled with ideas and tips for designing and planning your Baufritz home. With information about sustainability, ecology and natural building materials. Get inspiration for your own bespoke home.

The Home

Step into a world of impressive, sustainable architecture. We talk to experts in the field of sustainable, innovative design. This brochure showcases outstanding Baufritz timber homes in the UK and abroad.