Barn L

Barn L

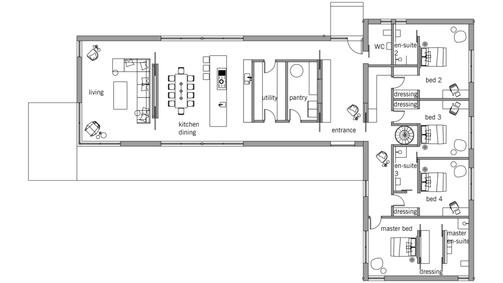
This large, barn-style house is part of our off-the-shelf Signature Homes range. It is a generous, single-storey, L-shaped house that is ideal for a spacious plot of land in the countryside. An open-plan kitchen, living and dining area takes up one wing of the house, with four bedrooms in the other, two en-suite and two sharing a Jack and Jill bathroom. The entrance hall and a utility room at the centre of the house create a quiet zone between the two. The loft space can be partially converted to create a study and hobby room that is accessed by a spiral staircase, as well as a multi-purpose space above the utility room that is open on one side with a black steel balustrade as fall protection. Alternatively, you can open up the roof space, revealing a stunning double-height, vaulted ceiling with exposed oak beams. You have full flexibility when it comes to the exterior cladding and the interior furnishings.

Do you like this design?

Take the next step towards your Baufritz home:

Fact sheet

Roof shape
Pitched roof
Façade
Timber
Bedrooms
4
Dimensions in m
29.45 x 19.45
Gross External Area in ft² (incl. basement if present)
4381
Barn L

Contemporary living in touch with nature

Architect

Ralf Pflugfelder

This is a single-storey, L-shaped barn with two distinct volumes: An open-plan kitchen and living area on one side of the house, and four bedrooms in a perpendicular wing. The spaces are interlinked, creating a natural flow. The roof space can be converted, or the oak rafters can be exposed to create a feeling of height.

Barn L
Barn L

At one with nature

This generous barn-style house is designed on a single level so that it hugs the ground. The natural stone and stained timber cladding allows it to blend harmoniously with its surroundings. The house meets the highest energy efficiency requirements with triple-glazed, aluminium-clad wooden windows, and is fitted with state-of-the-art technology with an A+ energy rating. Solar panels can be installed on the roof as an option.

Barn L

Create extra space

This barn-style houses gives you full flexibility in fitting out the interiors. The loft space can be partially converted to create a multi-purpose room that is separated from the entrance hall by a black steel balustrade. Daylight enters this space through a skylight with fixed glazing. The deep picture window in the hallway is a signature Baufritz design element.

Choose the cladding for your house

Floor plans

Ground Floor

Barn L

First Floor

Barn L

The floor plans shown are for illustration purposes only.

Barn L

A head for heights

If you choose to leave the roof space open, we will install a stunning double-height, vaulted ceiling with exposed oak beams above the open-plan dining and living area. Sliding French doors open onto the terrace, which we can also deliver on request.

Barn L

The finishing touch

Enjoy all the benefits of living in a sustainable Baufritz home. We use only certified natural materials in our houses to make sure your home is healthy to live in. The stylish interiors are expertly planned with a wide range of finishes, colour schemes, floorings and furnishings to choose from. Just ask us.

Classic XL

Our Signature Homes are a range of pre-designed house plans for customers who want a faster,
more efficient route to their Baufritz home. In addition to our Barn Collection, we offer
a more traditional design with our Classic Collection. Read about it here and watch an interview with our House Designers.

 

Our Signature Homes

Order your personal and detailed quotation

  • Exclusive Signature Homes Collection

  • Internationally renowned architect team

  • Pre-designed: short delivery time, full flexibility

  • Concierge service

  • Visionary

  • Digital version of our building specification 

Request a quotation

  • Schritt 1
  • Schritt 2
  • Schritt 3

Please send me a quotation for Barn L.

*Mandatory field

An error has occurred. Please try again later.