Barn L Compact

Barn L Compact

Barn L Compact, the latest addition to our Signature Homes range of pre-designed houses, blends a minimalist, clean design with traditional craftsmanship. Inspired by a bespoke client’s home in Hampshire, this house is a more compact take on Barn L from our contemporary Barn Collection, without compromising on the ecological principles and use of healthy materials that make a Baufritz home so unique. Built in an L shape with a pitched roof, it is ideally suited to a spacious plot of land in a rural setting. Stepping inside the generous entrance hall with a guest WC, one wing opens up to an open-plan kitchen with a cosy dining and living area with exposed trusses. This is separated from the bedroom wing by a utility block with a guest WC. There are three sizeable bedrooms on the ground floor, with a fourth built into the attic. A floor-to-ceiling window in the gable end of the house allows daylight to flood in, making this room an attractive snug, tucked away from the rest of the house.

Do you like this design?

Take the next step towards your Baufritz home:

Fact sheet

Roof shape
Pitched roof
Façade
Timber
Bedrooms
4
Dimensions in m
Wing one: 7.06 x 20.00
Wing two: 7.06 x 17.68
Gross External Area in ft² (incl. basement if present)
3715
Barn L Compact

Passive home in a compact design

Architect

Anthony Cooper

This pared-down version of Barn L combines a compact design with the sustainability and energy efficiency that customers expect from a Baufritz house. It meets the passive house standard with an airtight frame, mechanical ventilation with heat recovery, and an air-source heat pump.

Barn L Compact
Barn L Compact

Maximum use of space

Timber cladding and the combination of pitched and flat roofs allow the house to blend harmoniously with its natural surroundings. The space under the roof has been used to maximum effect with a well-designed storage unit and a loft extension with a guest bedroom.

Barn L Compact

An eye for detail

The simple design and clean lines of this beautiful house give it a contemporary look. The spacious hallway features interesting architectural details, such as a low-lying window. The arrangement of the windows helps to keep energy consumption to a minimum. The long view through to the dining and living room adds to the feeling of space.

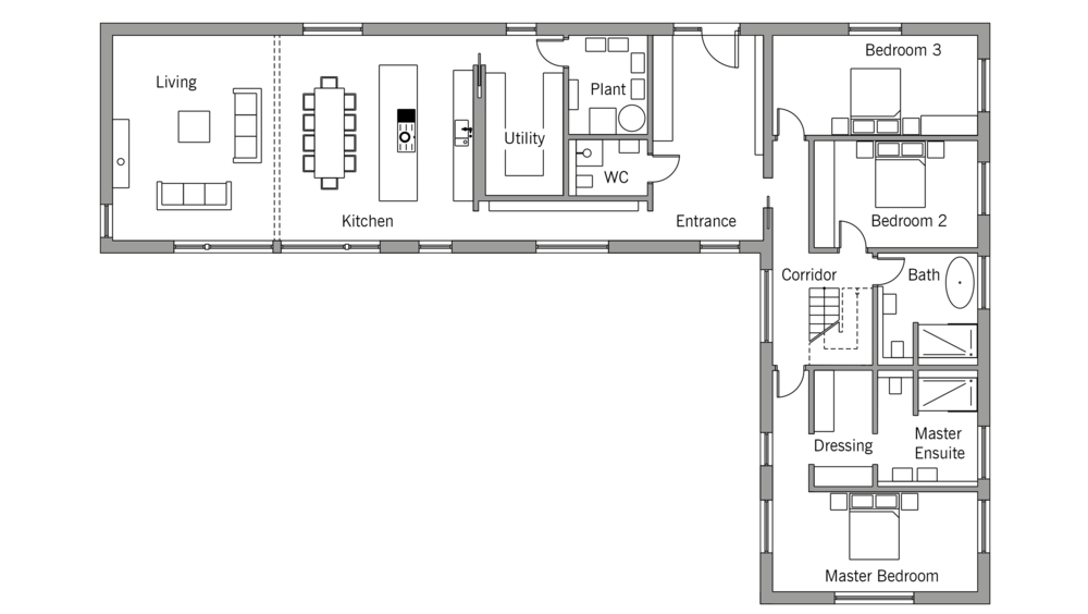
Floor plans

Ground Floor

Barn L Compact

First Floor

Barn L Compact

The floor plans shown are for illustration purposes only.

Barn L Compact

Secluded from view

Designed as a bungalow with a loft extension, the house comprises two wings set at a 90-degree angle. This has the advantage of creating two distinct volumes that separate the living area from the privacy of the bedrooms. The crook of the L provides an ideal spot for a secluded patio, sheltered from the street or neighbouring properties. 

Barn L Compact

Contemporary

The open-plan kitchen, dining and living area features a stunning double-height, vaulted ceiling with exposed trusses. Contemporary architecture blends here with traditional craftsmanship. Large windows welcome in the light, creating a bright, airy space. Sliding patio doors open onto the garden for a direct connection with nature in the warmer months of the year.

Introducing Barn L Compact – Smart Design, Timeless Craftsmanship

Barn L Compact is the latest addition to our Baufritz Signature Homes.
In this video, Baufritz UK’s CEO Oliver Rehm talks about why we decided to expand the range of barn-style houses
with a new, more compact and cost-efficient version of Barn L.

Choose the cladding for your house

Classic XL

Our Signature Homes are a range of pre-designed house plans for customers who want a faster,
more efficient route to their Baufritz home. In addition to our Barn Collection, we offer
a more traditional design with our Classic Collection. Read about it here and watch an interview with our House Designers.

 

Our Signature Homes

Order your personal and detailed quotation

  • Exclusive Signature Homes Collection

  • Internationally renowned architect team

  • Pre-designed: short delivery time, full flexibility

  • Concierge service

  • Visionary

  • Digital version of our building specification 

Request a quotation

  • Schritt 1
  • Schritt 2
  • Schritt 3

Please send me a quotation for Barn L Compact.

*Mandatory field

An error has occurred. Please try again later.