Hamilton

Hamilton

This two-storey longhouse in the Cotswolds with an attached double garage features elegantly contrasting façades in natural stone and timber. The barn-style home blends tradition and modernity by utilising traditional local materials, however the structure is built using modern methods of construction. The timber was logged from certified sustainably managed forests, and manufactured into panels at Baufritz's headquarters in Southern Germany.

Fact sheet

Roof shape
Pitched roof
Façade
Stone
Bedrooms
4
Dimensions in m
24.34 x 9.96
Gross External Area in ft² (incl. basement if present)
3874
Hamilton

Elegant mix of traditional and modern materials

CEO Baufritz (UK) Ltd.

Oliver Rehm

"Built in a contemporary, barn-style design with a timber and stone façade, this modern house blends with the surroundings and complies with the Local Development Plan and national guidelines. Natural slate and green roofs foster biodiversity and give the house an attractive, natural look."

Hamilton
Hamilton
Hamilton
Hamilton
Hamilton
Hamilton
Hamilton
Hamilton
Hamilton

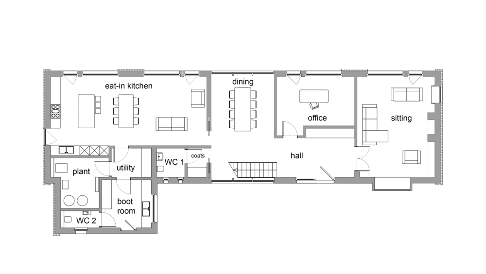
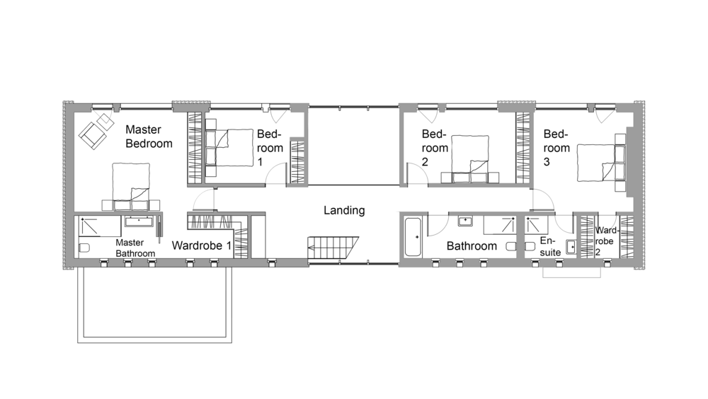
Floor plans

Ground Floor

First Floor