Neumann

Neumann

This modern two-storey house with a flat roof and natural timber cladding is set in a wooded landscape near the north German coast. It was designed as a bolthole for the clients, whose work has taken them all over the world. A sophisticated lighting concept with flicker-free LEDs showcases the considerable art collection the family has amassed on their travels, highlighting the artworks and presenting them in the best possible light. The ground floor library with floor-to-ceiling bookcases, and the adjacent living room both have deep window seats with concealed reading lamps.

Fact sheet

Roof shape
Flat roof
Façade
Timber
Bedrooms
1
Dimensions in m
12.58 x 8.83
Gross External Area in ft² (incl. basement if present)
2755
Neumann

The art of building

Architect

Stephan Rehm

“The Neumann house is set in natural surroundings, yet close to the city. The bespoke lighting concept was designed to accentuate the client’s collection of artworks from all over the world. Cleverly positioned lamps create structure in the hallway and rooms, opening up surprising new perspectives.”

Neumann
Neumann

"A library was always a must. Michael loves to read....we love listening to music. It’s a great place to relax."

Michael and Gabi Neumann

Read the homestory

Neumann
Neumann
Neumann
Neumann
Neumann
Neumann
Neumann
Neumann
Neumann

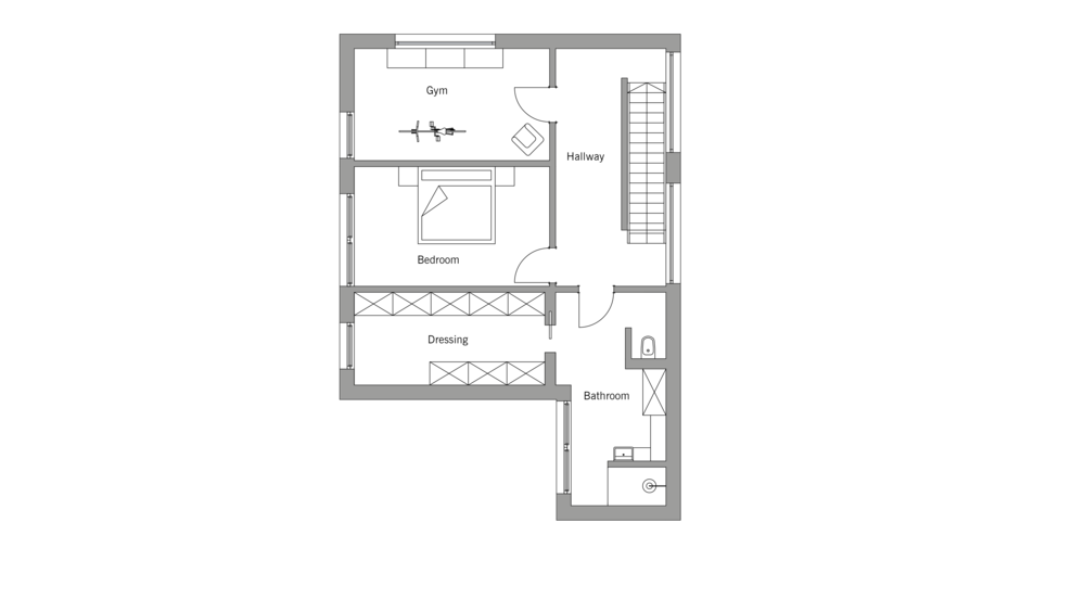
Floor plans

Ground Floor

Neumann

First Floor

Neumann