Woloszczuk

Woloszczuk

Astrid Wolosczcuk and her husband wanted a house that made the most of the available space inside without compromising on outdoor areas for relaxation. This spacious, four-storey modern house is designed in vertical sections, with terraces on each floor. As a result, the house does not have a conventional basement, but a lower ground floor with direct access to the back garden. At the rear, the house has an open-plan design with an atrium spreading over three floors connecting the living and dining areas.

Fact sheet

Roof shape
Flat roof
Façade
Wood-Plaster-Combination
Bedrooms
6
Dimensions in m
20.08 x 14.45
Gross External Area in ft² (incl. basement if present)
12732
Woloszczuk

An urban split-level home on six levels

Architect

Ralf Pflugfelder

"The house is designed as a merging of two distinctly different architectural styles. Tudor Revival is referenced by means of inserting wide blackened timber planks within the typically white rendered façades as a sign of the timber structure behind. The architecture within the Neoclassicist idiom incorporates classical pilaster designs as part of the wall and columns set away from the wall. The articulated use of post-and-beam creates a filigree lattice work of lines and shadows, giving a real sense of depth to the façade."

Woloszczuk

"For me the combination of function and beauty is very important."

Astrid Woloszcuk

Read the homestory

Woloszczuk
Woloszczuk
Woloszczuk
Woloszczuk
Woloszczuk
Woloszczuk
Woloszczuk
Woloszczuk

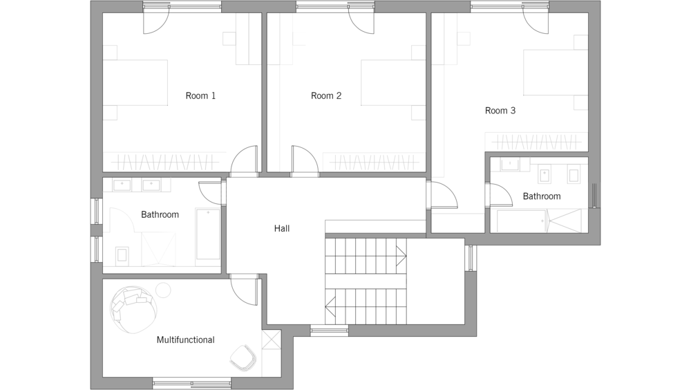
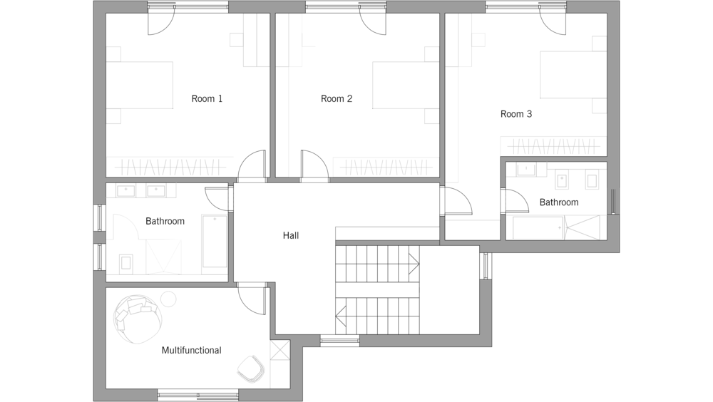
Floor plans

Basement

Ground Floor

First Floor

Second Floor