Steffen

Steffen

This striking, modern house belonging to the Steffen family was built in a residential area in Greater Frankfurt. It stands out with a steep pitched roof. The façade facing the road is classically reserved and blends harmoniously with the quiet street, while to the rear an impressive glazed façade overlooks the spacious garden. The sloping site makes the most of the views stretching to the hills of southern Hesse. Even the basement is cheery and inviting with floor-to-ceiling windows and access to the patio and garden. A south-facing balcony at the ground level on the side of the house rounds off the overall picture.

Fact sheet

Roof shape
Pitched roof
Façade
Stone
Bedrooms
5
Dimensions in m
12.58 x 9.45
Gross External Area in ft² (incl. basement if present)
4942
Steffen

A sense of space

CEO Baufritz (UK) Ltd.

Oliver Rehm

"The owners had travelled a lot and lived abroad for many years, so they knew exactly how they wanted their new house to look. They chose glass, stone and timber. In planning the house, we, as architects, worked closely with the owner family. The result is a harmonious blend of natural materials that convey a sense of space and a feeling of coming home."

Steffen
Steffen
Steffen
Steffen
Steffen

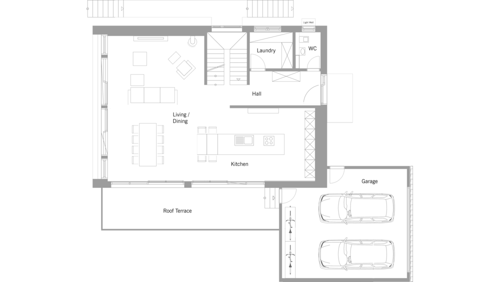
Floor plans

Ground Floor

First Floor

Attic

Basement