Lichtblick

Show house Lichtblick

Clean lines and the neutral tones of natural timber cladding give definition to the exterior of this modern show house in Erkheim, in the Allgäu region of southern Germany. The compact design draws on the typical architectural style of the Vorarlberg, a region of Austria that has gained a reputation for modern architecture in combination with traditional materials over the past 30 years. This stylish home on two floors atop a basement also features an annex. It was built utilising our innovative off-site construction system and therefore exceeds the latest environmental and climate protection standards.

Fact sheet

Roof shape
Pitched roof
Façade
Timber
Bedrooms
4
Dimensions in m
15.07 x 5.70
Gross External Area in ft² (incl. basement if present)
3020
Lichtblick

The ultimate eco-friendly, healthy home

Interior designer

Sigrid Krämer

"The "Lichtblick" show house exudes a cosy, warm atmosphere, thanks to the balanced use of timber and glass. Floor-to-ceiling windows on the ground floor allow plenty of natural light to enter the house."

Lichtblick
Lichtblick
Lichtblick
Lichtblick
Lichtblick
Lichtblick
Lichtblick
Lichtblick
Lichtblick
Lichtblick
Lichtblick
Lichtblick
Lichtblick
Lichtblick
Lichtblick
Lichtblick
Lichtblick
Lichtblick
Lichtblick
Lichtblick
Lichtblick
Lichtblick
Lichtblick

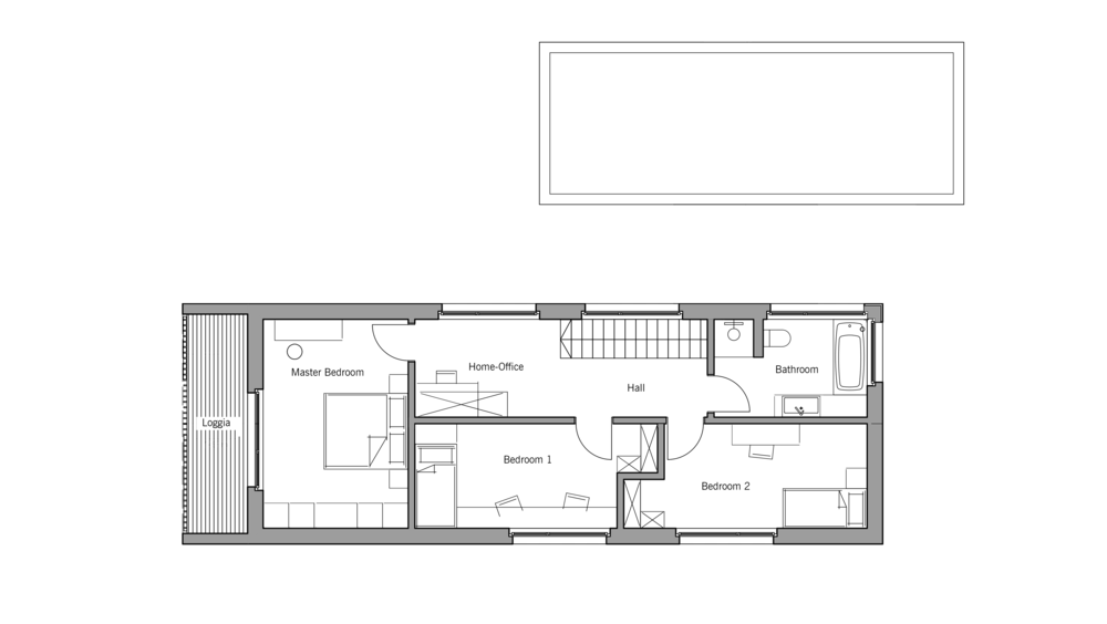
Floor plans

Ground Floor

Lichtblick

First Floor

Lichtblick

Basement

Lichtblick
Lichtblick

Visit our show house "Lichtblick"


How to find us:

Bau-Fritz GmbH & Co. KG
Eidlerholzstraße 12
D-87746 Erkheim/Allgäu

Opening times:
Monday to Friday, 10 am – 6 pm
Saturday, 10 am – 5 pm
 

VIEW OUR SHOW AND REFERENCE HOUSES