Woloszczuk

Kundenhaus

Woloszczuk

Das Haus Woloszczuk gliedert sich perfekt in seine räumliche Umgebung ein, da es die architektonischen Stile des Wohnviertels aufnimmt und auf individuelle Art und Weise in sich vereint. Der markante Tudorstil beispielsweise wird durch die breiten Holzbretter akzentuiert, die in Kombination mit der weiß verputzten Fassade eine gestalterische Symbiose bilden. Die neoklassizistische Note hingegen erhält das Gebäude dank klassischen Pilastern als Teil der Wand.

Hausdaten

Bauaufgabe
Einfamilienhaus
Haustyp
Individuell
Baustil
Modern / Design
Dachform
Flachdach
Fassade
Holz-Putz-Kombination
Baukörper
rechteckig
Personen
5+
Geschosse
3
Zimmeranzahl
14
Außenmaße in m
20,08 x 14,45
Wohnfläche in m² *
593
Preis ab
3.675.000 € i
Dafür steht Baufritz:
Woloszczuk

Feingefühl und Respekt vor der gewachsenen Umgebung

Architekt

Ralf Pflugfelder

"Das Haus befindet sich in attraktiver Lage, in der Nähe des Richmond Parks, südwestlich von London. Bestehende Häuser wurden durch neue, größere Objekte ersetzt und im Halbkreis angeordnet, dem sogenannten "Crescent". Dieser verleiht der Gegend einen besonderen Charakter. Obwohl es keine einheitliche Architektursprache gibt, dominieren vordergründig der englische Tudorstil sowie auch auffallende Formen des Neoklassizismus, welche sich beide im Haus Woloszczuk wiederfinden."

Woloszczuk

"Die Kombination aus Funktion und Schönheit ist für mich enorm wichtig."

Bauherrin Astrid Woloszcuk

Woloszczuk

Fläche ideal nutzen

Wo die Nachfrage nach verfügbarer Grundfläche so hoch ist wie hier, entsteht die attraktive Lösung in die Höhe. Anstelle eines konventionellen Kellers haben die Bauherren sich dazu entschlossen, auch das gesamte Untergeschoss des Designhauses als Wohnfläche und mit direktem Zugang zum Garten zu nutzen.

Woloszczuk
Woloszczuk
Woloszczuk
Woloszczuk
Woloszczuk
Woloszczuk
Woloszczuk
Woloszczuk

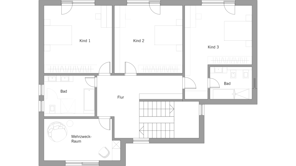
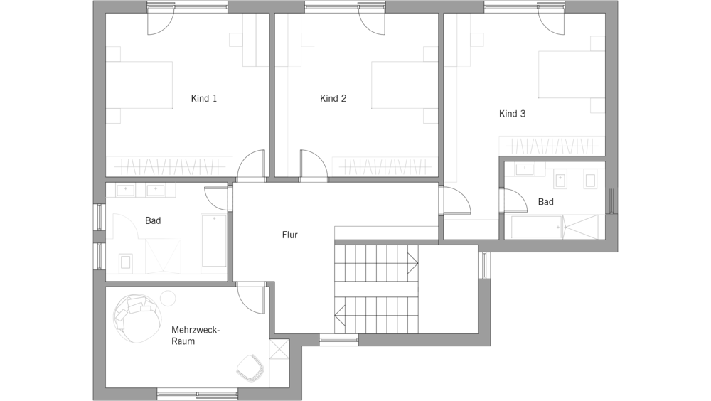
Grundrisse

UG

EG

1. OG

2. OG

* Die Quadratmeter-Angaben beziehen sich auf die Nettogeschossfläche und sind nicht gleichzusetzen mit der Wohnfläche nach DIN. Bei Häusern mit Kniestock (z. B. Doppelhaus) kann die angegebene Zahl dementsprechende Abweichungen zwischen der angegebenen Bodenfläche und Wohnfläche aufweisen.

Diese Themen könnten Sie auch interessieren

14 Schritte bis zu Ihrem Wunschhaus

Es sind exakt 14 Schritte bis zu Ihrem neuen Baufritz-Zuhause. Warum wir Ihnen das versprechen können? Weil wir wissen, wie …

14 Schritte bis zu Ihrem Wunschaus

10 Gründe für Baufritz

Haushersteller gibt es viele. Welche Kriterien wirklich zählen? Machen Sie einfach den Vergleich ...

10 Gründe für Baufritz

Sie haben Fragen?

Finden Sie Ihren persönlichen Fachberater ganz in Ihrer Nähe und vereinbaren Sie gleich einen Termin.

Fachberater-Suche