
14 Schritte bis zu Ihrem Wunschhaus
Es sind exakt 14 Schritte bis zu Ihrem neuen Baufritz-Zuhause. Warum wir Ihnen das versprechen können? Weil wir wissen, wie …
Sie möchten alle Vorteile von myBaufritz nutzen? Dann melden Sie sich bitte jetzt an.
Kundenhaus
Architekt
Daniel Wagner
"Natur trifft Design: Die exponierte Hanglage und die schwebende Architektur ohne sichtbare Stützen machen dieses moderne Designhaus zu etwas ganz Besonderem. Das Grundstück: 30 Meter über der Ortschaft. Es erforderte höchste Professionalität, um das künftige Wohndomizil an den steil abfallenden Felshang anzuschmiegen. Dank eines Spezialkrans konnten die vorgefertigten Bauelemente über bestehende Gebäude hinweg zur Baustelle befördert werden. Der Einsatz einfacher Formen und Materialien sorgt nun für eine beispielhafte Verbindung zwischen moderner Wohnarchitektur und Natur."
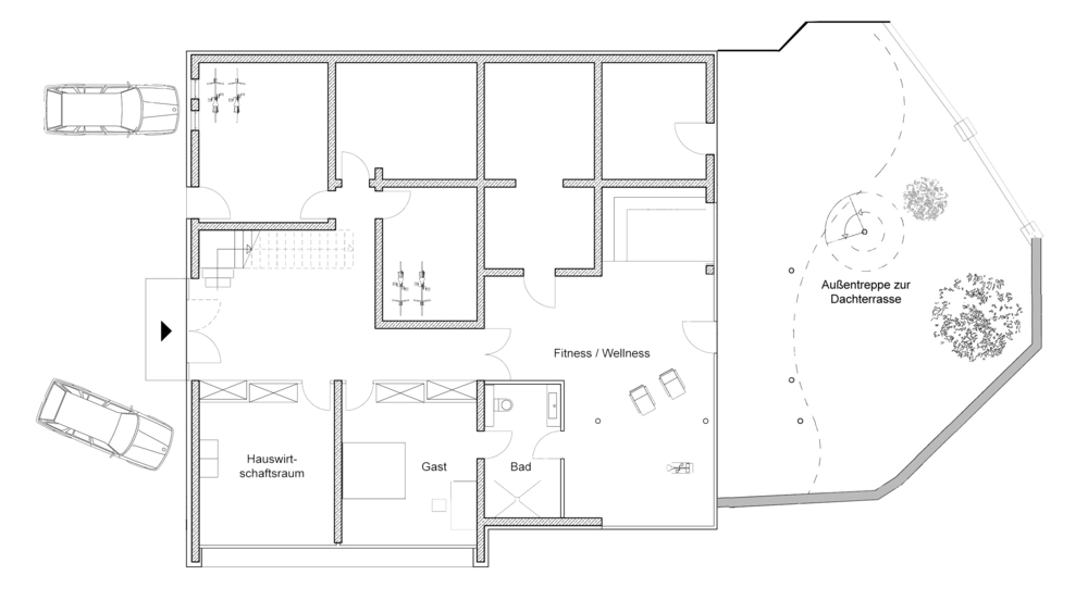
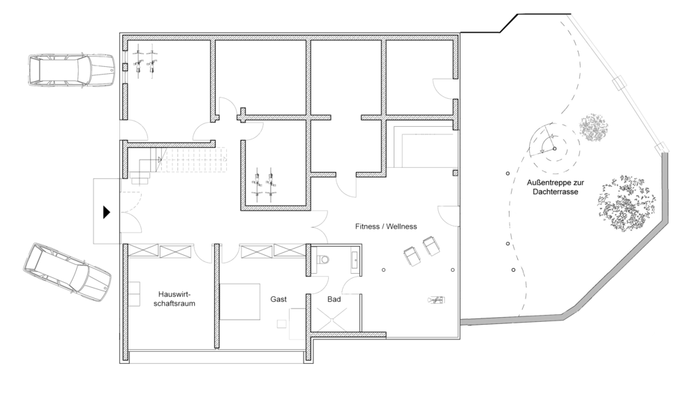
Der Zugang erfolgt über die Nordfassade. Um das Designhaus in die bestehende Architektur einzupassen, wählte der Eigentümer hier einen biologischen Mineralputz in Terrakotta. In der am Grundstück gelegenen denkmalgeschützten Festungsmauer befinden sich Ziegeleinschlüsse in exakt diesem Farbton. Die Tradition der Holzfassaden in der Region nimmt die naturbelassene Lärchenverschalung auf. Die doppelflügelige Eingangstür führt in das Untergeschoss mit eigenem Fahrradraum, Gästezimmer mit Bad, die Garderobe und den Heizungsbereich. Über den Fitness- und Wellnesstrakt gelangt man direkt auf die Terrasse und den Garten.
Nach oben alles offen
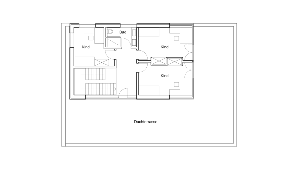
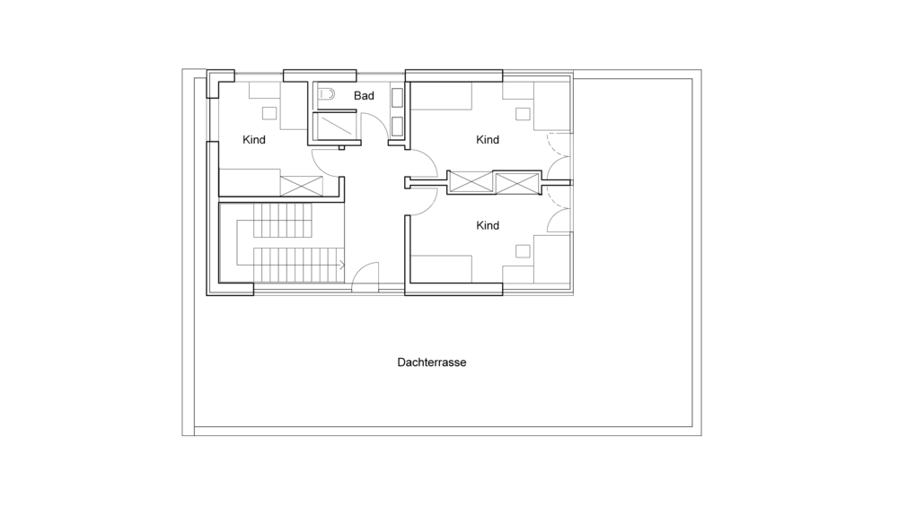
Eine einläufige Treppe erschließt das Obergeschoss. Raffiniert: Die massiven Holzstufen wurden in die Schalung eingeklemmt, dadurch scheinen sie zu schweben.
Hier ist der Wald zu tisch
Treffpunkt für Familie und Freunde ist der Esstisch. „Der 800 Kilo schwere Baumstamm wurde noch während der Bauphase mit einem Kran angeliefert, erklärt Daniel Wagner. Zwei komplett verschweißte Monoblöcke aus Edelstahl nehmen den Spül- und Kochbereich auf. Der Clou: Gerüche werden direkt am Gasherd nach unten abgesaugt und über einen Lüftungskanal ins Freie geleitet.