Tessin

Kundenhaus

Tessin

Eleganz hat ihre eigene Gesetzmäßigkeit. Es ist wohl jene Ausgewogenheit der linientreuen Architektur, der edlen Farbgebung, der formschön empfundenen Proportionen, des weitläufigen Wohn- und Lebensraums, die hier direkt berührt. Und diese Eleganz wirkt nach, täglich, von jeder Seite und aus jeder Perspektive immer aufs Neue.

Hausdaten

Bauaufgabe
Einfamilienhaus
Haustyp
Individuell
Baustil
Bauhaus / Kubus
Dachform
Flachdach
Fassade
Holz
Baukörper
rechteckig
Personen
2 - 4
Geschosse
2
Zimmeranzahl
6
Außenmaße in m
43,60 x 16,75
Wohnfläche in m² *
373
Preis ab
1.785.000 € i
Dafür steht Baufritz:
Tessin

Die Gesetzmäßigkeiten der Eleganz neu denken

Technische Leitung

Markus Merk

"Kundenwunsch war beim Haus Tessin: eine großzügige, moderne Villa mit Schwimmbad und einem separaten Trakt für den erwachsenen Sohn bzw. gegebenenfalls für Gäste. Die Herausforderung für Baufritz bestand darin, ein Gebäudeensemble zu entwickeln, das sich einerseits in die Landschaft einfügt und dem nahen Bergpanorama Rechnung trägt, anderseits aber auch den Wünschen des Bauherrn nach Privatsphäre entgegenkommt. Entstanden ist eine luxuriöse Villa mit traumhaftem Blick in die Berge. Mit verschiedenen Außenbereichen, die zum Sonnetanken einladen und genug Raum für Erholung an der frischen Luft bieten."

Tessin

Das in drei verschiedene Baukörper strukturierte, repräsentative Ensemble im Bauhaus Stil (Haupt-, Nebenhaus und Spa-Bereich) steht im harmonischen Dialog miteinander und zugleich auch zur stimmungsvoll inszenierten Gartenanlage und zur traumhaften, südlichen Umgebung des Lago Maggiore. Zum Garten hin offen und nach außen geschlossen, bietet es Licht und Durchsicht im Innenraum sowie einen wind- und blickgeschützten Außenraum. Klare Material– und Farbenwahl: Die hochwertige Materialkombination umfasst Holz und Glasfassaden, in denen sich die Landschaft widerspiegelt, in Silber, Schwarz und Weiß gestaltet.

Im Inneren verstärken hohe, offene Räume den Eindruck von Weite und Großzügigkeit, folgen dabei einer klaren Struktur: Den Mittelpunkt bildet das Hauptgebäude. Es ist geprägt von einer fließend übergehenden Ess- und Wohnlounge mit Designkamin. Das nach Westen hin orientierte Nebengebäude ist konzipiert als autonome Wohneinheit für Gäste und bietet im EG Platz für den Fuhrpark.

Tessin
Tessin
Tessin
Tessin
Tessin
Tessin
Tessin
Tessin
Tessin
Tessin

Rein ins private Vergnügen

An das Hauptgebäude gliedert sich ein privater Spa-Bereich mit luxuriöser Schwimmhalle, Sauna und Dampfbad – eine Oase der Entspannung – an. Hier, wie in den meisten Räumen, geben bodentiefe Verglasungen und Schiebetüren den Blick in die Natur frei.

Tessin

Repräsentatives Outdoor-Leben

Platz zum Entspannen und Genießen bietet den Bewohnern auch die weite Gartenlandschaft mit herrlichen Terrassen- und Logenplätzen. Diese sind Rückzugsorte, aber auch ideal für den Empfang von Gästen, die man z. B. mit Köstlichkeiten aus der Outdoor-Küche begeistern kann.

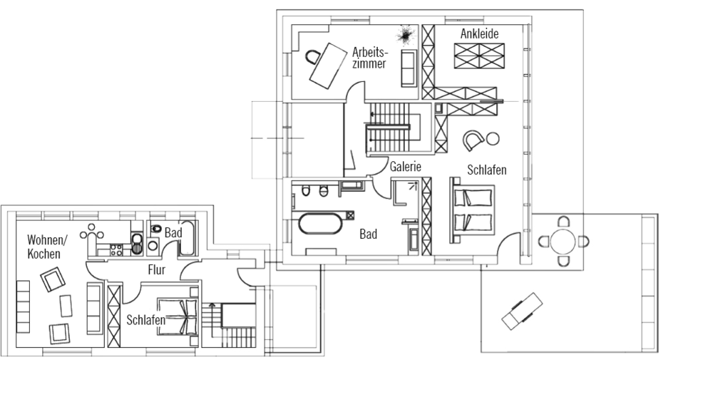
Grundrisse

EG

Grundriss Tessin von Erdgeschoss

DG

Grundriss Tessin von Dachgeschoss

* Die Quadratmeter-Angaben beziehen sich auf die Nettogeschossfläche und sind nicht gleichzusetzen mit der Wohnfläche nach DIN. Bei Häusern mit Kniestock (z. B. Doppelhaus) kann die angegebene Zahl dementsprechende Abweichungen zwischen der angegebenen Bodenfläche und Wohnfläche aufweisen.

Diese Themen könnten Sie auch interessieren

14 Schritte bis zu Ihrem Wunschhaus

Es sind exakt 14 Schritte bis zu Ihrem neuen Baufritz-Zuhause. Warum wir Ihnen das versprechen können? Weil wir wissen, wie …

14 Schritte bis zu Ihrem Wunschaus

10 Gründe für Baufritz

Haushersteller gibt es viele. Welche Kriterien wirklich zählen? Machen Sie einfach den Vergleich ...

10 Gründe für Baufritz

Sie haben Fragen?

Finden Sie Ihren persönlichen Fachberater ganz in Ihrer Nähe und vereinbaren Sie gleich einen Termin.

Fachberater-Suche