
14 Schritte bis zu Ihrem Wunschhaus
Es sind exakt 14 Schritte bis zu Ihrem neuen Baufritz-Zuhause. Warum wir Ihnen das versprechen können? Weil wir wissen, wie …
Sie möchten alle Vorteile von myBaufritz nutzen? Dann melden Sie sich bitte jetzt an.
Kundenhaus
Architekt
Hans-Georg Stotz
"Bei diesem Entwurf haben wir das konventionelle Satteldach einmal anders interpretiert. Das Dachgeschoss "sitzt" wie ein Schiffsdeck auf dem Erdgeschoss und ist rundum von einer Terrasse umgeben. Außen bilden kammergetrocknete Premiumhölzer die Fassade. Die hochwertige Bauweise jedes Baufritz-Hauses belegen wir mit unseren Gesundheits-, Qualitäts- und Energiezertifikaten."
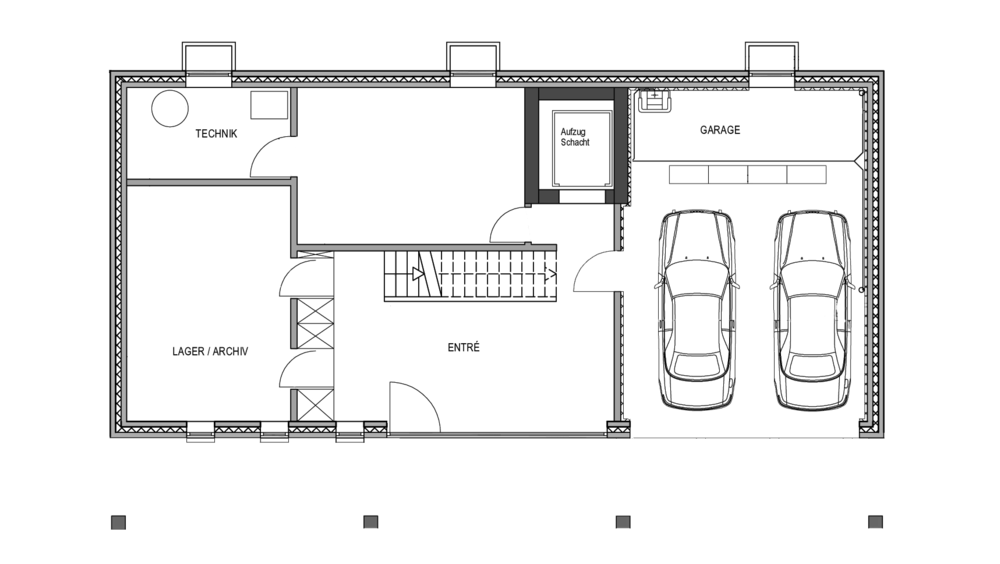
Barrierefrei über mehrere Etagen
Es entstand die Idee, die einzelnen Räume barrierefrei zu gestalten und den Geschossübergang per optisch attraktiver Wasserfalltreppe durch einen hauseigenen, äußerst komfortablen Aufzug zu ergänzen. Dieser führt vom Eingangsbereich im Untergeschoss (welcher im Übrigen auch bequem über die Doppelgarage zu erreichen ist) bis hinauf ins Dachgeschoss, wo sich der offen realisierte Wohn-Ess-Kochbereich befindet.
Wie ein Haus auf das Haus gesetzt
Großzügige Fensterfronten öffnen beim Stadthaus "Schwaab" fast umlaufend den Blick in die herrliche Natur. Die weitläufige Süd-Ost-Terrasse lädt zum Verweilen ein. Hier kann man die lauen Sommerabende dank der wind- und wettergeschützten Loggia bis in die Nacht hinein genießen.