Kundenhaus

Schneider

In dem Einfamilienhaus mit seiner reduzierten Gebäudeform, dem schmalen Dachüberstand und der „Rondo“-Holzverschalung spiegelt sich bereits auf den ersten Blick die gelungene Verbindung von Naturverbundenheit und Modernität wider. Der Wechsel von bodentiefen, flachen, breiten und quadratischen Fenstern bewirkt ein attraktives Gesamtbild. Reizvolle Kontraste zu der schlicht gehaltenen, naturbelassenen Fassade bilden die anthrazitfarbenen Fensterrahmen, das Satteldach mit den anthrazitfarbenen Ziegeln sowie die blauen Fenster-Schiebeläden, die an einigen der bodentiefen Fenster zur Verschattung dienen.

Hausdaten

Bauaufgabe
Einfamilienhaus
Haustyp
Individual
Baustil
Moderne Klassiker
Dachform
Satteldach
Fassade
Holz
Baukörper
rechteckig
Personen
2 - 4
Geschosse
2
Zimmeranzahl
5
Außenmaße in m
10,7 x 8,2
Wohnfläche in m²
135
Preis ab
515.000 € i
Dafür steht Baufritz:
Zertifizierte Wohngesundheit
Nachhaltig & klimaschonend
Individuelle Architektur
Festpreis & terminsicher
VDB-Zert serienmäßig
QNG ready

Wenn sich Ökologie ideal mit Design verbindet 

Architekt

Christian Hödl

"Dieses moderne Familienhaus besticht durch seine reduzierte Gebäudeform. Die anthrazitfarbenen Fensterrahmen bilden einen reizvollen Kontrast zur schlichten "Rondo"-Holzverschalung. Großflächige Glasschiebe- bzw. Flügeltüren sorgen für lichtdurchflutete Räume."

Durchgängiges Designkonzept

In der großzügigen Küche (inkl. Vorratsraum) stellt eine schnörkellose schwarze Kochinsel zugleich eine Verbindung wie auch Abgrenzung zu dem puristischen Essbereich dar. Sie bietet, ebenso wie die Einbauschrankwand, viel Stauraum. Extravaganter Blickfang zwischen Ess- und Wohnbereich ist der mannshohe Holzofen, dessen Außenkamin sich an der Südseite der Fassade befindet.

Holz - Weiß - Hellgrau - Schwarz

Der Wohnbereich ist mit einer Schiebetür verschließbar. Das durchgängige Farbkonzept findet sich im Essbereich mit dem Holztisch samt schwarzen Stühlen, der anthrazitfarbenen Zwischenwand und Schiebetür sowie in der hellgrauen, minimalistischen Sitzgarnitur im Wohnzimmer.

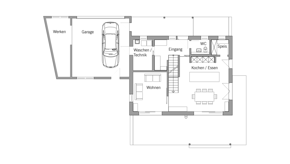
Grundrisse

EG

DG

Diese Themen könnten Sie auch interessieren

14 Schritte bis zu Ihrem Wunschhaus

Es sind exakt 14 Schritte bis zu Ihrem neuen Baufritz-Zuhause. Warum wir Ihnen das versprechen können? Weil wir wissen, wie …

14 Schritte bis zu Ihrem Wunschaus

10 Gründe für Baufritz

Haushersteller gibt es viele. Welche Kriterien wirklich zählen? Machen Sie einfach den Vergleich ...

10 Gründe für Baufritz

Sie haben Fragen?

Finden Sie Ihren persönlichen Fachberater ganz in Ihrer Nähe und vereinbaren Sie gleich einen Termin.

Fachberater-Suche