Schneider

Kundenhaus

Schneider

In dem Einfamilienhaus mit seiner reduzierten Gebäudeform, dem schmalen Dachüberstand und der „Rondo“-Holzverschalung spiegelt sich bereits auf den ersten Blick die gelungene Verbindung von Naturverbundenheit und Modernität wider. Der Wechsel von bodentiefen, flachen, breiten und quadratischen Fenstern bewirkt ein attraktives Gesamtbild. Reizvolle Kontraste zu der schlicht gehaltenen, naturbelassenen Fassade bilden die anthrazitfarbenen Fensterrahmen, das Satteldach mit den anthrazitfarbenen Ziegeln sowie die blauen Fenster-Schiebeläden, die an einigen der bodentiefen Fenster zur Verschattung dienen.

Hausdaten

Bauaufgabe
Einfamilienhaus
Haustyp
Individuell
Baustil
Moderne Klassiker
Dachform
Satteldach
Fassade
Holz
Baukörper
rechteckig
Personen
2 - 4
Geschosse
2
Zimmeranzahl
5
Außenmaße in m
10,7 x 8,2
Wohnfläche in m² *
135
Preis ab
525.000 € i
Dafür steht Baufritz:
Schneider

Wenn sich Ökologie ideal mit Design verbindet 

Christian Hödl

Architekt

Christian Hödl

"Dieses moderne Familienhaus besticht durch seine reduzierte Gebäudeform. Die anthrazitfarbenen Fensterrahmen bilden einen reizvollen Kontrast zur schlichten "Rondo"-Holzverschalung. Großflächige Glasschiebe- bzw. Flügeltüren sorgen für lichtdurchflutete Räume."

Schneider
Schneider
Schneider
Schneider
Schneider

Durchgängiges Designkonzept

In der großzügigen Küche (inkl. Vorratsraum) stellt eine schnörkellose schwarze Kochinsel zugleich eine Verbindung wie auch Abgrenzung zu dem puristischen Essbereich dar. Sie bietet, ebenso wie die Einbauschrankwand, viel Stauraum. Extravaganter Blickfang zwischen Ess- und Wohnbereich ist der mannshohe Holzofen, dessen Außenkamin sich an der Südseite der Fassade befindet.

Schneider

Holz - Weiß - Hellgrau - Schwarz

Der Wohnbereich ist mit einer Schiebetür verschließbar. Das durchgängige Farbkonzept findet sich im Essbereich mit dem Holztisch samt schwarzen Stühlen, der anthrazitfarbenen Zwischenwand und Schiebetür sowie in der hellgrauen, minimalistischen Sitzgarnitur im Wohnzimmer.

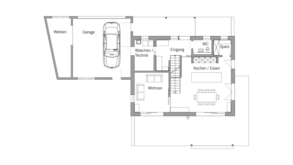
Grundrisse

EG

Schneider

DG

Schneider

* Die Quadratmeter-Angaben beziehen sich auf die Nettogeschossfläche und sind nicht gleichzusetzen mit der Wohnfläche nach DIN. Bei Häusern mit Kniestock (z. B. Doppelhaus) kann die angegebene Zahl dementsprechende Abweichungen zwischen der angegebenen Bodenfläche und Wohnfläche aufweisen.

Diese Themen könnten Sie auch interessieren

14 Schritte bis zu Ihrem Wunschhaus

Es sind exakt 14 Schritte bis zu Ihrem neuen Baufritz-Zuhause. Warum wir Ihnen das versprechen können? Weil wir wissen, wie …

14 Schritte bis zu Ihrem Wunschaus

10 Gründe für Baufritz

Haushersteller gibt es viele. Welche Kriterien wirklich zählen? Machen Sie einfach den Vergleich ...

10 Gründe für Baufritz

Sie haben Fragen?

Finden Sie Ihren persönlichen Fachberater ganz in Ihrer Nähe und vereinbaren Sie gleich einen Termin.

Fachberater-Suche