
14 Schritte bis zu Ihrem Wunschhaus
Es sind exakt 14 Schritte bis zu Ihrem neuen Baufritz-Zuhause. Warum wir Ihnen das versprechen können? Weil wir wissen, wie …
Sie möchten alle Vorteile von myBaufritz nutzen? Dann melden Sie sich bitte jetzt an.
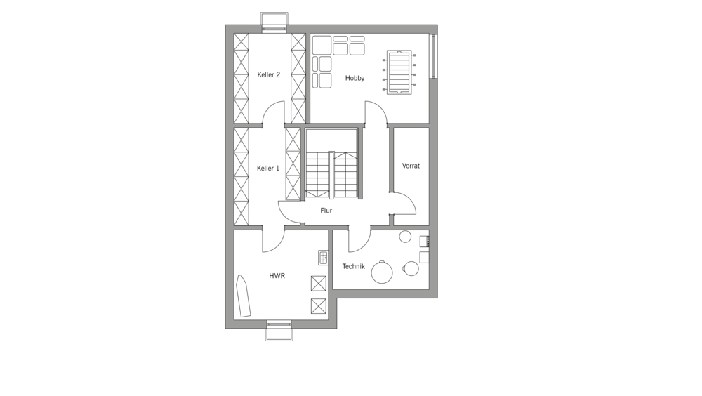
Kundenhaus
Architekt
Oliver Engelhardt
„Licht war großes planerisches Thema. Denn die Familie, vorher in einer lichten Altbauwohnung zuhause, wollte mit dem Sonnenstand und Lichteinfall leben. Entsprechend gibt es viele raumhohe Fenster und Türen, Übereck-Fenster, z.B. in der Küche, wo schon morgens die Sonne ins Haus darf, und den „Glasflur“ mit Galerie. Er ist zugleich optisch verbindendes Element zwischen den Ebenen.“
ÜBERZEUGT VOM INDIVIDUELLEN BAUEN
"Wir haben uns ein individuelles Haus gewünscht, in das wir viele eigene Ideen einbringen können."
Hohe Ansprüche an Architektur und Design, mit gekonnten Lösungen, um Ordnung zu halten und dabei behaglich zu wohnen: Das Zuhause der fünfköpfigen Familie spiegelt die Wünsche und Bedürfnisse der Bauherren exakt wider.
Foto: M. Wagner, Fachschriften-Verlag
Mustergültig von Anfang an
Animiert von den Architektenplänen, ist in der Familie der Bauherren ein detailgetreues Minihaus ihres Ökohauses entstanden. Es hat von Beginn an Entscheidungen erleichtert, z.B. in Bezug auf den Kaminblock. Halbhoch im Raum platziert, bietet er attraktive Sichtachsen und ist Raumtrenner zugleich. Gläserne Einblicke auf den Feuerplatz vom Ess- und vom Wohnbereich aus machen das gemütliche Raumgefühl perfekt.
Alltagstaugliche Planung mit Licht und Herz
Die Galerie verbindet zwei Ebenen, als wäre alles eins. Fenster wurden bewusst über Eck gesetzt. Noch mehr Licht holen Fenster über der Galerie, ein Lichtband auf Höhe der Galerie und geschickt platzierte Dachfenster ins Haus. Überall ist das gute Gefühl von natürlicher Helligkeit, ergänzt um indirekte Lichtquellen. Und dank cleverer Schranklösungen findet alles fast wie zufällig, dabei perfekt geplant, seinen Platz.