Modern Living

Kundenhaus

Modern Living

Dieses Architektenhaus überzeugt nicht nur durch seinen modernen Bauhaus-Stil mit klassischem Flachdach, sondern insbesondere auch durch seine luxuriösen Raffinessen, wie dem weitläufigen Dachgarten mit angrenzendem Penthouse-Studio. In sieben Zimmern, verteilt auf drei Etagen, hat die Familie genügend Platz, um sich frei zu entfalten. Zudem liefert das Energiesparhaus durch seine Naturbauweise und die Einspeicherung von 50 Tonnen CO2 einen aktiven Beitrag zum Klimaschutz.

Hausdaten

Bauaufgabe
Einfamilienhaus
Haustyp
Individuell
Baustil
Bauhaus / Kubus
Dachform
Flachdach
Fassade
Holz
Baukörper
rechteckig
Personen
2 - 5
Geschosse
3
Zimmeranzahl
7
Außenmaße in m
13,89 x 9,51
Wohnfläche in m² *
235
Preis ab
1.100.000 € i
Dafür steht Baufritz:
Modern Living

Dachgarten plus Aussicht on topp

Architekt

Hans-Georg Stotz

"Während der Baukörper auf der einen Seite offen zur Natur gestaltet wurde, verschließt er sich nach Norden fast komplett. Nur einzelne Lichtbänder lockern die wartungsfreie, naturbelassene Fassade auf. Ein Großteil der 3-fach verglasten, ebenfalls wartungsfreien Fenster verfügt über Schiebeläden in elegantem Anthrazit. Dieser edle „Farbtupfer“ findet sich auch bei der Gestaltung von „Penthouse“ und Garage wieder. "

Modern Living

Das Obergeschoss besticht durch einen großzügigen „Master-Bedroom“, bestehend aus Schlafbereich, Ankleide und einem eigenen Badezimmer. Weiter beherbergt das OG zwei Kinderzimmer, sowie ein Gästezimmer und ein zweites Bad. Eine romantische Galerie, welche sich zur Süd-West-Seite durch eine großflächige Verglasung bis ins Erdgeschoss erstreckt, verbindet das Ober- mit dem Erdgeschoss des Bauhauses. Hier verwöhnt der komplett offen realisierte Wohn-Ess-Kochbereich mit viel Platz und einer einmaligen Atmosphäre. Wie schon der Dachgarten bietet auch die ruhig gelegene Süd-West-Terrasse mit direktem Zugang zum Wohnbereich viel Raum zur Entspannen und verlagert – wenn gewünscht den Wohnraum nach draußen.

Modern Living
Modern Living
Modern Living
Modern Living
Modern Living
Modern Living
Modern Living
Modern Living

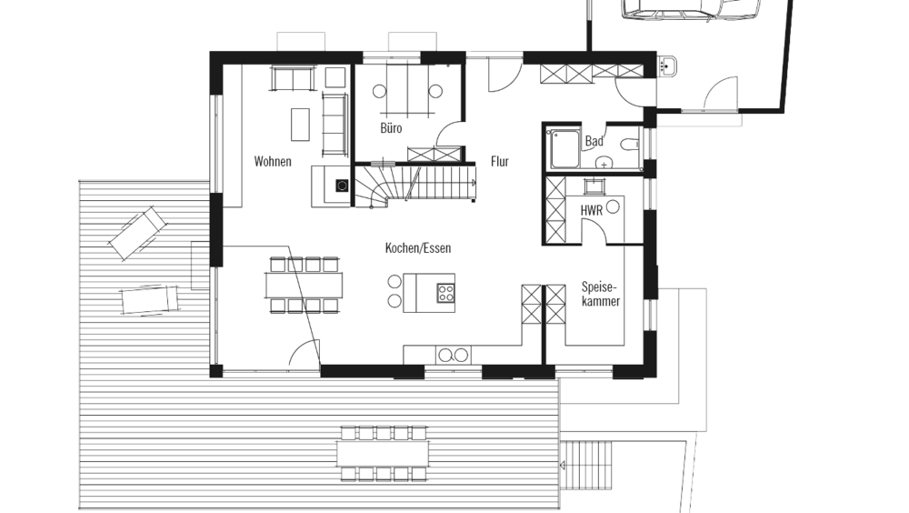
Grundrisse

EG

Grundriss Erdgeschoss von Modern Living

OG

GrundrissObergeschoss von Modern Living

DG

Grundriss Dachgeschoss von Modern Living

* Die Quadratmeter-Angaben beziehen sich auf die Nettogeschossfläche und sind nicht gleichzusetzen mit der Wohnfläche nach DIN. Bei Häusern mit Kniestock (z. B. Doppelhaus) kann die angegebene Zahl dementsprechende Abweichungen zwischen der angegebenen Bodenfläche und Wohnfläche aufweisen.

Diese Themen könnten Sie auch interessieren

14 Schritte bis zu Ihrem Wunschhaus

Es sind exakt 14 Schritte bis zu Ihrem neuen Baufritz-Zuhause. Warum wir Ihnen das versprechen können? Weil wir wissen, wie …

14 Schritte bis zu Ihrem Wunschaus

10 Gründe für Baufritz

Haushersteller gibt es viele. Welche Kriterien wirklich zählen? Machen Sie einfach den Vergleich ...

10 Gründe für Baufritz

Sie haben Fragen?

Finden Sie Ihren persönlichen Fachberater ganz in Ihrer Nähe und vereinbaren Sie gleich einen Termin.

Fachberater-Suche