Horn
Horn

Kundenhaus

Horn

Dass es sich bei dem Gebäude um ein Doppelhaus handelt, ist auf den ersten Blick kaum zu erkennen. Schaut man jedoch genauer hin, bemerkt man, dass es aus zwei Baukörpern besteht, die leicht versetzt zueinander angeordnet wurden. Ein planerischer Kniff, der die Privatsphäre der benachbarten Familien wahrt.

Hausdaten

Bauaufgabe
Doppelhaus (Zweifamilienhaus)
Haustyp
Individuell
Baustil
Chalet
Dachform
Satteldach
Fassade
Holz-Putz-Kombination
Baukörper
rechteckig
Personen
5+
Geschosse
2
Zimmeranzahl
7
Außenmaße in m
je 8,20 x 9,45
Wohnfläche in m² *
225
Preis ab
1.100.000 € i
Dafür steht Baufritz:
Horn

Die Natur immer im Blick

Architekt

Georg Schauer

"Dieses einzigartige Doppelhaus besticht durch seine idyllische Lage mit traumhaftem Bergblick. Die beiden Doppelhaushälften stehen etwas versetzt zueinander, wodurch die Bewohner beider Haushälften von ausreichend Privatsphäre profitieren. Der weite Dachüberstand ist charakteristisch für die regional typische, alpenländische Bauweise."

Horn
Horn
Horn
Horn
Horn
Horn
Horn
Horn
Horn
Horn
Horn
Horn

Alles anders

Um der prominenten Lage Rechnung zu tragen, statteten die Planer das Doppelhaus nicht nur mit zahlreichen Fenstern und Festverglasungen aus, sie stellten zudem die klassische Grundrissaufteilung „auf den Kopf“. Während sich im Erdgeschoss die Privaträume befinden, wurden die Gemeinschaftsräume unter dem Dach angeordnet. Ob beim Entspannen auf der Couch, beim Kochen oder beim gemeinsamen Essen: Der Wilde und der Zahme Kaiser sind bei allen Alltagsaktivitäten zu Gast.

Horn

Mit der Höhe leben

Wohn-, Ess- und Kochbereich gehen in beiden Wohneinheiten eine lockere Verbindung miteinander ein. Das luftig-leichte Ambiente wird unterstrichen durch die beeindruckende Höhe der Räume. Weit öffnen sie sich nach oben bis hin zum First. Die sichtbaren Pfetten sowie der großzügige Einsatz des Naturbaustoffs Holz verleihen dem Chalet auch von innen einen gemütlichen Landhauscharakter und knüpfen an die alpenländische Bautradition an.

Horn
Horn
Horn
Horn
Horn
Horn
Horn
Horn

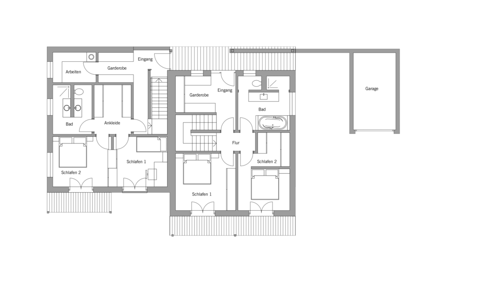
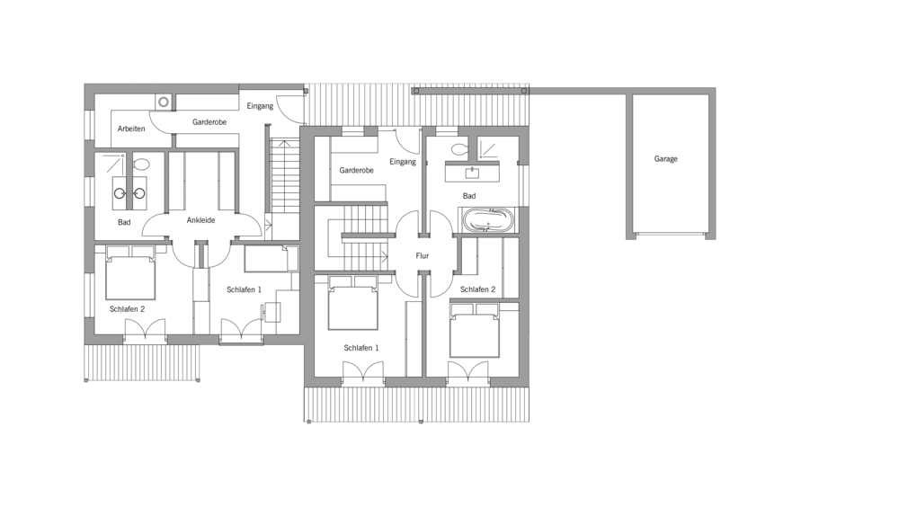
Grundrisse

EG

Horn

OG

Horn

KG

Horn

* Die Quadratmeter-Angaben beziehen sich auf die Nettogeschossfläche und sind nicht gleichzusetzen mit der Wohnfläche nach DIN. Bei Häusern mit Kniestock (z. B. Doppelhaus) kann die angegebene Zahl dementsprechende Abweichungen zwischen der angegebenen Bodenfläche und Wohnfläche aufweisen.

Diese Themen könnten Sie auch interessieren

14 Schritte bis zu Ihrem Wunschhaus

Es sind exakt 14 Schritte bis zu Ihrem neuen Baufritz-Zuhause. Warum wir Ihnen das versprechen können? Weil wir wissen, wie …

14 Schritte bis zu Ihrem Wunschaus

10 Gründe für Baufritz

Haushersteller gibt es viele. Welche Kriterien wirklich zählen? Machen Sie einfach den Vergleich ...

10 Gründe für Baufritz

Sie haben Fragen?

Finden Sie Ihren persönlichen Fachberater ganz in Ihrer Nähe und vereinbaren Sie gleich einen Termin.

Fachberater-Suche