Haeberle MFH

Kundenhaus

Häberle

Was tun mit einem großen Grundstück mit Altbau mitten in der Stadt, wenn die einst so hübsche Villa in die Jahre gekommen ist und nur noch von einer Person bewohnt wird? Renovieren war keine Option, eine Teilung nicht möglich. Für die Familie Häberle, Mutter Erika und zwei erwachsene Söhne, war klar: Wir bauen ein Mehrfamilienhaus auf diese Fläche. Geplant wurde mit 10 Wohneinheiten, im Ergebnis das 20-fache an Wohnraum auf dem gleichen Grundstück: Wo vorher Frau Häberle allein gewohnt hat, können nun rund 20 Menschen leben. Das neue Mehrfamilienhaus ist als Dreispänner mit Kellergeschoss und Tiefgarage mit je zwei Stellplätzen pro Wohnung angelegt. Alle Wohnungen sind mit speziellen Wohnungstrennwänden und -decken voneinander separiert, für optimale Schalldämmwerte und entsprechend hohen Schallschutz. Die ursprünglich vier Wohnungen im Obergeschoss und die zwei Dachgeschosswohnungen teilen sich ein gemeinsames mittiges Treppenhaus mit Podesttreppe und Aufzug vom Keller bis ins Dachgeschoss. Kleine Besonderheit: Selbst das Treppenhaus und der Aufzugschacht sind in Holzmassivbauweise ausgeführt. Und: Zwei der Wohnungen wurden noch in der Produktionsphase dank Zwischentür zu einer Wohnung.

Hausdaten

Bauaufgabe
Mehrfamilienhaus
Haustyp
Individuell
Dachform
Satteldach
Fassade
Holz
Baukörper
rechteckig
Geschosse
3
Außenmaße in m
37,80 x 12,40
Wohneinheiten
10
Wohnfläche in m² *
891
Preis ab
5.190.000 € i
Dafür steht Baufritz:
Haeberle MFH

Von 1 auf 10: Villa wird Mehrfamilienhaus

Haeberle MFH

Bauherrin

Erika Häberle

Wohnraum ist knapp. Uns liegt viel an Nachverdichtung. Erste Wahl: Baupartner Baufritz mit dem nachhaltigen ökologischen Holzbau und dem bekannt guten Raumklima. Wir wollten bewusst kein Ziegelhaus. Und: Die Holzrahmenbauweise von Baufritz ist ideal für die Nachverdichtung und gewährleistet dank der Vorfertigung in der Manufaktur extrem kurze Bauzeiten, wichtiger Aspekt in unserer gewachsenen Nachbarschaft.

Haeberle MFH
Haeberle MFH

Neue Mischform des Wohnens mit Privatsphäre

Die ebenerdigen Wohnungen im Erdgeschoss sind komplett barrierearm, altersgerecht geplant, mit zweiflügligen Fenstertüren zum großzügigen Außenbereich, schönen, schwellenlos erreichbaren Holz-Terrassendecks, Lamellen-Sichtschutzwänden zum Nachbarn und Markisen als Schichtschutz zu den oberen Etagen. Und zeitgemäß zu bauen, bedeutet auch, alle Generationen zu berücksichtigen. Deshalb sind die Türrahmen im ganzen Haus ausreichend breit für Rollator oder Rollstuhl.

Haeberle MFH

Holzbauweise als entscheidendes Verkaufsargument

Jede Erdgeschosswohnung hat unter einer Überdachung aus Glas ihren eigenen Eingang. Mutter und beide Söhne werden jeweils Eigentümer einer der insgesamt 10 Wohnungen. Die übrigen Wohnungen konnten zum Verkauf angeboten werden. Eigentümer der weiteren Wohnungen fanden sich schnell. Das neue Mehrfamilienhaus überzeugt durch die Lage, ist dank der geschickten Grundrisse lichtdurchflutet, zukunftsfähiger KfW55-Standard und die Holzbauweise von Baufritz war weiteres entscheidendes Argument.

Weitere Mehrfamilienhäuser entdecken >

Wohnung 1 im EG

Haeberle MFH

Fließende Übergänge 

Herrlich offen präsentieren sich die vier Erdgeschosswohnungen mit jeweils kombiniertem Koch- und Essbereich und anschließendem Wohnen. Geschickt platzierte Lichtquellen und eine hinterleuchtete Heimat-Kulisse machen die praktisch geplante Küche von Frau Häberle, dank einer Schiebetür vom Eingangsbereich trennbar, zur behaglichen Lösung aus Bar und Kochinsel zugleich. 

Haeberle MFH

Auf gute Nachbarschaft

Lichtdurchflutet und hell präsentieren sich die Räume, wie hier das Wohnzimmer im Erdgeschoss, mit zweiflügligen Fenstern und schwellenlosem Zugang zum großen Terrassendeck. Ebenerdig zu wohnen kommt dem Wunsch der Bauherrin sehr entgegen, selbst mit Blick auf das Alter selbstbestimmt zu leben. 

Haeberle MFH
Haeberle MFH
Haeberle MFH
Haeberle MFH
Haeberle MFH
Haeberle MFH
Haeberle MFH

Wohnungen 7 und 8 werden zu 
einer Wohnung

Tür auf in ein neues Leben

Das Ehepaar Lohrberg hat mit dem Kauf von gleich zwei Wohnungen bereits während der Bauphase eine große Entscheidung getroffen. Bisher hatte man auf über 300 qm im einstigen Familienzuhause im Saarland gelebt. Mit dem Umzug ins Allgäu ist der Weg offen für eine ganz neue Form des Zusammenlebens mit den übrigen Bewohnern des Mehrfamilienhauses. Und: Damit beide Lohrberg-Wohnungen zu einer werden können, hat Baufritz bereits im Werk die Zwischentür eingebaut.

Alles wird gut

Sich zu verkleinern und Annehmlichkeiten hinzugewinnen, auch in Hinblick auf das Alter, war den Lohrbergs wichtig. Die Küche, eine maßgefertigte Schreinerarbeit, wurde mit einer Kücheninsel gestaltet, damit sie umfahrbar ist und man auch im Sitzen arbeiten kann. In eine der beiden Wohnungen könnte eines Tages eine Pflegekraft einziehen. Auch eine komplette Trennung der beiden Wohnungen ist natürlich jederzeit wieder möglich. Die Türrahmen im ganzen Haus übrigens sind ausreichend breit, auch für Rollator oder Rollstuhl. 

Steuervorteile dank Mehrfamilienhaus

Beim Bau eines Mehrfamilienhauses können zahlreiche steuerliche Vorteile zum Tragen kommen, die Investoren, wie hier die Familie Häberle, in Anspruch nehmen können. Unter bestimmten Voraussetzungen lassen sich bis zu 55 % der Anschaffungskosten in den ersten zehn Jahren abschreiben, mit dem Vorteil einer erheblichen Steuerersparnis. Baufritz ist Experte in Sachen QNG – und der energetische Gebäudestandard EH40/QNG ist neben der Baukostengrenze von 5.200 EUR pro qm Wohnfläche und einem Baubeginn bis Ende September 2029 wichtiges Kriterium für die steuerlich attraktiv Sonderabschreibung.

MEHR ERFAHREN

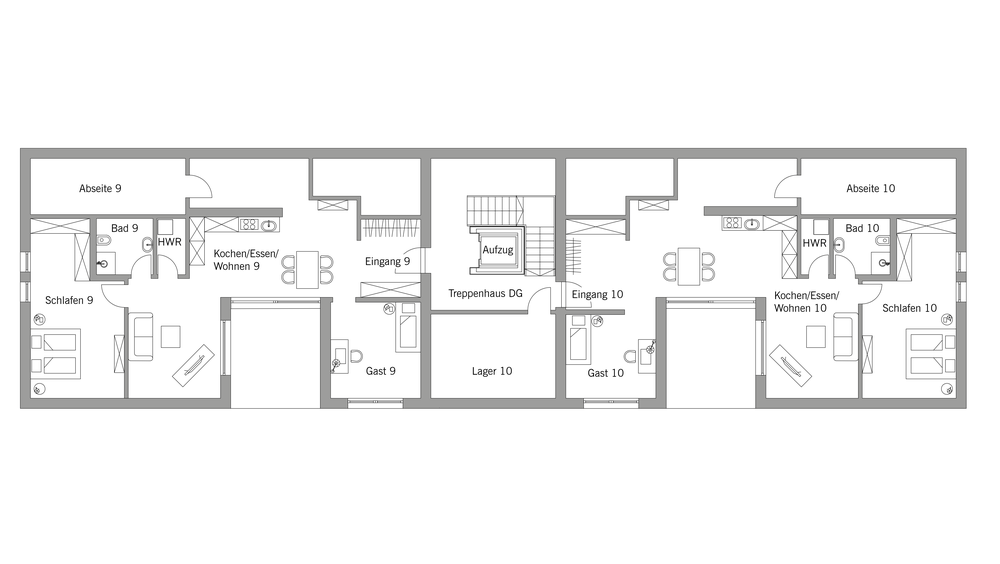
Wohnung 9 und 10 im DG

Haeberle MFH

Lichtdurchflutet bis unters Dach

Unter dem Satteldach mit Flachdachgauben befinden sich zwei herrlich helle Dachgeschosswohnungen, die über große Dachflächenfenster mit ganz viel Tageslicht versorgt werden. Dank der Gauben konnten bodentiefe Fenster in den Wohnräumen platziert werden, ein Gewinn an Platz und Höhe. Über die Gauben gelangt man auf Loggias und damit auf einen jeweils privaten Außenbereich direkt an der Wohnung.

Haeberle MFH
Haeberle MFH
Haeberle MFH
Haeberle MFH
Haeberle MFH
Haeberle MFH
Haeberle MFH

Grundrisse

EG

OG

DG

KG

Bestellen Sie Ihre Unterlagen und lassen Sie sich inspirieren

  • Mehr als 100 Bilder und Beispiele
  • Baufritz Häuser in Ihrer Nähe
  • Ökologischer Druck und hochwertige Materialien
  • Umweltfreundlicher kostenloser Versand

Fordern Sie jetzt kostenlos Ihre Kataloge an

  • Schritt 1
  • Schritt 2
  • Schritt 3
Für welche Dokumente interessieren Sie sich? * ?

*Pflichtfeld

Ein Fehler ist aufgetreten. Bitte versuchen Sie es später nochmal.

Sie möchten wissen, was Sie erwartet?

Die Kataloge im Überblick

Einfamilienhaus-Katalog

"LookBook"
Individuelle Architektur: Einfamilienhäusern, Doppelhäuser, Bungalows, Anbau, Aufstockung.
Budget: ab 490.000 €
Wohnfläche: ab 100 m²

Bauen im Bestand

Bauen im Bestand
Konkrete Beispiele für Anbau, Aufstockung, Ersatzneubau und Nachverdichtung.
Herangehensweise und Rechenbeispiel inklusive.

Häuser und Grundrisse zum Weiterplanen

Smart vorgeplante Grundrisse. Zum Individualisieren. Preisliste inklusive.
Budget: ab 3.600 €/m²
Wohnfläche: bis 170 m²

Internationale Architekturprojekte

"The Home"
Internationale, maßgeschneiderte Architekturprojekte
Budget: ab 1.000.000 €
Wohnfläche: ab 200 m²

Mehrfamilienhaus-Katalog

Ökologisch und zukunftsorientiert in echte Werte investieren: 48 Seiten Mehrfamilienhausbau.
Budget: ab 1.000.000 €
ab 3 Wohneinheiten

* Die Quadratmeter-Angaben beziehen sich auf die Nettogeschossfläche und sind nicht gleichzusetzen mit der Wohnfläche nach DIN. Bei Häusern mit Kniestock (z. B. Doppelhaus) kann die angegebene Zahl dementsprechende Abweichungen zwischen der angegebenen Bodenfläche und Wohnfläche aufweisen.

Diese Themen könnten Sie auch interessieren

14 Schritte bis zu Ihrem Wunschhaus

Es sind exakt 14 Schritte bis zu Ihrem neuen Baufritz-Zuhause. Warum wir Ihnen das versprechen können? Weil wir wissen, wie …

14 Schritte bis zu Ihrem Wunschaus

10 Gründe für Baufritz

Haushersteller gibt es viele. Welche Kriterien wirklich zählen? Machen Sie einfach den Vergleich ...

10 Gründe für Baufritz

Sie haben Fragen?

Finden Sie Ihren persönlichen Fachberater ganz in Ihrer Nähe und vereinbaren Sie gleich einen Termin.

Fachberater-Suche