Fluhr-Barth

Kundenhaus

Fluhr-Barth

Dieses baubiologisch wertvolle Mehrfamilienhaus mit sieben Wohneinheiten entstand in Rheinhessen zwischen Worms und Alzey, direkt am Weinberg gelegen. Der Grauburgunder wächst hier quasi vor der Haustür. Die Bauherren legten auf eine Wohnform Wert, die maximale Privatsphäre bietet und zugleich ungezwungene Begegnungen mit den Nachbarn ermöglicht. So gelang das Kunststück, die Qualität eines Einfamilienhauses auf ein Mehrfamilienhaus zu übertragen und das „Spargelgrundstück“ in leichter Hanglage optimal zu nutzen. Der gestalterische Ansatz war es, die wirtschaftlichen und ökologischen Vorteile zu verknüpfen und dabei ein hohes Maß an Privatheit, vor allem auch in den Außenbereichen zu schaffen. Entstanden ist ein T-förmiger Kubus, der mit einer horizontalen Holzverschalung in zwei Grautönen und einer weißen Putzfassade kombiniert ist.

Hausdaten

Bauaufgabe
Mehrfamilienhaus
Haustyp
Individuell
Dachform
Flachdach
Fassade
Holz-Putz-Kombination
Baukörper
rechteckig
Geschosse
3
Außenmaße in m
30,70 x 8,83
Wohneinheiten
7
Wohnfläche in m² *
828
Preis ab
4.125.000 € i
Dafür steht Baufritz:
Fluhr-Barth

Die Qualität eines Einfamilienhauses multipliziert

Architekt

Hans-Georg Stotz

"Der Trend muss sein, nicht mehr riesige Landflächen zu verbrauchen, deswegen ist eine verdichtete Bauweise zukunftsweisend. Wir wollten bei diesem Projekt in Rheinhessen mit sechs vermieteten Wohneinheiten und einer selbst genutzten Penthouse-Wohnung, die wirtschaftlichen und ökologischen Vorteile eines Mehrgeschosses mit dem Wohngefühl eines Einfamilienhauses verknüpfen. Dazu interpretierten wir den klassischen Dreispänner neu. Um eine attraktive Eingangshalle wurden die Wohneinheiten so angedockt, dass intime Gartenhöfe, Loggien und Terrassen entstanden. Sie bieten bei maximaler Belichtung viel Privatsphäre. Zwischen den Wohnungen besteht maximaler Schall- und Brandschutz in Baufritz-Premiumqualität."

Fluhr-Barth
Fluhr-Barth
Fluhr-Barth
Fluhr-Barth
Fluhr-Barth
Fluhr-Barth
Fluhr-Barth
Fluhr-Barth
Fluhr-Barth
Fluhr-Barth

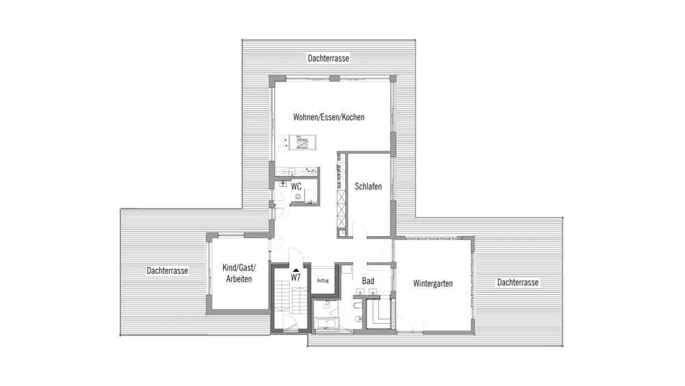
Die Grundrisse überzeugen durch weitgehende Barrierefreiheit, geringe Verkehrsflächen und eine individuelle Raumaufteilung. Sie unterscheiden sich neben der Lage vor allem von der Größe her, um so unterschiedlichen Platzansprüchen – vom alleinstehenden Single bis zu einer Familie mit zwei Kindern – Rechnung zu tragen. In diesem Mehrgenerationenhaus im Bauhaus-Stil können sich Jung und Alt wohlfühlen.

Damit die Design- und Ausstattungskultur in sämtlichen Wohnungen gleich ist, sind überall Küchen, Einbauschränke, Deckenleuchten sowie fest montierte Accessoires in den Bädern eingebaut. Für das Foyer, die Galerie und das Treppenhaus entwickelten die Bauherren zusammen mit der Kölner Feng-Shui-Beraterin Gudrun Mende ein unverwechselbares, kraftvolles Farb- und Interior-Exposé. Gartenarchitektonisch gestaltete Außenanlagen mit einem auf die Region abgestimmten Pflanzenplan komplettieren das Ensemble.

Grundrisse

EG

Fluhr-Barth

OG

Fluhr-Barth

DG

Fluhr-Barth

KG

Fluhr-Barth
Fluhr-Barth

Ihre Steuervorteile beim
privaten Mehrfamilienhausbau

Wussten Sie, dass Sie von Steuervorteilen profitieren können, wenn Sie für mehrere Familien bauen möchten? Durch gezielte Abschreibungen, Sonderabschreibungen und Steuerbegünstigungen können Sie Ihre Steuerlast erheblich senken. Entdecken Sie alle Vorteile und Möglichkeiten, steuerliche Belastungen und Finanzierungskosten zu reduzieren. Haben Sie Fragen zur Steueroptimierung für Ihr Mehrfamilienhaus? Unsere Experten stehen Ihnen bei jeder einzelnen zur Seite.

Jetzt Steuern sparen

* Die Quadratmeter-Angaben beziehen sich auf die Nettogeschossfläche und sind nicht gleichzusetzen mit der Wohnfläche nach DIN. Bei Häusern mit Kniestock (z. B. Doppelhaus) kann die angegebene Zahl dementsprechende Abweichungen zwischen der angegebenen Bodenfläche und Wohnfläche aufweisen.

Diese Themen könnten Sie auch interessieren

14 Schritte bis zu Ihrem Wunschhaus

Es sind exakt 14 Schritte bis zu Ihrem neuen Baufritz-Zuhause. Warum wir Ihnen das versprechen können? Weil wir wissen, wie …

14 Schritte bis zu Ihrem Wunschaus

10 Gründe für Baufritz

Haushersteller gibt es viele. Welche Kriterien wirklich zählen? Machen Sie einfach den Vergleich ...

10 Gründe für Baufritz

Sie haben Fragen?

Finden Sie Ihren persönlichen Fachberater ganz in Ihrer Nähe und vereinbaren Sie gleich einen Termin.

Fachberater-Suche