Freiraum

Ihr Traum-Bungalow: Individuell, stilvoll und zukunftssicher

Ebenerdig wohnen, großzügig und herrlich hell – entdecken Sie die Vorteile eines Bungalows von Baufritz. Ob als komfortabler Altersruhesitz oder stilvolles Eigenheim. Als praktischer Wohnraum für eine Pflegekraft oder modernes Domizil für Feriengäste: Unsere Bungalows sind durchdachte Wohlfühloasen, die höchste Ansprüche erfüllen. Dank cleverer Planung findet sich oft auch auf bebauten Grundstücken Platz für einen Bungalow – zum Beispiel im Garten, damit Kinder und Eltern zu Nachbarn werden können. Um Nähe und Unabhängigkeit für alle Generationen zu ermöglichen. Erleben Sie modernes Wohnen auf einer Ebene mit Baufritz. 

 

Warum ein Bungalow von Baufritz?Kennen Sie Ihre Vorteile?

 

  • Maximale Gestaltungsfreiheit durch individuelle Planung. Und Flexibilität bei der Raumaufteilung und Ausstattung.
     
  • Barrierefreies Wohnen als ebenerdiges Wohnkonzept ohne Treppen. Sicherheit ohne Stolperfallen und mehr Mobilität im Leben. Mit neuer Lebensqualität, auch anpassbar bei speziellen Gesundheitsbedürfnissen.
     
  • Reduktion aufs Wesentliche durch bewusste Verkleinerung der Wohnfläche. Mehr Zeit für das Schöne, Instandhaltungsaufwand minimieren. Vielleicht die „alte“ Immobilie an die Kinder übertragen. Und ein herrlich überschaubarer Neuanfang im Bungalow.
     
  • Wertbeständigkeit für Ihr Vermögen. Weil der ebenerdige Bungalow als Bauform so  beliebt ist, ist er eine extrem gute Investition.
     
  • Privatsphäre statt Eigentumswohnung: Sie leben Ihr Leben, ohne Teil eines Mehrfamilienhauses zu sein.
  • Der Bungalow bedeutet Freiraum für Ihre Bedürfnisse. Denn der Grundriss verspricht große Freiheiten zur Wunscherfüllung. Wird von uns als Unikat geplant. Ist Ausdruck Ihrer Persönlichkeit. Und maßgeschneidert für Ihre Vorlieben.
     
  • Ein Bungalow bietet einen einfachen und ebenerdigen Zugang zum Garten. Mit dem Leben auf einer Ebene bekommt naturnahes Wohnen eine ganz neue Dimension.
     
  • Natur ist Teil der Ausführung: Verwendet werden durchweg nachhaltige Materialien. In ökologischer Bauweise. Umweltfreundlich und klimaschonend. Nach dem Baufritz-Gesundheitskonzept. Und mit nachweislich gesundem Wohnklima.
     
  • Der erwiesen energieeffiziente Bungalow ist Ergebnis der perfektionierten Planung unserer Architekten auf Basis zukunftsfähiger Haustechnik und nachhaltiger Materialien.
     
  • Unsere Fertigbauweise mit vorgefertigten Holzelementen aus unserer Baufritz-Manufaktur verspricht kurze Montagezeiten. Und einen Liefertermin bereits im Frühjahr 2026.
Schossig

„Mit Anfang 60 haben wir uns für den Bau eines Bungalows entschieden. Wir hatten das Glück, unser bestehendes Grundsück erweitern zu können. Unser ehemaliges Wohnhaus hat unsere Tochter mit Familie übernommen. Den Garten teilen wir uns und kommen hier gerne zusammen.“
 

Zur Homestory von Familie Schossig

Bungalow als Altersruhesitz:
Bungalow Schossig

Der Bungalow von Familie Schossig ist ein hervorragendes Beispiel dafür, wie ein
ebenerdiges und barrierefreies Wohnkonzept das Leben im Alter komfortabel und harmonisch gestalten kann.
Die Schossigs haben eine Wohnsituation geschaffen, die Nähe und Unabhängigkeit perfekt kombiniert.
Der gemeinsame Garten bietet einen Treffpunkt für die ganze Familie und fördert ein
generationenübergreifendes Zusammenleben.

ZUM BUNGALOW

Schossig
Schossig
Schossig
Schossig
Schossig
Schossig
Schossig
Schossig
Schossig
Schossig

Unsere Bungalows im Überblick

Jeger

Bungalow Jeger

Freiraum

Bungalow Freiraum

Architekturentwurf Atrium Terrassenansicht

Bungalow Atrium

Moderner Bungalow

Moderner Bungalow

Ederer

Bungalow Ederer

Klassischer Bungalow

Klassischer Bungalow

Architektenentwurf Komfort Terrasse

Bungalow Komfort

Bieker

Bungalow Bieker

Architekturentwurf Retro Terrassenansicht

Bungalow Retro

Bungalow am See

Bungalow am See

Schweiger

Bungalow Schweiger

KOSTENLOSEN TRAUMHAUSKATALOG BESTELLEN

Ihr Traumhaus-Katalog liefert 148 Seiten pure Inspiration, ganz kostenlos und unverbindlich. Bestellen Sie gleich Ihr persönliches Exemplar, gedruckt und per Post ins Haus.

Hier Katalog anfordern

PERSÖNLICHER BERATUNGSTERMIN:
KOSTENLOS UND UNVERBINDLICH

Sie denken über den Bau eines Bungalows nach? Unsere Beispiele gefallen Ihnen und Sie fragen sich, wie es jetzt weitergeht? Sie haben generell Fragen zur Umsetzung? Ein unverbindliches und kostenfreies Beratungsgespräch ist eine gute Idee, damit Sie dem Traum vom Bungalow einen Schritt näher kommen.

Jetzt Termin vereinbaren

FAQ - Sie haben Fragen?
Wir haben Antworten!

Wie sieht der Bauablauf bei Baufritz aus?
Auch wenn wir immer Unikate bauen:
Beim Ablauf lieben wir die gekonnte Routine.
Zum Bauablauf >

Mit welcher Bauzeit kann ich rechnen?
Unsere Lieferzeit beträgt etwa ein Jahr ab Vertragsunterzeichnung. Die Produktion Ihres Hauses in unserer Manufaktur benötigt etwa eine Woche.
Die Montage auf der Baustelle dauert etwa ein bis drei Tage. Für den Innenausbau werden ca. vier bis acht Monate eingeplant, je nach Komplexität des Hauses.
Weitere Infos zur Produktion >  Mehr zu Transport und Montage >

Gibt es bei Baufritz Architekten für die Planung eines barrierefreien Bungalows?
Unsere Architekten planen grundsätzlich Unikate, immer ausgerichtet nach den Bedürfnissen der neuen Bewohner. Selbstverständlich auch barrierefrei.
Unsere Architekten >

Was kostet ein energieeffizienter Bungalow von Baufritz?
Ihr Hauspreis richtet sich Ihren Vorstellungen und dem, was Ihr Grundstück vorgibt. Wir machen Ihnen das verbindlich darauf abgestimmte Angebot.
Die Ausführung: immer 100 % Baufritz-Qualität. Und immer als Festpreis.
Mehr zu unseren Hauspreisen >

Gibt es Fördermittel für Bungalows?
Ja, die gibt es! Denn bei der staatlichen Förderung wird nicht zwischen klassischem Einfamilienhaus und Bungalow unterschieden.
Zu den Fördermitteln >

Bietet Baufritz Zertifizierungen hinsichtlich Nachhaltigkeit und Wohngesundheit an?
Selbstverständlich! Unsere gesunde Bauweise geben wir Ihnen gerne schriftlich. Jedes Baufritz-Haus wird im Standard mit VDB-Zert zertifiziert. Und: Unsere Planungen sind QNG ready und damit bestens geeignet für die aktuellen staatlichen Fördermöglichkeiten in Deutschland.
Mehr zu VDB-Zert >  Mehr zu QNG und Förderung >

Bietet Baufritz auch eine Beratung zu Finanzierung und steuerlichen Aspekten?Wir glauben an den Grundsatz: alles aus einer Hand. Und haben glücklicherweise die Experten mit baulicher Expertise und aktuellem Insiderwissen an unserer Seite. Und damit auch an Ihrer.
Zum Baufritz-Finanzierungsservice > 

Gibt es Referenz-Objekte, die besichtigt werden können?
Sie haben recht: Ein Baufritz-Haus will man persönlich besichtigen. Wie fühlt sich das Baufritz-Haus an? Wie riecht es? Und wie ist die Atmosphäre?
Deshalb finden Sie überall in unserem Liefergebiet Muster- und Referenzhäuser
Jetzt in Ihrer Nähe entdecken >

Ich bin begeistert, wie geht es nun weiter?
Beratungstermin vereinbaren >  Katalog bestellen >

Oder besprechen Sie Ihr Anliegen direkt mit uns.
✆ 08336 / 9000 

Die besten Bungalow-Grundrisse

Bungalow Schossig

Schossig

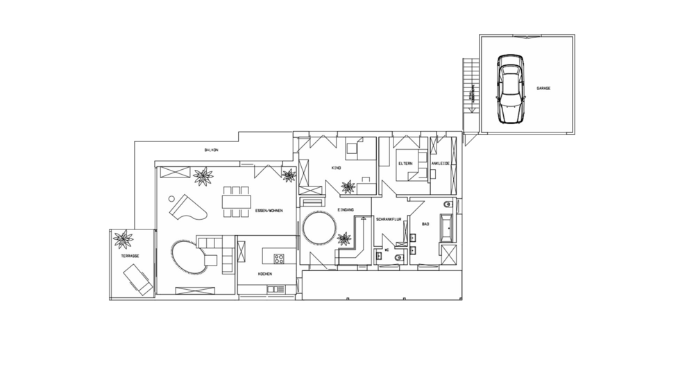
Bungalow Freiraum

Freiraum

Bungalow Bieker

Bieker

Bungalow Jeger

Jeger

Bungalow Schweiger

Schweiger

Bungalow am See

Bungalow am See

Bungalow Ederer EG

Ederer

Bungalow EDERER DG

Ederer

Moderner BUNGALOW

Moderner Bungalow

klassischer BUNGALOW

Jakob

BUNGALOW retro

Architekturentwurf Retro Grundriss Erdgeschoss

BUNGALOW Atrium

Architekturentwurf Atrium Grundriss

BUNGALOW komfort

Architektenentwurf Komfort Grundriss EG

Newsletter abonnieren

Neue Häuser. News. Events. Bleiben
Sie auf dem neuesten Stand!

Newsletter bitte

Persönliche Beratung

Bei Ihnen vor Ort oder in Erkheim/
Allgäu. Jetzt Termin vereinbaren.

Zum Beratungstermin

Ansprechpartner finden

Immer für Sie da. Immer kompetent.
Und immer in Ihrer Nähe.

Ihr Ansprechpartner

Ein Bungalow zum Anfassen

Besuchen Sie unser Musterhaus "Freiraum"


Anfahrt:
Ausstellung Eigenheim & Garten
Höhenstraße 21
D-70736 Fellbach

Öffnungszeiten:
Mittwoch bis Samstag von 11 - 18 Uhr
Sonn- und Feiertage geschlossen
 

Weitere Baufritz-Häuser in Ihrer Nähe

Kompakte Bungalows -
Die Eigentumswohnung im eigenen Garten


Wenn Sie ein Grundstück mit einer freien Fläche von ca. 75 m2 
haben, dann haben wir die perfekte Wertanlage für Sie! Nutzen Sie 
die vorhandene Fläche sinnvoll – erweitern Sie Ihren Bestand oder 
relisieren Sie eine Eigentumswohnung im eigenen Garten! Zum 
selbst nutzen oder zum Vermieten – jetzt ist der beste Zeitpunkt, 
um Ihre Vermögenswerte nachhaltig und förderfähig in die Zukunft 
zu tragen. Entdecken Sie unsere kompakten Bungalows mit un-
zähligen Möglichkeiten.

Mehr Erfahren

Bestellen Sie Ihre Unterlagen und lassen Sie sich inspirieren

  • Mehr als 100 Bilder und Beispiele
  • Baufritz Häuser in Ihrer Nähe
  • Ökologischer Druck und hochwertige Materialien
  • Umweltfreundlicher kostenloser Versand

Fordern Sie jetzt kostenlos Ihre Kataloge an

  • Schritt 1
  • Schritt 2
  • Schritt 3
Für welche Dokumente interessieren Sie sich? * ?

*Pflichtfeld

Ein Fehler ist aufgetreten. Bitte versuchen Sie es später nochmal.

Sie möchten wissen, was Sie erwartet?

Die Kataloge im Überblick

Einfamilienhaus-Katalog

"LookBook"
Individuelle Architektur: Einfamilienhäusern, Doppelhäuser, Bungalows, Anbau, Aufstockung.
Budget: ab 490.000 €
Wohnfläche: ab 100 m²

Bauen im Bestand

Bauen im Bestand
Konkrete Beispiele für Anbau, Aufstockung, Ersatzneubau und Nachverdichtung.
Herangehensweise und Rechenbeispiel inklusive.

Häuser und Grundrisse zum Weiterplanen

Smart vorgeplante Grundrisse. Zum Individualisieren. Preisliste inklusive.
Budget: ab 3.600 €/m²
Wohnfläche: bis 170 m²

Internationale Architekturprojekte

"The Home"
Internationale, maßgeschneiderte Architekturprojekte
Budget: ab 1.000.000 €
Wohnfläche: ab 200 m²

Mehrfamilienhaus-Katalog

Ökologisch und zukunftsorientiert in echte Werte investieren: 48 Seiten Mehrfamilienhausbau.
Budget: ab 1.000.000 €
ab 3 Wohneinheiten

Diese Themen könnten Sie auch interessieren

14 Schritte bis zu Ihrem Wunschhaus

Es sind exakt 14 Schritte bis zu Ihrem neuen Baufritz-Zuhause. Warum wir Ihnen das versprechen können? Weil wir wissen, wie …

14 Schritte bis zu Ihrem Wunschaus

10 Gründe für Baufritz

Haushersteller gibt es viele. Welche Kriterien wirklich zählen? Machen Sie einfach den Vergleich ...

10 Gründe für Baufritz

Sie haben Fragen?

Finden Sie Ihren persönlichen Fachberater ganz in Ihrer Nähe und vereinbaren Sie gleich einen Termin.

Fachberater-Suche