
14 Schritte bis zu Ihrem Wunschhaus
Es sind exakt 14 Schritte bis zu Ihrem neuen Baufritz-Zuhause. Warum wir Ihnen das versprechen können? Weil wir wissen, wie …
Sie möchten alle Vorteile von myBaufritz nutzen? Dann melden Sie sich bitte jetzt an.
Kundenhaus
Geschäftsführerin
Dagmar Fritz-Kramer
"Die Aufstockung ist ein Paradebeispiel für die Möglichkeiten des modernen Holzfertigbaus. Hier haben wir einem Haus aus den 60er-Jahren eine „warme Mütze“ verpasst und gemeinsam eine ungenutzte Dachfläche zum herausragenden neuen Grundstück mitten in der Stadt gemacht. Auf solche Bauprojekte haben wir große Lust – und die große Erfahrung. Das hat auch die Wagners beruhigt, die zuvor bereits fruchtlose Versuche mit Unternehmen vor Ort gestartet hatten. Machen mit Mut zu Neuem – unser Prinzip. Zumal wir es können."
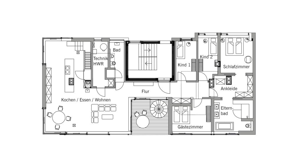
Neue Perspektiven modernen Bauens
Raumhohe Fenster, extra Raumhöhe und elegante Oberlichter vermitteln die Leichtigkeit des Wohnens über den Dächern der Stadt. Von der Küche führt eine Treppe zum offenen Arbeitsbereich, auf einer eigenen Ebene gelegen. Diese Art der Zonierung ist prägend für die einzigartige architektonische Handschrift, mit den gekonnten Sichtachsen und dem freien Blick in die Weite, von jeder Position im Raum aus.
Barfuß über den Dächern der Stadt
Der Charakter der loftartigen Wohnung ist geprägt von bodentiefen, teils rahmenlosen, Fensterflächen, die das Licht nach innen tragen – nicht jedoch die Wärme. Das Schönste: beinahe 360° Panoramablick. Die Stimmung bei Nacht mit Blick über die Lichter der pulsierenden Metropole ist atemberaubend, das Barfuß-Gefühl auf dem herrlich fußwarmen Fischgrätparkettboden einmalig, tags wie nachts.
Nachhaltig und zukunftssicher: Jetzt Broschüre anfordern
Mit gezielten Modernisierungen schaffen Sie ein zukunftssicheres und energieeffizientes Zuhause im Einklang mit der Natur.
In unserer Bauen im Bestand-Broschüre erfahren Sie, wie Sie mit Baufritz gesundes Wohnen und innovative Sanierungslösungen vereinen!
Mittendrin und doch darüber
Die windgeschützte Frühstücksterrasse, eingehüllt in einem Rücksprung der Glasfassade und vom Wohnbereich aus erreichbar, ist ideal zum Sonnenstand im Tagesverlauf geplant und der beste Start in den Tag. Hier ist der Lärm der Stadt weit weg, auch wenn alle Möglichkeiten der attraktiven Kapitale vor der Haustür warten.
Rückzugsort mit Rücksicht
Die traumhafte Dachterrasse ist über eine Wendeltreppe erschlossen und bester Platz für den Sundowner vor dem Start ins bewegte Nachtleben. Wenn man denn mag – und nicht die Ruhe des ganz privaten Rückzugsortes vorzieht.
Erreichbar ist das Refugium über einen neuen Aufzug an der Fassade, den auch die übrigen Bewohner mit benutzen. Der Gedanke der Rücksicht und des guten Miteinanders hat die Planung von Beginn an geprägt.
"Super Qualität, super Arbeit überall. Das kennen wir leider von früheren Bauvorhaben in der Familie auch anders. Sogar die Sachbearbeiterin im Bauamt war Baufritz-Fan."
Bestellen Sie Ihre Unterlagen und lassen Sie sich inspirieren
Sie möchten wissen, was Sie erwartet?
"LookBook"
Individuelle Architektur: Einfamilienhäusern, Doppelhäuser, Bungalows, Anbau, Aufstockung.
Budget: ab 450.000 €
Wohnfläche: ab 100 m²
Bauen im Bestand
Konkrete Beispiele für Anbau, Aufstockung, Ersatzneubau und Nachverdichtung.
Herangehensweise und Rechenbeispiel inklusive.
Smart vorgeplante Grundrisse. Zum Individualisieren. Preisliste inklusive.
Budget: ab 3.500 €/m²
Wohnfläche: bis 170 m²
"The Home"
Internationale, maßgeschneiderte Architekturprojekte
Budget: ab 1.000.000 €
Wohnfläche: ab 200 m²
Ökologisch und zukunftsorientiert in echte Werte investieren: 48 Seiten Mehrfamilienhausbau.
Budget: ab 1.000.000 €
ab 3 Wohneinheiten