Patel

Kundenhaus

Patel

Herausforderung bei diesem Projekt war es, die Vorliebe des Kunden für den Baustil tropischer Länder (insbesondere Bali) einfließen zu lassen und das Haus dennoch dem lokalen Baustil anzupassen. So ergab sich ein detailverliebter Baukörper mit einer Kombination aus verschiedenen Pultdächern und Flachdach, die sich im Zusammenspiel geschickt in Szene setzen. Die elfenbeinfarben verputzte Front des Hauses mit den vielen schmalen, fast raumhohen Fenstern, dem repräsentativen Eingangsbereich und dem imposanten Erker macht neugierig. Steht man dann im traumhaften, parkähnlichen Garten mit altem Baumbestand, zeigt sich das Haus von einer ganz anderen Seite. Die Rückseite wurde fast komplett in Glas realisiert und wirkt anmutig und leicht.

Hausdaten

Bauaufgabe
Einfamilienhaus
Haustyp
Individuell
Baustil
Modern / Design
Dachform
Pultdach
Fassade
Glas
Baukörper
rechteckig
Personen
5+
Geschosse
3
Zimmeranzahl
8
Außenmaße in m
19,37 x 17,71
Wohnfläche in m² *
507
Preis ab
2.525.000 € i
Dafür steht Baufritz:
Patel

Luxus-Designhaus mit balinesischem Flair

Architekt

Peter Cox

"Das ganzheitlich ökologische Baukonzept von Baufritz, das Ästhetik, Design und Ökologie verbindet, überzeugte die indischstämmige Familie Patel sofort. Baustil und Inneneinrichtung sind von fernöstlichen Einflüssen inspiriert. Und so entstand ein stylischer Wohlfühltempel für die Sinne. Durch das einzigartige Lichtkonzept, das die Natur scheinbar übergangslos mit dem Wohnraum verbindet, wurde hier eine besonders friedvolle und entspannte Atmosphäre geschaffen, die den Trubel Londons vergessen lässt."

Patel
Patel
Patel
Patel
Patel
Patel
Patel
Patel
Patel
Patel
Patel

Gelassenheit wird greifbar

Bereits im Eingangsbereich des Designhauses wird der Besucher von einem Brunnen empfangen, der Ruhe und inneres Gleichgewicht ausstrahlt. Über dem Brunnen öffnet sich eine Galerie, welche über zwei Stockwerke den Blick zum Himmel gewährt und viel atmosphärisches Licht ins Gebäude lässt.

Patel

Ungewöhnliches Spiel mit Glas und licht

Ein besonderes Highlight sind die fest integrierten, mit asiatischem Muster verzierten, Glaselemente, welche zum einen als eleganter Raumteiler fungieren und zum anderen durch die indirekte Beleuchtung als optischer Blickfang fungieren.

Patel

Attraktion im Obergeschoss ist der Meditationsbereich, der sich hinter dem großzügigen Erker befindet. Diese hinduistische Gebetsstätte ist mit dem Galerie-Flur durch eine Art Brücke verbunden. Der Raum seitlich des Glasgeländers ist offen und damit direkt mit dem Erdgeschoss verbunden. Oberlichter im Dach sorgen für ein mystisches Lichtspiel. Der gegenüberliegende Arbeitsbereich ist durch filigrane Glaselemente separiert und herrlich lichtdurchflutet.

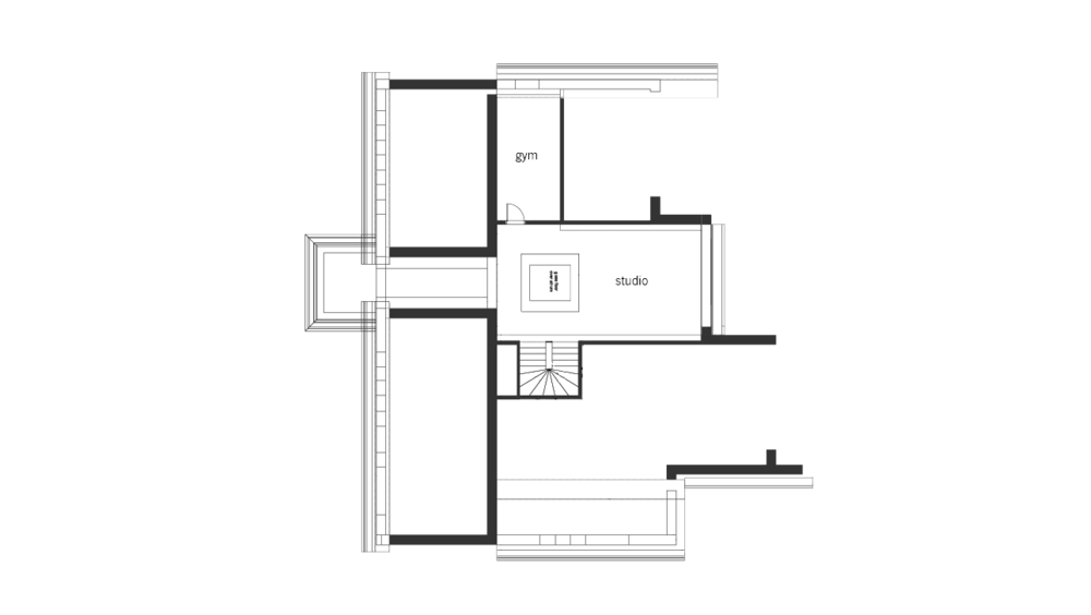
Grundrisse

EG

OG

DG

* Die Quadratmeter-Angaben beziehen sich auf die Nettogeschossfläche und sind nicht gleichzusetzen mit der Wohnfläche nach DIN. Bei Häusern mit Kniestock (z. B. Doppelhaus) kann die angegebene Zahl dementsprechende Abweichungen zwischen der angegebenen Bodenfläche und Wohnfläche aufweisen.

Diese Themen könnten Sie auch interessieren

14 Schritte bis zu Ihrem Wunschhaus

Es sind exakt 14 Schritte bis zu Ihrem neuen Baufritz-Zuhause. Warum wir Ihnen das versprechen können? Weil wir wissen, wie …

14 Schritte bis zu Ihrem Wunschaus

10 Gründe für Baufritz

Haushersteller gibt es viele. Welche Kriterien wirklich zählen? Machen Sie einfach den Vergleich ...

10 Gründe für Baufritz

Sie haben Fragen?

Finden Sie Ihren persönlichen Fachberater ganz in Ihrer Nähe und vereinbaren Sie gleich einen Termin.

Fachberater-Suche