Münch

Kundenhaus

Münch

Modernes Outfit, offener Treppenaufgang mit Holzverkleidung und 37 cm starke Außenwände – so präsentiert sich das Mehrfamilienhaus Münch in Coburg. Mit ca. 263 Quadratmeter Wohn-/Nutzfläche beherbergt das in Natursilber lasierte Domizil vier Wohnungen. Zwei mit je zwei Zimmern und die anderen beiden mit jeweils drei Zimmern. Bei der streng kubischen Bauweise wurde die Architektur auf das Wesentliche beschränkt. Zukunftsweisend: Der rechteckige Baukörper mit seinem flachen Pultdach wurde mit der Option gebaut, in der Zukunft eine weitere Etage aufzustocken.

Hausdaten

Bauaufgabe
Mehrfamilienhaus
Haustyp
Individuell
Dachform
Pultdach
Fassade
Holz
Baukörper
rechteckig
Geschosse
2
Außenmaße in m
15,66 x 11,91
Wohneinheiten
4
Wohnfläche in m² *
263
Preis ab
1.015.000 € i
Dafür steht Baufritz:
Münch

Für mehrere Familien im gesunden Konsens

Oliver Engelhardt

Architekt

Oliver Engelhardt

"Innovative Haustechnik und ein ruhiges, durchgängiges Design zeichnen unser Bio-Mehrfamilienhaus "Münch" aus. Das mit Erdgas betriebene Blockheizkraftwerk produziert kosten- und energieeffizient Wärme und Strom für alle vier Parteien. Zusätzlich dient eine Photovoltaik-Anlage auf dem Pultdach dieses Mehrfamilienhauses der Energiegewinnung. Die großzügigen Balkon- und Terrassenflächen laden im Sommer ein, das Wohnzimmer nach außen zu verlagern. Prominente Fensterfronten durchfluten die offenen Wohn- und Essbereiche mit Licht und gewähren einen freien Blick in die Natur. Getrennte Eingangsbereiche sowie ein optimaler Schall- und Sichtschutz sorgen für ein entspanntes Miteinander zwischen den Parteien."

Münch

Die graue Holzfassade passt sehr gut zur Form, wirkt gleichermaßen schlicht wie klassisch-zeitlos und fügt sich nahtlos in die umliegende Natur. Der Treppenaufgang zum Dachgeschoss wurde, um im Inneren Platz zu sparen, dem eigentlichen Baukörper vorgelagert. Trockenen Fußes gelangt man dank der Überdachung auch ins Dachgeschoss. Die seitlich angebrachte Holz-Lamellenverkleidung dient nicht nur als Wetterschutz, sondern bildet einen interessanten Eyecatcher. Die vertikal angebrachten Lamellen bieten im Vorübergehen ein stimmungsvolles Spiel aus Licht und Schatten.

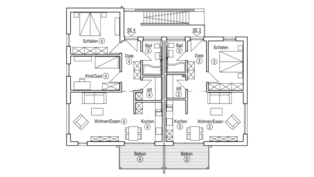
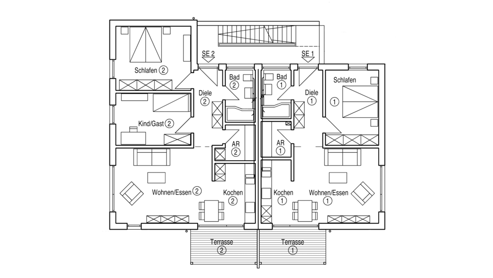
Der gesamte Innenbereich ist qualitativ äußerst hochwertig ausgestattet. Helle, warme Farben betonen den vorherrschend lichten Stil des Hauses. Durch den Treppenaufgang im Außenbereich konnten alle vier Bäder mit Fenstern versehen werden. Der als offener Grundriss umgesetzte Wohn-, Ess- und Kochbereich in allen Wohnungen bietet dank bodentiefer Glastüren direkten Zugang zu Terrasse oder Balkon. Ein Badezimmer sowie ein Schlafzimmer komplettieren das Raumangebot der Zwei-Zimmer-Wohnung. Bei den Drei-Zimmer-Wohnungen ergänzen ein in elegantem Weiß gehaltenes Familienbad und zwei weitere Räume, welche als Kinder- oder Arbeitszimmer genutzt werden können, die großzügige Wohnlandschaft.

Münch
Münch
Münch
Münch
Münch
Münch

Grundrisse

EG

Münch

OG

Münch
Fluhr-Barth

Ihre Steuervorteile beim
privaten Mehrfamilienhausbau

Wussten Sie, dass Sie von Steuervorteilen profitieren können, wenn Sie für mehrere Familien bauen möchten? Durch gezielte Abschreibungen, Sonderabschreibungen und Steuerbegünstigungen können Sie Ihre Steuerlast erheblich senken. Entdecken Sie alle Vorteile und Möglichkeiten, steuerliche Belastungen und Finanzierungskosten zu reduzieren. Haben Sie Fragen zur Steueroptimierung für Ihr Mehrfamilienhaus? Unsere Experten stehen Ihnen bei jeder einzelnen zur Seite.

Jetzt Steuern sparen

* Die Quadratmeter-Angaben beziehen sich auf die Nettogeschossfläche und sind nicht gleichzusetzen mit der Wohnfläche nach DIN. Bei Häusern mit Kniestock (z. B. Doppelhaus) kann die angegebene Zahl dementsprechende Abweichungen zwischen der angegebenen Bodenfläche und Wohnfläche aufweisen.

Diese Themen könnten Sie auch interessieren

14 Schritte bis zu Ihrem Wunschhaus

Es sind exakt 14 Schritte bis zu Ihrem neuen Baufritz-Zuhause. Warum wir Ihnen das versprechen können? Weil wir wissen, wie …

14 Schritte bis zu Ihrem Wunschaus

10 Gründe für Baufritz

Haushersteller gibt es viele. Welche Kriterien wirklich zählen? Machen Sie einfach den Vergleich ...

10 Gründe für Baufritz

Sie haben Fragen?

Finden Sie Ihren persönlichen Fachberater ganz in Ihrer Nähe und vereinbaren Sie gleich einen Termin.

Fachberater-Suche