Architekturentwurf Monolith Terrassenansicht mit Feuerstelle

Vorgeplant

Monolith

Mit klarer Handschrift, offenem Zeitgeist und detailverliebter Linientreue, haben sich die HausDesigner der Herausforderung gestellt, die monolithische Bauweise neu zu definieren: in sich untrennbar und in vollendetem Einklang mit der Natur und den Elementen. Mit dem Architekturentwurf "Monolith" entstand eine ganzheitliche Hauskomposition, die gekonnt den Spagat zwischen Rückbesinnung und Zukunft schlägt – und dabei nie das Vorbild par excellence aus den Augen verliert: die Natur.

Hausdaten

Bauaufgabe
Einfamilienhaus
Haustyp
Individual
Baustil
Landhaus
Dachform
Satteldach
Fassade
Holz
Baukörper
rechteckig
Personen
2 - 5
Geschosse
2
Zimmeranzahl
5
Außenmaße in m
15,08 x 8,20
Wohnfläche in m² *
193
Preis ab
720.000 € i
Dafür steht Baufritz:
Architekturentwurf Monolith Eingangsbereich

In Anlehnung an Vorarlbergs moderne Architekturkunst

 

Die Essenz aus Vorarlberger Architektur. Konzentrierte Linien und pures Design. Die kompakte Kubatur des Architekturentwurfes "Monolith" bringt das moderne Leben auf den Punkt. Ein Ort für Kinder, für Selbstentfaltung, für Hobbies, und – dank integrierter Garage – sogar für Mobilität. Und das Design? Strotzt nur so vor Monomaterialität. Fichte und Tanne durch und durch. Reduziert auf das Wesentliche: Natürlichkeit.

Architekturentwurf Monolith Terrassenansicht Dämmerungsaufnahme

Beim Betrachten des Entwurfes wird sofort deutlich, dass Kubatur und Fassadenkleid schnörkellos und in sich stimmig geplant wurden. Auf die Grundformen der natürlichen Geometrie beschränkt, entstand ein länglicher Gebäudeentwurf mit knapp 200 qm und klassischem Satteldach ohne Dachüberstand. Gekrönt wird der Entwurf von einem sachlichen Blechdach in hellem Grau, welches erheblich zur klaren und zeitlosen Optik des Landhauses beiträgt. Als Gegengewicht zum eher kühlen Blechdach und in Anlehnung an die Vorarlberger Architektur wurde das gesamte Gebäude in eine senkrecht verlaufende, naturbelassene Holzfassade vom Typ "Scala" gehüllt. Waagrechte Fassadenbänder zwischen den beiden Geschoss-Stößen verursachen einen gewollten, optischen Bruch und bringen so Spannung und einen individuellen Look ins Fassadenbild. Natürliche Leichtigkeit entsteht durch großen Fensterflächen, die charakterprägend für den Architekturentwurf "Monolith" sind. So auch auf der Süd-West-Seite des Landhauses, wo Hebe-Schiebe-Türen einen direkten Zugang auf die großzügige, L-förmige Terrasse ermöglichen. Direkt nebeneinander angeordnet, lassen die Glasflächen hier, auf der Sonnenseite des Hauses, die Anmutung einer filigranen Übereckvergalsung entstehen und greifen die oben genannte Leichtigkeit des imposanten Entwurfes nochmals auf.

Ganz im Kotrast zur geöffneten Süd-West-Seite stehen die Nord- und die Ostseite des Entwurfes. Auf diesen Seiten schließt sich die Fassade optisch, denn anstatt raumhoher Verglasungen wurde hier auf waagrecht liegende Fensterbänder gesetzt. Um die Wirkung eines zusammenhängenden Bandes zu verstärken und gleichzeitig eine schlüssig Brücke zum Fassadenwechsel im Geschossstoß herzustellen, wurde der Raum zwischen den einzelnen Fenstern ebenfalls im Look der Fassadenbänder im Geschossstoß gestaltet. Während die Haustüre die farbliche Gestaltung von Dach und Fensterlaibungen aufnimmt, geht das Garagentor nahtlos in die Hausfassade über. Voll und ganz im Grundriss integriert ist ebenfalls die gesamte Garage mit südlich verlängertem Geräteraum – samt separatem Zugang, direkt vom Garten, versteht sich.

Grundrisse

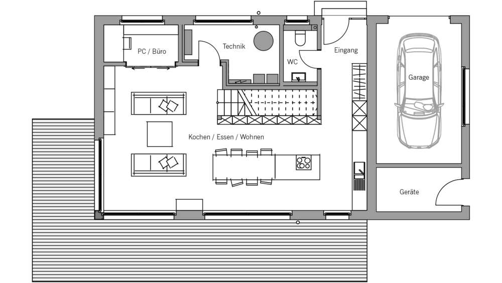
EG

Architekturentwurf Monolith Grundriss Erdgeschoss

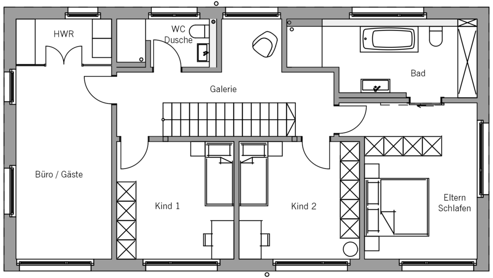
OG

Architekturentwurf Monolith Grundriss Obergeschoss

* Die Quadratmeter-Angaben beziehen sich auf die Nettogeschossfläche und sind nicht gleichzusetzen mit der Wohnfläche nach DIN. Bei Häusern mit Kniestock (z. B. Doppelhaus) kann die angegebene Zahl dementsprechende Abweichungen zwischen der angegebenen Bodenfläche und Wohnfläche aufweisen.

Diese Themen könnten Sie auch interessieren

14 Schritte bis zu Ihrem Wunschhaus

Es sind exakt 14 Schritte bis zu Ihrem neuen Baufritz-Zuhause. Warum wir Ihnen das versprechen können? Weil wir wissen, wie …

14 Schritte bis zu Ihrem Wunschaus

10 Gründe für Baufritz

Haushersteller gibt es viele. Welche Kriterien wirklich zählen? Machen Sie einfach den Vergleich ...

10 Gründe für Baufritz

Sie haben Fragen?

Finden Sie Ihren persönlichen Fachberater ganz in Ihrer Nähe und vereinbaren Sie gleich einen Termin.

Fachberater-Suche