
14 Schritte bis zu Ihrem Wunschhaus
Es sind exakt 14 Schritte bis zu Ihrem neuen Baufritz-Zuhause. Warum wir Ihnen das versprechen können? Weil wir wissen, wie …
Sie möchten alle Vorteile von myBaufritz nutzen? Dann melden Sie sich bitte jetzt an.
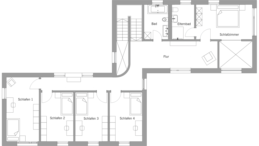
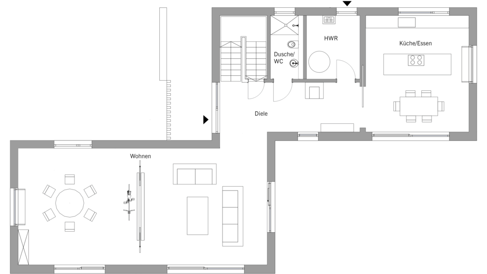
Kundenhaus
Starke Einheit: Architektur und Natur im Einklang
Architekt
Magnus Nilsson
„Passend zu der sehr ländlichen Gegend präsentiert sich der Entwurf im zeitgenössischen Barn-Style. Der Grundriss besteht aus zwei Baukörpern, die den Eindruck erwecken, aneinander vorbei zu gleiten. Die Architektursprache gewinnt dadurch an Dynamik und lässt das Gebäude trotz seiner stattlichen Größe angenehm proportioniert wirken.“
Grenzenloser Horizont
Stellen Sie sich vor, Sie öffnen die Augen und der erste Blick des Tages streift über grüne Baumkronen und mündet im blauen Morgenhimmel. Eine Festverglasung im Schlafzimmer verlängert das große quadratische Fenster in der Fassade und macht genau das möglich. Schaltbares Smart Glas sorgt für maximale Privatsphäre.
Fließende Übergänge
Unter dem „Bilderrahmen-Fenster“ vom Schlafzimmer befindet sich der Esstisch. An dieser Stelle öffnet sich der Raum bis unter das Dach. Der Ess- und Kochbereich verwöhnt mit jeder Menge Tageslicht und einem großzügigen Raumgefühl. Das Haus ist so geplant, dass die Räume, in denen die Familie lebt, nach Südwesten ausgerichtet sind und über große Fensterflächen verfügen. Die Natur soll jederzeit ins tägliche Leben einbezogen werden.
„Obwohl das neue Familienhaus betont modern werden sollte, war eine alte Scheune das Vorbild für die Entwürfe. Das Ergebnis: Zwei versetzte Baukörper, die eine Einheit bilden und vom Spiel zwischen innen und außen leben. Geplant mit Respekt vor der Natur.“
Magnus Nilsson, Architekt
Bestellen Sie Ihre Unterlagen und lassen Sie sich inspirieren
Sie möchten wissen, was Sie erwartet?
"LookBook"
Individuelle Architektur: Einfamilienhäusern, Doppelhäuser, Bungalows, Anbau, Aufstockung.
Budget: ab 450.000 €
Wohnfläche: ab 100 m²
Bauen im Bestand
Konkrete Beispiele für Anbau, Aufstockung, Ersatzneubau und Nachverdichtung.
Herangehensweise und Rechenbeispiel inklusive.
Smart vorgeplante Grundrisse. Zum Individualisieren. Preisliste inklusive.
Budget: ab 3.500 €/m²
Wohnfläche: bis 170 m²
"The Home"
Internationale, maßgeschneiderte Architekturprojekte
Budget: ab 1.000.000 €
Wohnfläche: ab 200 m²
Ökologisch und zukunftsorientiert in echte Werte investieren: 48 Seiten Mehrfamilienhausbau.
Budget: ab 1.000.000 €
ab 3 Wohneinheiten