Herndl

Kundenhaus

Herndl

Mitten im Ort nahe der stattlichen Kirche ist Baugrund attraktiv und gesucht – ein guter Grund für die Errichtung des neuen Mehrfamilienhauses in klassischer Kubatur und mit Satteldach. Mit seiner silbergrauen „Credo“-Holzverschalung, kombiniert mit weißer Mineralputzfassade, fügt es sich harmonisch ins Gesamtbild der Gemeinde und wird neuer Nachbar eines traditionellen Bauernhauses am Fuße des Schweizer Juramassivs. Hier wurde schon immer Gemüse selbst angebaut, streng ökologisch im eigenen Garten. Gesundheit und das respektvolle Leben mit der Natur ziehen deshalb auch in den Neubau ein, der darauf ausgelegt ist, unterschiedlichen Lebensphasen geeigneten Raum zu bieten. So wird irgendwann die Bauersfrau vermutlich das barrierefreie Wohnen im Erdgeschoss schätzen. Und was den Energiebedarf angeht, verbraucht eine Partei im alten Bauernhaus so viel wie drei Parteien im neuen Haus. Denn dieses ist mit Solarthermie-Panels ausgestattet, nach modernen Standards ideal isoliert und spürbar wohngesund.

Hausdaten

Bauaufgabe
Mehrfamilienhaus
Haustyp
Individuell
Dachform
Satteldach
Fassade
Holz-Putz-Kombination
Baukörper
rechteckig
Geschosse
2,5
Außenmaße in m
16,33 x 7,58
Wohneinheiten
3
Wohnfläche in m² *
237
Preis ab
1.035.000 € i
Dafür steht Baufritz:
Herndl

Einigkeit im Mehrfamilienhaus bei Wohngesundheit

Architekt

Simone Pretelli

"Bei diesem Mehrfamilienhaus-Projekt entschieden sich die Bauherren für ein modernes Gebäude mit drei Wohneinheiten, das sich harmonisch neben dem alten Bauernhaus in die Landschaft fügt."

Herndl
Herndl
Herndl
Herndl
Herndl
Herndl
Herndl
Herndl
Herndl
Herndl

Gutes KLima von grund auf

Ein heller Eichenboden - geölte Landhausdielen - darf auf allen Etagen einziehen und sorgt für ein wunderbar warmes Wohnraumklima.

"Ein gesundes Haus bedeutet gesundes Miteinander"

Im Schweizer Kanton Waadt haben Dora Herndl und ihr Sohn Sebastien gemeinsam mit Baufritz ein Mehrfamilienhaus errichtet. Warum gleich drei Wohneinheiten in einem neuen Gebäude neben dem alten Bauernhaus entstehen sollten und warum sie so viel Lob für ihr aktuelles Wohnkonzept erhalten, erzählen die beiden gerne.

ZUR HOMESTORY

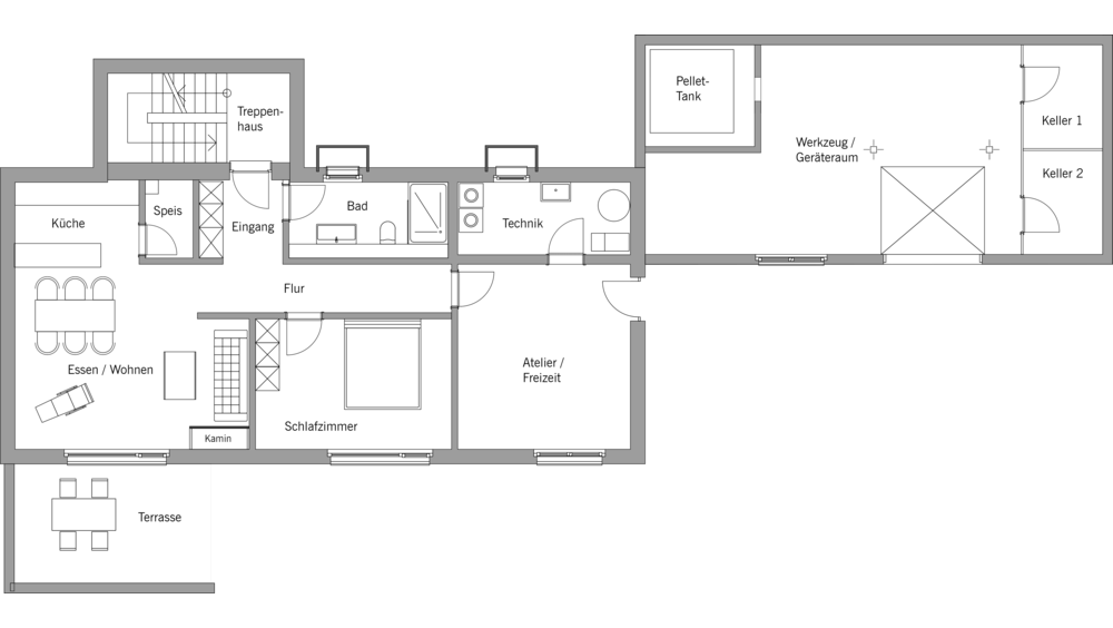
Grundrisse

EG

Herndl

DG

Herndl

KG

Herndl
Fluhr-Barth

Ihre Steuervorteile beim
privaten Mehrfamilienhausbau

Wussten Sie, dass Sie von Steuervorteilen profitieren können, wenn Sie für mehrere Familien bauen möchten? Durch gezielte Abschreibungen, Sonderabschreibungen und Steuerbegünstigungen können Sie Ihre Steuerlast erheblich senken. Entdecken Sie alle Vorteile und Möglichkeiten, steuerliche Belastungen und Finanzierungskosten zu reduzieren. Haben Sie Fragen zur Steueroptimierung für Ihr Mehrfamilienhaus? Unsere Experten stehen Ihnen bei jeder einzelnen zur Seite.

Jetzt Steuern sparen

* Die Quadratmeter-Angaben beziehen sich auf die Nettogeschossfläche und sind nicht gleichzusetzen mit der Wohnfläche nach DIN. Bei Häusern mit Kniestock (z. B. Doppelhaus) kann die angegebene Zahl dementsprechende Abweichungen zwischen der angegebenen Bodenfläche und Wohnfläche aufweisen.

Diese Themen könnten Sie auch interessieren

14 Schritte bis zu Ihrem Wunschhaus

Es sind exakt 14 Schritte bis zu Ihrem neuen Baufritz-Zuhause. Warum wir Ihnen das versprechen können? Weil wir wissen, wie …

14 Schritte bis zu Ihrem Wunschaus

10 Gründe für Baufritz

Haushersteller gibt es viele. Welche Kriterien wirklich zählen? Machen Sie einfach den Vergleich ...

10 Gründe für Baufritz

Sie haben Fragen?

Finden Sie Ihren persönlichen Fachberater ganz in Ihrer Nähe und vereinbaren Sie gleich einen Termin.

Fachberater-Suche