
14 Schritte bis zu Ihrem Wunschhaus
Es sind exakt 14 Schritte bis zu Ihrem neuen Baufritz-Zuhause. Warum wir Ihnen das versprechen können? Weil wir wissen, wie …
Sie möchten alle Vorteile von myBaufritz nutzen? Dann melden Sie sich bitte jetzt an.
Kundenhaus
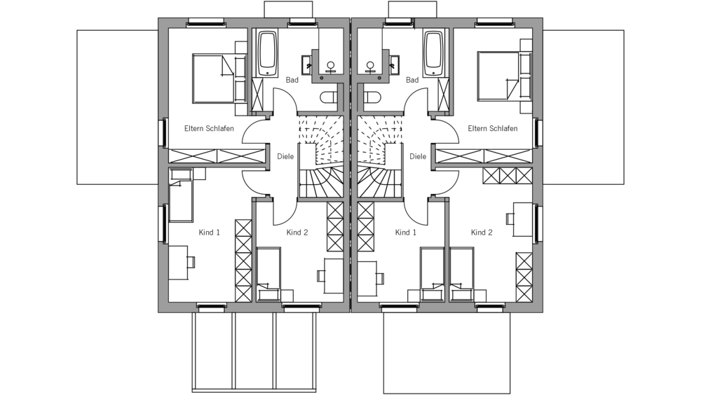
Teuren Baugrund teilen, Lebensqualität verdoppeln. Das ist die Formel für den Entwurf „Duo“. Ob zwei Generationen unter einem Dach, Selbstbezug oder Kapitalanlage – dieses Duo verbindet: Nachhaltigkeit und Werthaltigkeit, Kopf und Bauch. Auf je 170 QM leben hier Weite und Wohngesundheit Tür an Tür.
Von außen betrachtet erfüllt der "Duo"-Doppelhausentwurf alle Merkmale eines modernen und familienoptimierten Gebäudes, das mit klassischen Formen und Elementen spielt. Das Satteldach mit klassischer Ziegelbedeckung und einer waagrecht-laufenden Credo-Holzfassade in Natursilber wahren ein durchaus traditionelles Erscheinungsbild – ohne dabei in irgendeiner Weise spießig zu wirken. Von der Eingangsseite, die gen Norden gerichtet ist, kann man die ausbalancierte Symmetrie des Doppelhauses perfekt erkennen. Mit einem vertikalen Schnitt in der Hausmitte trennt eine schmale Schattenlinie die beiden Haushälften, welche identisch aber spiegelverkehrt aufgebaut sind. Beide Haustüren sind mit einem schlichten, weißen L-Modul versehen, wobei auch hier die symmetrische Spiegelung im Gesamtbild berücksichtigt wurde. Mit perfekt angeordneten, minimalistischen Fenstern sowie zwei Dachfenstern wirkt die Hauseingangsseite sehr einladend, freundlich und aufgeräumt. An den beiden Seitenflügeln des Doppelhauses ist Platz für ein Carport. Betrachtet man die Gesamtkubatur des Doppelhaus-Entwurfs von einer der identisch-gespiegelten Seiten, erkennt man die filigrane Giebelverglasung des Dachgeschosses, wodurch zudem erkennbar wird, dass sich jede Doppelhaushälfte über drei Etagen plus Keller erstreckt. Die Südseite zum Garten hin gilt als Freizeitseite der Haushälften, auf der zwei separate Terrassen zum Entspannen, Spielen und gemütlichem Beisammensein mit Freunden einladen. Mit einer filigranen Pergola überbaut, bleiben hier keinerlei Wünsche offen. Zutritt zum Outdoor-Wohnzimmer bekommt man über eine große Hebe-Schiebe-Türe aus Glas, direkt vom offen geplanten Wohn-, Ess- und Kochbereich. Gleichzeitig profitiert das Erdgeschoss beider Haushälften dadurch von viel Tageslicht und Helligkeit. Im OG sind gen Süden jeweils zwei Fenster in die Fassade integriert, die dort die beiden Kinderzimmer jeder Haushälfte ganztägig mit natürlichem Licht verwöhnen – egal ob bei den Hausaufgaben oder beim Spielen.
Bestellen Sie Ihre Unterlagen und lassen Sie sich inspirieren
Sie möchten wissen, was Sie erwartet?
"LookBook"
Individuelle Architektur: Einfamilienhäusern, Doppelhäuser, Bungalows, Anbau, Aufstockung.
Budget: ab 450.000 €
Wohnfläche: ab 100 m²
Bauen im Bestand
Konkrete Beispiele für Anbau, Aufstockung, Ersatzneubau und Nachverdichtung.
Herangehensweise und Rechenbeispiel inklusive.
Smart vorgeplante Grundrisse. Zum Individualisieren. Preisliste inklusive.
Budget: ab 3.500 €/m²
Wohnfläche: bis 170 m²
"The Home"
Internationale, maßgeschneiderte Architekturprojekte
Budget: ab 1.000.000 €
Wohnfläche: ab 200 m²
Ökologisch und zukunftsorientiert in echte Werte investieren: 48 Seiten Mehrfamilienhausbau.
Budget: ab 1.000.000 €
ab 3 Wohneinheiten