Barn L

Barn L

Das Haus Barn L aus der vorgeplanten Barn-Collection ist ein großzügiger, ebenerdiger Bungalow in L-Form mit überraschenden Möglichkeiten unter dem Satteldach. Ideal für ein großes Grundstück auf dem Lande, ist ein Flügel des Hauses als offener Küchen-, Wohn- und Essbereich mit atemberaubender, offener Deckenkonstruktion in Eiche gedacht. Im anderen befinden sich vier Schlafzimmer, von denen zwei ein eigenes Bad haben und zwei sich ein gemeinsames Bad teilen. Die Eingangshalle, mit raffiniertem Oberlicht-Detail plus Sonnenschutz, und ein Hauswirtschaftsraum in der Mitte des Hauses bilden eine ruhige Zone zwischen diesen beiden Bereichen. Wahlweise kann eine Wendeltreppe zusätzlich den Dachraum erschließen. Freie Wahl gibt es auch bei der Gestaltung von Dach und Fassade: Das geneigte Dach wird mit Stehfalzblechen oder mit Tonziegeln gedeckt. Denn wie bei jedem Haus aus der Signature Homes-Reihe verleiht der Bauherr den besonderen Hauch an Individualität.

Hausdaten

Bauaufgabe
Einfamilienhaus
Haustyp
Signature Home
Baustil
Landhaus
Dachform
Satteldach
Fassade
Holz
Baukörper
rechteckig
Personen
2 - 4
Geschosse
2
Zimmeranzahl
8
Außenmaße in m
29.45 x 19.45
Preis ab
1.710.000 € i
Dafür steht Baufritz:
Barn L

Als Bungalow mit Satteldach für Überraschungen offen

Architekt

Ralf Pflugfelder

Es sind Planungen wie diese, die Architektur so besonders machen: Bungalow. Ebenerdig. Wie in einem Fluss gehen die Räume von Barn L quasi nahtlos ineinander über. Dazu die Option, unter dem Dach weiteren Wohnraum zu schaffen. Bauherren lieben solche Freiheiten. Und auch wenn wir bei Grundriss, Proportionen und der Platzierung der Fensterflächen nichts dem Zufall überlassen haben – das Raumgefühl mit der eleganten Überhöhe und den sichtbaren Eichenbalken ist einzigartig.

Barn L
Barn L

Auf allen Ebenen unerreicht

In der einstöckigen Version ist Barn L komplett rollstuhlgeeignet. Durch die gekonnte Vorauswahl der Materialien für Dach und Fassade fügt es sich harmonisch in eine ländliche Umgebung ein. Mit seinen dreifach verglasten, aluminiumverkleideten Holzfenstern und der nachhaltigen Holzbauweise in 100 % Baufritz-Qualität erfüllt das luxuriöse Einfamilienhaus die höchsten Anforderungen an Energieeffizienz, Klimaneutralität und Wohngesundheit. Auf dem Dach können optional Solarzellen installiert werden.

Barn L

Was für ein Empfang

Barn L steht, wie alle Häuser aus der Signature Homes Collection, für volle Flexibilität bei der Einrichtung der Innenräume. Der Dachboden kann teilweise ausgebaut werden, um einen Mehrzweckraum zu schaffen, der durch eine schwarze Stahlbalustrade von der Eingangshalle getrennt ist. Tageslicht fällt durch ein Oberlicht mit Festverglasung und Sonnenschutz. Das tiefe Panoramafenster in der Diele ist ein typisches Baufritz-Gestaltungselement.

Die Varianten im Vergleich

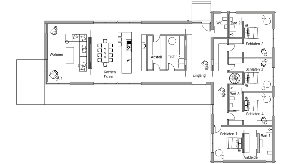
Grundrisse

EG

Barn L

DG

Barn L

Die Grundrisse dienen nur zur Veranschaulichungszwecken.

Barn L

Luft nach oben und außen

Das Satteldach macht es möglich: Mit der Entscheidung, den Dachraum offen zu lassen, installieren wir über dem offenen Ess- und Wohnbereich eine hohe Gewölbedecke mit freiliegenden Eichenbalken. Französische Schiebetüren führen auf die Terrasse. Auch die kommt auf Wunsch von uns.

Barn L

Raumgefühl inklusive

In einem nachhaltigen Baufritz-Haus zu leben, hat viele Vorteile. Wir verwenden in unseren Häusern nur zertifizierte Naturmaterialien, um sicherzustellen, dass Sie in Ihrem Haus gesund leben können. Bei Barn L, wie bei allen Häusern aus der Reihe der Signature Homes, haben anspruchsvolle Bauherren große Freiheiten, wenn es um die persönliche Note geht. Inspiration liefert auch unsere HausSchneiderei.

Classic XL

Baufritz Signature Homes. Schneller schöner bauen. Mit persönlicher Handschrift.
Und dem Anspruch von Baufritz.

Die Signature Homes von Baufritz stehen für eine Premium-Philosophie des Wohnens in Holz. Mit einzigartigen architektonischen Möglichkeiten und innovativem planerischem Konzept. Jedes Haus ist bereits sorgfältig vorgeplant. So lassen sich Bauvorhaben enorm beschleunigen, mit größter Sicherheit bei Budget und Qualität, für unkomplizierte Genehmigungs- und Bauprozesse. Wählen Sie aus der Barn Collection und der Classic Collection. Und sehen Sie, mit welchem Anspruch unsere Hausdesigner an die Signature Homes gehen.

Unsere Signature Homes

* Die Quadratmeter-Angaben beziehen sich auf die Nettogeschossfläche und sind nicht gleichzusetzen mit der Wohnfläche nach DIN. Bei Häusern mit Kniestock (z. B. Doppelhaus) kann die angegebene Zahl dementsprechende Abweichungen zwischen der angegebenen Bodenfläche und Wohnfläche aufweisen.

Diese Themen könnten Sie auch interessieren

14 Schritte bis zu Ihrem Wunschhaus

Es sind exakt 14 Schritte bis zu Ihrem neuen Baufritz-Zuhause. Warum wir Ihnen das versprechen können? Weil wir wissen, wie …

14 Schritte bis zu Ihrem Wunschaus

10 Gründe für Baufritz

Haushersteller gibt es viele. Welche Kriterien wirklich zählen? Machen Sie einfach den Vergleich ...

10 Gründe für Baufritz

Sie haben Fragen?

Finden Sie Ihren persönlichen Fachberater ganz in Ihrer Nähe und vereinbaren Sie gleich einen Termin.

Fachberater-Suche