Wick

Kundenhaus

Wick

Wie sieht es aus, das perfekte Familiendomizil? Familie Wick hatte bei der Planung ihres Traumhauses klare Prioritäten: In erster Linie sollte es viel Platz für die vier Bewohner bieten. Dabei durfte natürlich auch die Optik nicht zu kurz kommen. Ganz weit oben auf der Wunschliste für das neue Zuhause stand aber noch ein anderer wichtiger Punkt: die Alltagstauglichkeit. Denn mit zwei kleinen Kindern bleibt nicht viel Zeit für aufwendige Pflegearbeiten und lange Wege. Aus diesen Vorgaben entstand ein großzügiges Haus, das auf maximalen Komfort ausgerichtet ist.

Hausdaten

Bauaufgabe
Einfamilienhaus
Haustyp
Individuell
Baustil
Moderne Klassiker
Dachform
Satteldach
Fassade
Holz
Baukörper
rechteckig
Personen
2 - 5
Geschosse
2
Zimmeranzahl
5
Außenmaße in m
11,95 x 8,83
Wohnfläche in m² *
168
Preis ab
945.000 CHF i
Dafür steht Baufritz:
Zertifizierte Wohngesundheit
Nachhaltig & klimaschonend
Individuelle Architektur
Energiestandards möglich
Elektrosmog-Schutz Xund-E
Ausbau mit schweizer Partnern
Wick

Spielend gesünder wohnen

Oliver Engelhardt

Architekt

Oliver Engelhardt

"Familie Wick hatte bei der Planung ihres Traumhauses klare Prioritäten: Es sollte viel Platz für die vier Bewohner bieten aber vor allem alltagstauglich sein. Dabei durfte natürlich auch die Optik nicht zu kurz kommen. Aus diesen Vorgaben entstand ein großzügiges Haus, das auf maximalen Komfort ausgerichtet ist."

Wick
Wick
Wick
Wick
Wick
Wick

Auf den Familienalltag abgestimmt

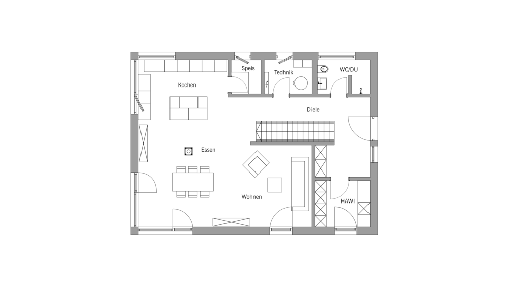
Das Innere des Ökohauses zeigt sich überraschend offen: Schon beim Betreten fällt der Blick durch die Diele direkt in den lichtdurchfluteten Wohn-, Ess- und Kochbereich. Über den Boden ziehen sich großformatige Fliesen in einem warmen Grau-Braun. Sie bilden die perfekte Basis für den turbulenten Familienalltag, denn sie sind pflegeleicht und nehmen es nicht übel, wenn einmal das Besteck oder das Spielzeug herunter fällt. Das Interieur wird geprägt von einem stilvollen Grau-Weiß-Kontrast, der von natürlichen Holzoberflächen ergänzt wird. Besonders schön sind die frei liegenden Holzträger, die eine gemütliche Landhausatmosphäre schaffen.

Wick

Flexibel bleiben

Während das Erdgeschoss ganz den gemeinschaftlichen Aktivitäten gewidmet ist, stehen die Zeichen im Dachgeschoss auf Ruhe und Entspannung. Fast überall wurde Vollholzparkett verlegt, das Gemütlichkeit in die Räume einziehen lässt. Zwei gleich große Kinderzimmer, ein geräumiges Familienbad mit platzsparendem T-Installationsblock und ein Elternschlafzimmer mit Ankleide lassen keine Wünsche offen. Platzreserven bietet das vierte Zimmer, das derzeit als Homeoffice genutzt wird. Sollte sich erneut Nachwuchs ankündigen, lässt es sich aber auch schnell in ein weiteres Kinderzimmer umgestalten.

Grundrisse

EG

Wick

DG

Wick

* Die Quadratmeter-Angaben beziehen sich auf die Nettogeschossfläche und sind nicht gleichzusetzen mit der Wohnfläche nach DIN. Bei Häusern mit Kniestock (z. B. Doppelhaus) kann die angegebene Zahl dementsprechende Abweichungen zwischen der angegebenen Bodenfläche und Wohnfläche aufweisen.

Diese Themen könnten Sie auch interessieren

14 Schritte bis zu Ihrem Wunschhaus

Es sind exakt 14 Schritte bis zu Ihrem neuen Baufritz-Zuhause. Warum wir Ihnen das versprechen können? Weil wir wissen, wie …

14 Schritte bis zu Ihrem Wunschaus

10 Gründe für Baufritz

Haushersteller gibt es viele. Welche Kriterien wirklich zählen? Machen Sie einfach den Vergleich ...

10 Gründe für Baufritz

Sie haben Fragen?

Finden Sie Ihren persönlichen Fachberater ganz in Ihrer Nähe und vereinbaren Sie gleich einen Termin.

Fachberater-Suche