Steffen

Kundenhaus

Steffen

Markant und souverän ist die Architektur-Sprache des Designhauses von Familie Steffen im Großraum Frankfurt und mitten in einer gewachsenen Wohnumgebung. Es ist das steile Satteldach, das die Silhouette prägt. Zur Straße hin klassisch zurückhaltend und harmonisch ins Bild der ruhigen Straße eingebunden, öffnet sich der Blick in den weiten Garten zu einer beeindruckenden Architektur in Glas. Gefasst in einer Pfosten-Riegel-Konstruktion aus energieeffizienten Profilen und tragender Holzkonstruktion ist die Westfront des Hauses komplett verglast und mit handgeschlagenem Naturstein eingefasst. Fließend leicht ist das Raumgefühl bis unters Dach, mit dem gekonnten Zusammenspiel der Stahlträger als gestalterischem Element und der offenen Holzbalkendecke in Weiß. Weit gleitet der Blick bis in die hügelige Landschaft Südhessens und nutzt die Hanglage ideal. So ist selbst das Kellergeschoss mit Terrasse und Garten-Zugang raumhoch verglast, hell und einladend. Eine seitliche Terrasse im Erdgeschoss und nach Süden gerichtet, ergänzt das äußere Bild.

Hausdaten

Bauaufgabe
Einfamilienhaus
Haustyp
Individuell
Baustil
Modern / Design
Dachform
Satteldach
Fassade
Stein
Baukörper
rechteckig
Personen
2 - 4
Geschosse
2,5
Zimmeranzahl
6
Außenmaße in m
12,58 x 9,45
Wohnfläche in m² *
272
Preis ab
2.085.000 CHF i
Dafür steht Baufritz:
Zertifizierte Wohngesundheit
Nachhaltig & klimaschonend
Individuelle Architektur
Energiestandards möglich
Elektrosmog-Schutz Xund-E
Ausbau mit schweizer Partnern
Steffen

Hier hat Horizont ein Zuhause

Architekt

Hans-Georg Stotz

„Weit gereist und lange im Ausland zu Hause, hatte der Bauherr genaue Vorstellungen von den neuen vier Wänden. Die Wahl fiel auf Glas, Stein und Holz. Bei der Entwurfsplanung haben wir, Baufamilie und Architekt, eng zusammengearbeitet. Entstanden ist eine entspannte Harmonie aus natürlichen Materialien, die Weite und Ankommen zugleich vermitteln.“

Steffen
Steffen
Steffen
Steffen
Steffen

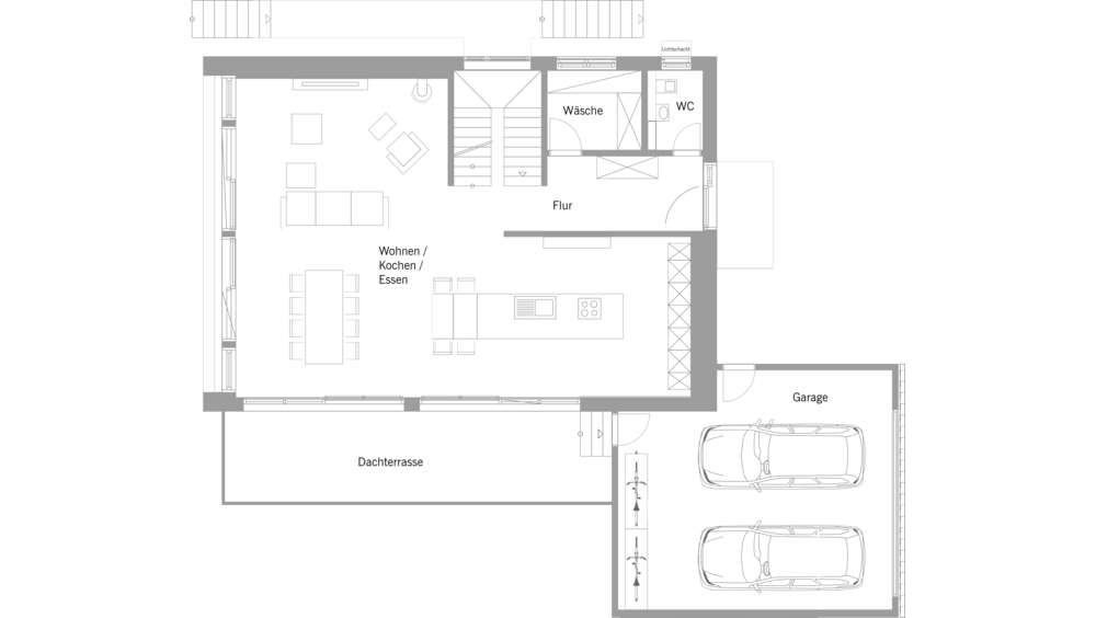
Grundrisse

EG

OG

DG

KG

* Die Quadratmeter-Angaben beziehen sich auf die Nettogeschossfläche und sind nicht gleichzusetzen mit der Wohnfläche nach DIN. Bei Häusern mit Kniestock (z. B. Doppelhaus) kann die angegebene Zahl dementsprechende Abweichungen zwischen der angegebenen Bodenfläche und Wohnfläche aufweisen.

Diese Themen könnten Sie auch interessieren

14 Schritte bis zu Ihrem Wunschhaus

Es sind exakt 14 Schritte bis zu Ihrem neuen Baufritz-Zuhause. Warum wir Ihnen das versprechen können? Weil wir wissen, wie …

14 Schritte bis zu Ihrem Wunschaus

10 Gründe für Baufritz

Haushersteller gibt es viele. Welche Kriterien wirklich zählen? Machen Sie einfach den Vergleich ...

10 Gründe für Baufritz

Sie haben Fragen?

Finden Sie Ihren persönlichen Fachberater ganz in Ihrer Nähe und vereinbaren Sie gleich einen Termin.

Fachberater-Suche