Richter

Kundenhaus

Richter

Wenn sich ein zukunftsweisendes Architekturkonzept und preisgekröntes Interior-Design miteinander vereinen, dann darf man sich auf außergewöhnliche Lösungen freuen. Lösungen wie dieser moderne Bio-Neubau, der im kreativen Zusammenspiel zwischen Baufritz und Carolin Stephan, Gewinnerin des „Best of Interior“-Awards 2018, entstand. Die Interior-Designerin aus München besitzt ein besonderes Talent: Aus der Persönlichkeit ihrer Kunden liest sie präzise und einfühlsam deren Wohnbedürfnisse ab. Ihr feines Gespür für Trends und die Lebensführung der zukünftigen Bewohner prägte auch die Arbeit an diesem individuell geplanten Fertighaus – ein Haustyp, an den sie sich übrigens zum ersten Mal wagte.

Hausdaten

Bauaufgabe
Einfamilienhaus
Haustyp
Individuell
Baustil
Modern / Design
Dachform
Satteldach
Fassade
Blech
Baukörper
rechteckig
Personen
2 - 4
Geschosse
2,5
Zimmeranzahl
5
Außenmaße in m
9,40 x 13,16
Besondere Anforderungen
Wohnen & Arbeiten
Wohnfläche in m² *
205
Preis ab
1.900.000 CHF i
Dafür steht Baufritz:
Zertifizierte Wohngesundheit
Nachhaltig & klimaschonend
Individuelle Architektur
Energiestandards möglich
Elektrosmog-Schutz Xund-E
Ausbau mit schweizer Partnern
Richter

Herrlich unkonventionelle Wahl der Materialien

Richter

Interior Design

Carolin Stephan

"Der Grundriss ist offen und fließend. Das Prinzip von Gemeinschaft und Rückzug zieht sich durch alle Bereiche des Hauses. Die verwendeten Materialien sind zeitlos und authentisch. Sie sprechen die Sinne an und dürfen in Würde altern. Das Haus ist eine fantastische Bühne für all die besonderen Möbelstücke."

Richter
Richter
Richter
Richter
Richter
Richter
Richter
Richter
Richter
Richter
Richter
Richter
Richter
Richter
Richter
Richter
Richter
Richter
Richter

 

Auf allen ebenen gelungen

Warme Naturtöne, organische Formen und gekonnt ausgewählte Materialien wirken wie eine Reminiszenz an das Design der 60er-Jahre. Dabei spielten die Planer mit unterschiedlichen Oberflächen und verschiedenen Ebenen.

Richter

 

Zeitlos extravagante architektur

Die Materialien, die für die Fassadengestaltung verwendet wurden, könnten in Haptik und Optik unterschiedlicher nicht sein: ein interessantes Wechselspiel zwischen Putz, Blech, Holz und üppigen Glasflächen.

Alles außer gewönlich

Im Spiel der Materialien

Mit seiner extravaganten, aber dennoch zeitlosen Architektur schiebt sich das Designhaus herrlich unkonventionell zwischen die klassischen Bestandsbauten. Schon auf den ersten Blick wird dem Betrachter klar: Bei diesem Gebäude wurde nichts dem Zufall überlassen. Alles ist bis ins kleinste Detail durchgeplant. Das fängt bereits bei der Fassadengestaltung an – ein interessantes Wechselspiel zwischen Putz, Blech, Holz und üppigen Glasflächen, die das Innere des Hauses mit Tageslicht fluten. Die Materialien, die in Haptik und Optik nicht unterschiedlicher sein können, setzen spannende Kontrapunkte zueinander und ergänzen sich doch im Gesamtbild zu einer harmonischen Einheit. Ein Beispiel dafür ist die senkrechte Holzverschalung, die sich über das Garagentor bis zur Haustür erstreckt. Mit ihrem warmen, naturbelassenen Farbton steht sie im Spannungsfeld zwischen dem strahlend weißen Putz und dem dunklen, glatten Blech. Zugleich verweist sie auf die ökologische Bauweise des Hauses, bei dem der Naturbaustoff großzügig zum Einsatz kommt. Auf der Gartenseite nimmt die Holzverschalung sogar die komplette Giebelwand inklusive Dachüberstand ein und hüllt die Loggia in ein gemütliches Ambiente. Hier lässt man sich gerne nieder, um zu lesen, zu plaudern oder einfach nur, um die Aussicht über den Garten und das glitzernde Wasser des Pools zu genießen. Vollendet wird die Komposition durch raffinierte Details wie die in den Dachvorsprung integrierte Dachrinne oder die in der Außenwand versteckten Regenfallrohre.

Interieur mit Wow-Effekt

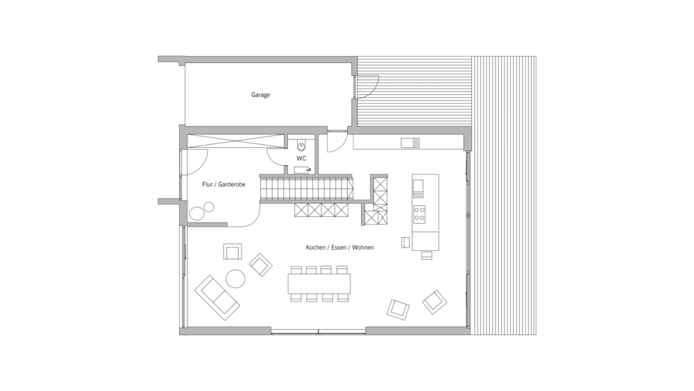
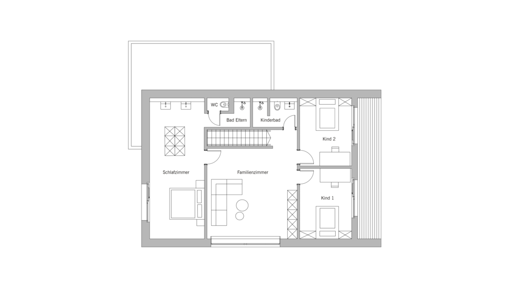
Hinter der Haustür erwartet die Bewohner und Besucher eine offene Wohnwelt mit fließenden Übergängen. Empfangen werden sie von einem exklusiven Entree mit Spiegellamellen, die den Raum optisch vergrößern. Der Eingangsbereich gibt bereits einen ersten Vorgeschmack auf das Interieur: Warme Naturtöne, organische Formen und ausgewählte Materialien wirken wie eine Reminiszenz an das Design der 60er-Jahre. Geschickt wurden die einzelnen Funktionsbereiche voneinander abgrenzt. Dabei spielten die Planer nicht nur mit unterschiedlichen Oberflächen, sondern auch mit verschiedenen Ebenen. Über eine schwungvoll abgerundete Stufe schließt sich der Wohn-, Ess- und Kochbereich an das Entree an. Ein Highlight ist die Designerküche mit ihren edlen goldglänzenden Akzenten und der Coffee-Corner, die zum Plausch bei Kaffee und Kuchen einlädt. Eine gerade Treppe mit beleuchtetem Handlauf führt die Bewohner hinauf in das Obergeschoss, wo nicht nur drei kuschelige Schlafräume und zwei Bäder warten, sondern auch ein großes Familienzimmer. Ausgestattet mit Couch, Fernseher und flauschigem Teppich avanciert es sicher schnell zum Lieblingsplatz der Familie. Auch die Stauflächen kommen bei diesem perfekt durchdesignten Haus nicht zu kurz: Auf beiden Ebenen finden sich hohe Einbauschränke die individuell für den Kunden entworfen und gefertigt wurden.

Grundrisse

EG

DG

KG

Bestellen Sie Ihre Unterlagen und lassen Sie sich inspirieren

  • Mehr als 100 Bilder und Beispiele
  • Baufritz Häuser in Ihrer Nähe
  • Ökologischer Druck und hochwertige Materialien
  • Umweltfreundlicher kostenloser Versand

Fordern Sie jetzt kostenlos Ihre Kataloge an

  • Schritt 1
  • Schritt 2
  • Schritt 3
Für welche Dokumente interessieren Sie sich? * ?

*Pflichtfeld

Ein Fehler ist aufgetreten. Bitte versuchen Sie es später nochmal.

Sie möchten wissen, was Sie erwartet?

Die Kataloge im Überblick

Einfamilienhaus-Katalog

Individuelle Architektur: Einfamilienhäusern, Doppelhäuser, Bungalows, Anbau, Aufstockung.
Budget: ab 700.000 CHF
Wohnfläche: ab 100 m²

Häuser und Grundrisse zum Weiterplanen

Ausgewählte Lieblingsentwürfe. Zum Verlieben. Zum Individualisieren. Preisliste inklusive.
Budget: ab 5.000 CHF/m²
Wohnfläche: bis 170 m²

Internationale Architekturprojekte

"The Home"
Internationale, maßgeschneiderte Architekturprojekte
Budget: ab 1.400.000 CHF
Wohnfläche: ab 200 m²

Mehrfamilienhaus-Katalog

Ökologisch und zukunftsorientiert in echte Werte investieren: 48 Seiten Mehrfamilienhausbau.
Budget: ab 1.400.000 CHF
ab 3 Wohneinheiten

Diese Themen könnten Sie auch interessieren

14 Schritte bis zu Ihrem Wunschhaus

Es sind exakt 14 Schritte bis zu Ihrem neuen Baufritz-Zuhause. Warum wir Ihnen das versprechen können? Weil wir wissen, wie …

14 Schritte bis zu Ihrem Wunschaus

10 Gründe für Baufritz

Haushersteller gibt es viele. Welche Kriterien wirklich zählen? Machen Sie einfach den Vergleich ...

10 Gründe für Baufritz

Sie haben Fragen?

Finden Sie Ihren persönlichen Fachberater ganz in Ihrer Nähe und vereinbaren Sie gleich einen Termin.

Fachberater-Suche