
14 Schritte bis zu Ihrem Wunschhaus
Es sind exakt 14 Schritte bis zu Ihrem neuen Baufritz-Zuhause. Warum wir Ihnen das versprechen können? Weil wir wissen, wie …
Sie möchten alle Vorteile von myBaufritz nutzen? Dann melden Sie sich bitte jetzt an.
Kundenhaus
Architekt
Hans-Georg Stotz
"Der Trend muss sein, nicht mehr riesige Landflächen zu verbrauchen, deswegen ist eine verdichtete Bauweise zukunftsweisend. Wir wollten bei diesem Projekt in Rheinhessen mit sechs vermieteten Wohneinheiten und einer selbst genutzten Penthouse-Wohnung, die wirtschaftlichen und ökologischen Vorteile eines Mehrgeschosses mit dem Wohngefühl eines Einfamilienhauses verknüpfen. Dazu interpretierten wir den klassischen Dreispänner neu. Um eine attraktive Eingangshalle wurden die Wohneinheiten so angedockt, dass intime Gartenhöfe, Loggien und Terrassen entstanden. Sie bieten bei maximaler Belichtung viel Privatsphäre. Zwischen den Wohnungen besteht maximaler Schall- und Brandschutz in Baufritz-Premiumqualität."
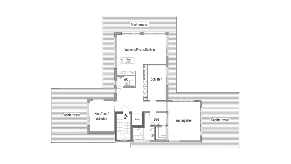
Die Grundrisse überzeugen durch weitgehende Barrierefreiheit, geringe Verkehrsflächen und eine individuelle Raumaufteilung. Sie unterscheiden sich neben der Lage vor allem von der Größe her, um so unterschiedlichen Platzansprüchen – vom alleinstehenden Single bis zu einer Familie mit zwei Kindern – Rechnung zu tragen. In diesem Mehrgenerationenhaus im Bauhaus-Stil können sich Jung und Alt wohlfühlen.
Damit die Design- und Ausstattungskultur in sämtlichen Wohnungen gleich ist, sind überall Küchen, Einbauschränke, Deckenleuchten sowie fest montierte Accessoires in den Bädern eingebaut. Für das Foyer, die Galerie und das Treppenhaus entwickelten die Bauherren zusammen mit der Kölner Feng-Shui-Beraterin Gudrun Mende ein unverwechselbares, kraftvolles Farb- und Interior-Exposé. Gartenarchitektonisch gestaltete Außenanlagen mit einem auf die Region abgestimmten Pflanzenplan komplettieren das Ensemble.
Wussten Sie, dass Sie von Steuervorteilen profitieren können, wenn Sie für mehrere Familien bauen möchten? Durch gezielte Abschreibungen, Sonderabschreibungen und Steuerbegünstigungen können Sie Ihre Steuerlast erheblich senken. Entdecken Sie alle Vorteile und Möglichkeiten, steuerliche Belastungen und Finanzierungskosten zu reduzieren. Haben Sie Fragen zur Steueroptimierung für Ihr Mehrfamilienhaus? Unsere Experten stehen Ihnen bei jeder einzelnen zur Seite.