Classic XL

Classic XL

Classic XL ist eine elegante Villa im klassischen Stil mit urbanem Flair, die zu unserem Signature Homes-Konzept mit vorgefertigten Hausplänen gehört. Das großzügige, dreigeschossige Einfamilienhaus plus Keller bietet bis unters Dachgeschoss mit den markanten Giebeln bis zu sieben Schlafzimmer und fünf Bäder. Ein zusätzlicher, freistehender Baukörper zum Garten kann zum Fitnessraum oder Spa werden. Drei Autos finden in der Garage Platz. Ausgewogene Proportionen, symmetrisches Design, ornamentale Details: Stilsicher fügt sich die Architektur nach den Prinzipien des italienischen Architekten Andrea Palladio (1508-1580) in gewachsene Umgebungen. Große, raumhohe Fenster laden das natürliche Tageslicht ein. Das Dach kann wahlweise mit Tonziegeln oder Stehfalzpaneelen gedeckt werden. Die Fassade wird mit natürlichem oder gebeiztem Holz, mineralischem Putz, Naturstein oder einer Kombination aus diesen Materialien verkleidet.

Hausdaten

Bauaufgabe
Einfamilienhaus
Haustyp
Vorgeplant
Baustil
Stadthaus
Dachform
Zeltdach
Fassade
Putz
Baukörper
rechteckig
Personen
5+
Geschosse
3
Zimmeranzahl
15
Außenmaße in m
12.60 x 11.35 (Haus), 11.35 x 4.47 (Pavillon)
Wohnfläche in m² *
407
Preis ab
2.870.000 CHF i
Dafür steht Baufritz:
Individuelle Architektur
Nachhaltig & klimaschonend
Zertifizierte Wohngesundheit
Energiestandards möglich
Ausbau mit schweizer Partnern
Elektrosmog-Schutz Xund-E
Classic XL

Wertanlage und Glücksgriff zugleich

Architekt

Magnus Nilsson

Dieses werthaltige Haus haben wir ausschließlich auf der Basis nachhaltiger Materialien entwickelt. Es entspricht den höchsten Energieeffizienzstandards, wie Sie es von einem Baufritz-Haus erwarten. Die symmetrische Fassade, die zeitgemäße Innenausstattung und die hervorragende Verarbeitung machen Classic XL wie alle Häuser aus der Signature Homes-Reihe zu einem Vorzeigeobjekt zukunftsorientierten Lebens.

Classic XL

Die Varianten im Vergleich

Classic M

Gewohnt großzügig

Prägnante Formen und Sichtachsen führen die beeindruckende Optik des Hauses ins Innere fort. Das repräsentative Entrée ist eines der gestalterischen Kernelemente und zeugt von der Größe des Hauses. Die herrlich hellen Räume mit vielen bodentiefen Fenstern sind um die dreifach hohe, dramatisch geschwungene Treppe angeordnet.

Classic M

Die Details machen den Unterschied

Die ganz eigene Handschrift macht den unverwechselbaren Reiz des Hauses aus. Bei der Innengestaltung wählen Bauherren unter einer Vielzahl an Möglichkeiten. Inspirationen für stimmiges Interior liefert auch unsere HausSchneiderei.

Classic M

Lichtdurchflutet

Tageslicht scheint durch das runde Oberlicht im Treppenhaus zu fließen. Und gibt den Blick auf den nächtlichen Sternenhimmel frei, wenn man sich abends auf den Weg in eines der sieben Schlafzimmer macht. Besonders behaglich sind vielleicht die Zimmer unter dem Dach: unter schrägen Decken und Dachfenstern geplant.

Classic M

Von Haus aus gelungen

Mit den Signature Homes machen die internationalen Baufritz-Architekten gelungene Grundrisse zum Maßstab exklusiven Lebens. Anspruchsvolle Bauherren erkennen die Klasse direkt. Und schätzen den Anspruch, für den Baufritz bekannt ist. Zum Einsatz kommen ausschließlich zertifizierte Naturmaterialien. Mit allen Freiheiten bei der Gestaltung der Räume. Damit Classic XL zum Unikat wird.

Die Varianten im Vergleich

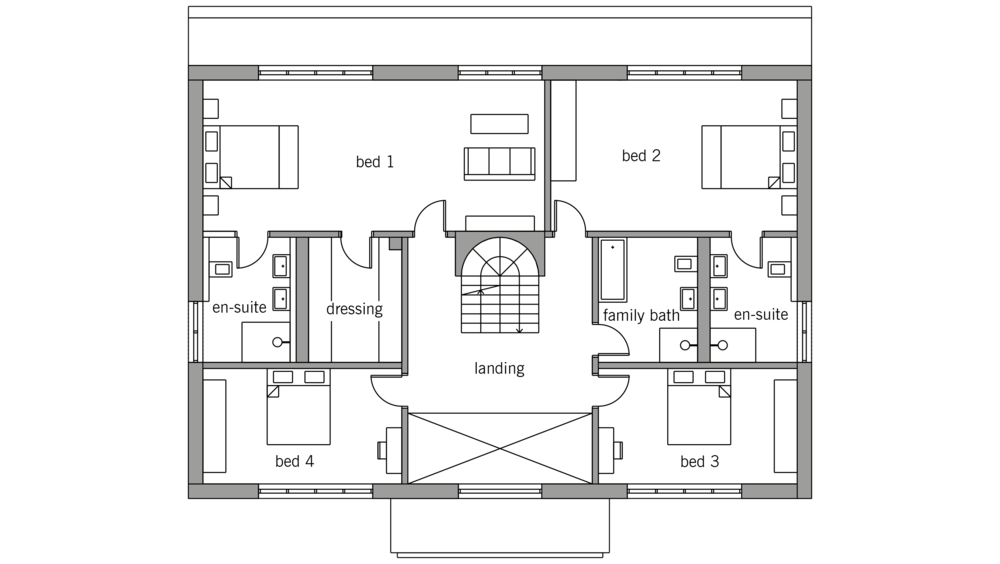
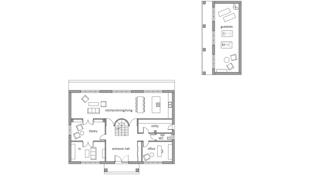
Grundrisse

EG

Classic XL

OG

Classic XL

DG

Classic XL

Pavillon

Classic XL

Garage

Classic XL

KG

Classic XL

Die Grundrisse dienen nur zur Veranschaulichungszwecken.

Classic XL

Baufritz Signature Homes. Schneller schöner bauen. Mit persönlicher Handschrift.
Und dem Anspruch von Baufritz.

Die Signature Homes von Baufritz stehen für eine Premium-Philosophie des Wohnens in Holz. Mit einzigartigen architektonischen Möglichkeiten und innovativem planerischem Konzept. Jedes Haus ist bereits sorgfältig vorgeplant. So lassen sich Bauvorhaben enorm beschleunigen, mit größter Sicherheit bei Budget und Qualität, für unkomplizierte Genehmigungs- und Bauprozesse. Wählen Sie aus der Barn Collection und der Classic Collection. Und sehen Sie, mit welchem Anspruch unsere Hausdesigner an die Signature Homes gehen.

Unsere Signature Homes

* Die Quadratmeter-Angaben beziehen sich auf die Nettogeschossfläche und sind nicht gleichzusetzen mit der Wohnfläche nach DIN. Bei Häusern mit Kniestock (z. B. Doppelhaus) kann die angegebene Zahl dementsprechende Abweichungen zwischen der angegebenen Bodenfläche und Wohnfläche aufweisen.

Diese Themen könnten Sie auch interessieren

14 Schritte bis zu Ihrem Wunschhaus

Es sind exakt 14 Schritte bis zu Ihrem neuen Baufritz-Zuhause. Warum wir Ihnen das versprechen können? Weil wir wissen, wie …

14 Schritte bis zu Ihrem Wunschaus

10 Gründe für Baufritz

Haushersteller gibt es viele. Welche Kriterien wirklich zählen? Machen Sie einfach den Vergleich ...

10 Gründe für Baufritz

Sie haben Fragen?

Finden Sie Ihren persönlichen Fachberater ganz in Ihrer Nähe und vereinbaren Sie gleich einen Termin.

Fachberater-Suche