
14 Schritte bis zu Ihrem Wunschhaus
Es sind exakt 14 Schritte bis zu Ihrem neuen Baufritz-Zuhause. Warum wir Ihnen das versprechen können? Weil wir wissen, wie …
Sie möchten alle Vorteile von myBaufritz nutzen? Dann melden Sie sich bitte jetzt an.
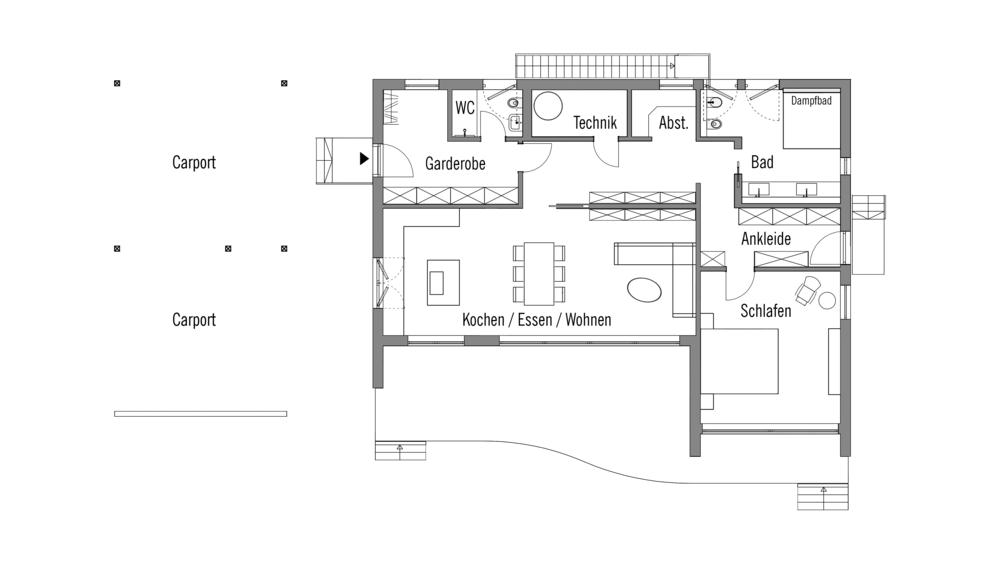
Kundenhaus
Architekt
Stephan Rehm
"Bei diesem individuell geplanten Bungalow in elegantem Rot mit ca. 150 m² Wohnfläche ist der Gemeinschaftsteil des Hauses offen und einladend gehalten. Ein besonderer Kundenwunsch war unter anderem ein Luxus-Dampfbad mit steuerbaren Stimmungslichtwechsler. Die übrigen Räume der modernen Architektur sind so angeordnet, dass ein separater Bereich entsteht. Zum parkähnlichen Garten am Seeufer öffnet sich die Architektur mit großen Glas-Schiebetüren. Ein weiteres Highlight ist das integrierte Ansichts- und Sonnendeck auf dem Flachdach. Von hier genießt man den weiten Blick über den angrenzenden See."