
14 Schritte bis zu Ihrem Wunschhaus
Es sind exakt 14 Schritte bis zu Ihrem neuen Baufritz-Zuhause. Warum wir Ihnen das versprechen können? Weil wir wissen, wie …
Sie möchten alle Vorteile von myBaufritz nutzen? Dann melden Sie sich bitte jetzt an.
Kundenhaus
Generationenwohnen durch Nachverdichtung
Bauherr
Christian Bienert
Es war für uns klar, dass wir ein Holzhaus bauen wollen. Schon die Eltern meiner Frau haben sich für Holz entschieden. Raumklima und Wohlfühlatmosphäre sind nicht vergleichbar mit einem Betonhaus. Den Zuschlag für ein Grundstück im Neubaugebiet hatten wir schon sicher. Also zusätzliche Fläche versiegeln? Baugrund neu erschließen? Uns finanziell einschränken? Und dann vielleicht ziemlich beengt wohnen? Nein.
aus eins mach zwei
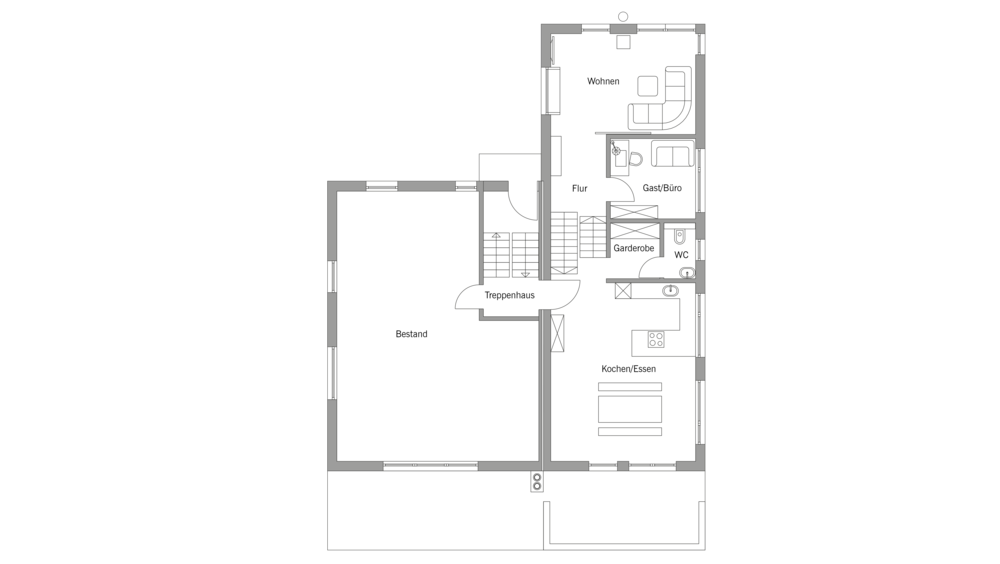
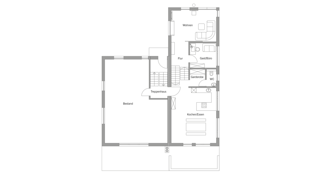
Von außen scheinen die zwei Wohneinheiten wie ein Haus. Der gemeinsame Zugang erfolgt durch das Bestandshaus, durch eine gemeinsame Haustür. Der zweieinhalbgeschossige Neubau mit der Holzfassade aus gehobelter Fichte mit grauer Versteinerungslasur fügt sich harmonisch in die Landschaft und die gewachsene Wohnumgebung ein und ergibt zugleich ein natürliches Ensemble mit dem Bestand. Im Zuge der Erweiterung wurde übrigens auch der Altbau energetisch saniert, die Außenwände gedämmt und Fenster ausgetauscht.
raffinesse zieht sich durch
Das besondere Geschick der Planung erschließt sich im Inneren des Hauses: Der Neubau verfügt über ein besonderes Splitlevel-Design, das unterschiedliche Wohnbereiche des Familienlebens organisiert. Auf Ebene 1 mit dem wunderschönen Eichenholzboden und der sichtbaren Holzbalkendecke befinden sich Eingangsbereich mit Garderobe und WC, offene Küche und Essbereich. Über eine gerade Holztreppe, bewusst gestalterisches Element, gelangt man auf die zweite Ebene.
Nachhaltig und zukunftssicher: Jetzt Broschüre anfordern
Mit gezielten Modernisierungen schaffen Sie ein zukunftssicheres und energieeffizientes Zuhause im Einklang mit der Natur.
In unserer Bauen im Bestand-Broschüre erfahren Sie, wie Sie mit Baufritz gesundes Wohnen und innovative Sanierungslösungen vereinen!
raumwunder dank splitlevels
So offen sich das Konzept der Halbgeschosse auch präsentiert: Wo Ruhe gebraucht wird, ist Ruhe eingeplant. Auf Ebene 2 gibt es das räumlich getrennte Büro, die einladende Bibliothek und den Wohnbereich, der sich praktischerweise mit einer filzbezogenen Schiebetür aus Holz abtrennen lässt. Lieblingsplatz der Familie? Eindeutig das Sitzfenster im Wohnzimmer mit Blick auf die Enten im Teich draußen.
Inspiration aus dem Musterhaus
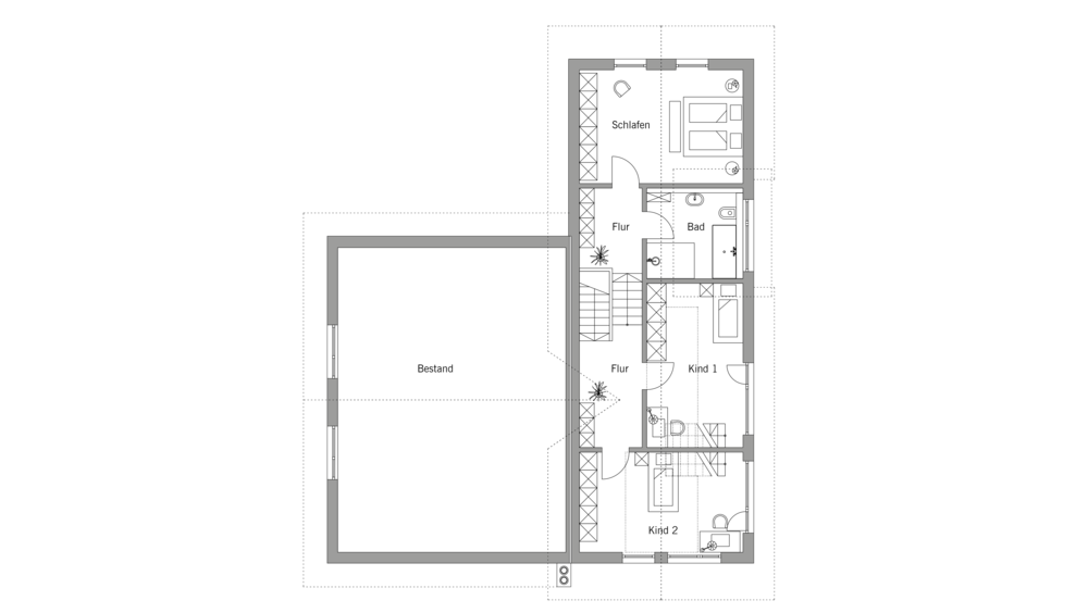
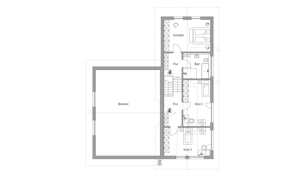
Kinder brauchen Platz zum Spielen. Auch das gehört zum Leben im Baufritz-Familienhaus. Die Bienerts wurden durch den Besuch der Musterhäuser von Baufritz inspiriert und haben dabei die Idee von höheren Decken in den Kinderzimmern mitgenommen. Die beiden geräumigen Zimmer, jeweils mit 20 m2 und Galerie, befinden sich, wie das Elternschlafzimmer und das Familienbad, auf Ebene drei.
"Wir sagen Ja zum Generationenwohnen –
mit dem richtigen Baupartner und eigenen Entscheidungen, die alle glücklich machen. Unser Bauvorhaben hat Schule gemacht: Zwei Häuser weiter baut eine junge Familie ebenfalls auf dem Grundstück der Eltern."
Blühendes Leben bei aller Privatsphäre
Bei aller familiären Verbundenheit – auch den Wunsch nach Privatsphäre hat man gemeinsam bedacht, bis hin zum Garten. Der wunderschöne alte Baumbestand wurde gewahrt. Der neue kleine Teich hat sich unter den Enten der Region bereits herumgesprochen. Ein Hochbeet trennt die Gartenanteile voneinander. Hohe Gräser bilden einen Sichtschutz zur Feuerstelle der jungen Familie. Und seit Kurzem gibt es auch eine Wildblumenwiese. Aus dem Wohnzimmer blicken die Bienerts direkt in die unverbaubare Natur.
Vorbildliches Bauen finanziell lohnenswert
Zunehmender Flächenversiegelung entgegenwirken, stattdessen bestehende Ansiedelungen lebendig halten, das ist unsere Prämisse. Und der Anspruch unserer Planer und Architekten mit der jahrzehntelangen Expertise bei der Nachverdichtung. Weil mit der Erweiterung zugleich der Altbau energetisch optimiert wurde, sind entsprechende Förderungen möglich. Für Einzelmaßnahmen wie etwa Außenwände oder Fenster konnten hier über die KfW Kredit und Tilgungszuschuss, für die Baubegleitung ein Direktzuschuss in Anspruch genommen werden.
Bestellen Sie Ihre Unterlagen und lassen Sie sich inspirieren
Sie möchten wissen, was Sie erwartet?
Individuelle Architektur: Einfamilienhäusern, Doppelhäuser, Bungalows, Anbau, Aufstockung.
Budget: ab 600.000 CHF
Wohnfläche: ab 100 m²
Ausgewählte Lieblingsentwürfe. Zum Verlieben. Zum Individualisieren. Preisliste inklusive.
Budget: ab 4.900 CHF/m²
Wohnfläche: bis 170 m²
"The Home"
Internationale, maßgeschneiderte Architekturprojekte
Budget: ab 1.400.000 CHF
Wohnfläche: ab 200 m²
Ökologisch und zukunftsorientiert in echte Werte investieren: 48 Seiten Mehrfamilienhausbau.
Budget: ab 1.400.000 CHF
ab 3 Wohneinheiten