
14 Schritte bis zu Ihrem Wunschhaus
Es sind exakt 14 Schritte bis zu Ihrem neuen Baufritz-Zuhause. Warum wir Ihnen das versprechen können? Weil wir wissen, wie …
Sie möchten alle Vorteile von myBaufritz nutzen? Dann melden Sie sich bitte jetzt an.
Kundenhaus
Designer
Alfredo Häberli
"Wir haben erneut festgestellt, dass Ökologie und Gestaltung nicht im Widerspruch zueinander stehen, sondern im Gegenteil, Design einen Mehrwert schafft. Vielfältige Strukturen, Oberflächen und Materialien bilden eine Vielfalt von Form und Farbe, die ich als direkte Antwort auf die sich stets verändernde Natur rund um das Haus verstehe. Mit Waldsicht ist unsere Aussicht auf das Wohnen von morgen heute gebaute Wirklichkeit geworden."
Die Familie nahe Bern hat Baufritz in Zusammenarbeit mit dem renommierten Designer und Innenarchitekten Alfredo Häberli nahezu freie Hand gelassen. Denn seine Entwürfe wurden schon zuvor sehr geschätzt. Wie sich das Leben im Design-Objekt anfühlt, schildern die vier hier. Denn tatsächlich war die Entstehungsgeschichte dann doch anders als gedacht ...
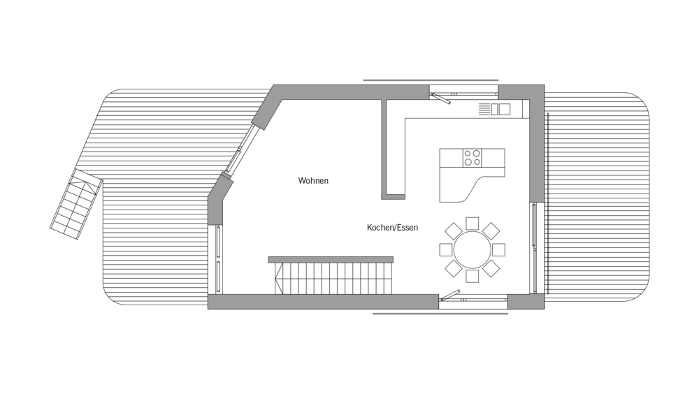
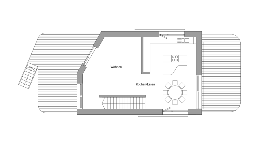
Waldsicht offenbart im Namen, welches Element entscheidend für der Entwicklung des Gebäudes war: der Wald, der unmittelbar an das Grundstück angrenzt. Die Bauherren wünschten sich ein freistehendes Wohnhaus für eine vierköpfige Familie: Zwei Kinderzimmer, ein großzügiges Schlafzimmer, ein Arbeitsplatz mit Bibliothek und Gästenische, eine Terrasse in der Morgensonne und eine in der Abendsonne. Diese Anforderungen wurden 1:1 in ein Raumkonzept umgesetzt, in derselben gestalterischen Sprache wie beim Designhaus Haussicht. Waldsicht ist von innen nach außen gedacht, vom angestrebten Raumgefühl ausgehend hin zur Gebäudearchitektur.
Dagmar Fritz-Kramer über die Zusammenarbeit
„Es war eigentlich nur eine Frage der Zeit, wann aus der Vision ein Prototyp werden würde. Auch bei diesem Projekt hat mich das Zusammenspiel von Architektur und Design begeistert – mit dem Ergebnis, dass Waldsicht ein neues Familienmitglied mit einem ganz eigenen Charakter geworden ist.“
Alfredo Häberli zu Waldsicht
„Wir haben erneut festgestellt, dass Ökologie und Gestaltung nicht im Widerspruch zueinander stehen, sondern im Gegenteil, Design einen Mehrwert schafft. Vielfältige Strukturen, Oberflächen und Materialien bilden eine Vielfalt von Form und Farbe, die ich als direkte Antwort auf die sich stets verändernde Natur rund um das Designhaus verstehe. Mit Waldsicht ist unsere Aussicht auf das Wohnen von morgen heute gebaute Wirklichkeit geworden.“