
14 Schritte bis zu Ihrem Wunschhaus
Es sind exakt 14 Schritte bis zu Ihrem neuen Baufritz-Zuhause. Warum wir Ihnen das versprechen können? Weil wir wissen, wie …
Sie möchten alle Vorteile von myBaufritz nutzen? Dann melden Sie sich bitte jetzt an.
Kundenhaus
Architekt
Hans-Georg Stotz
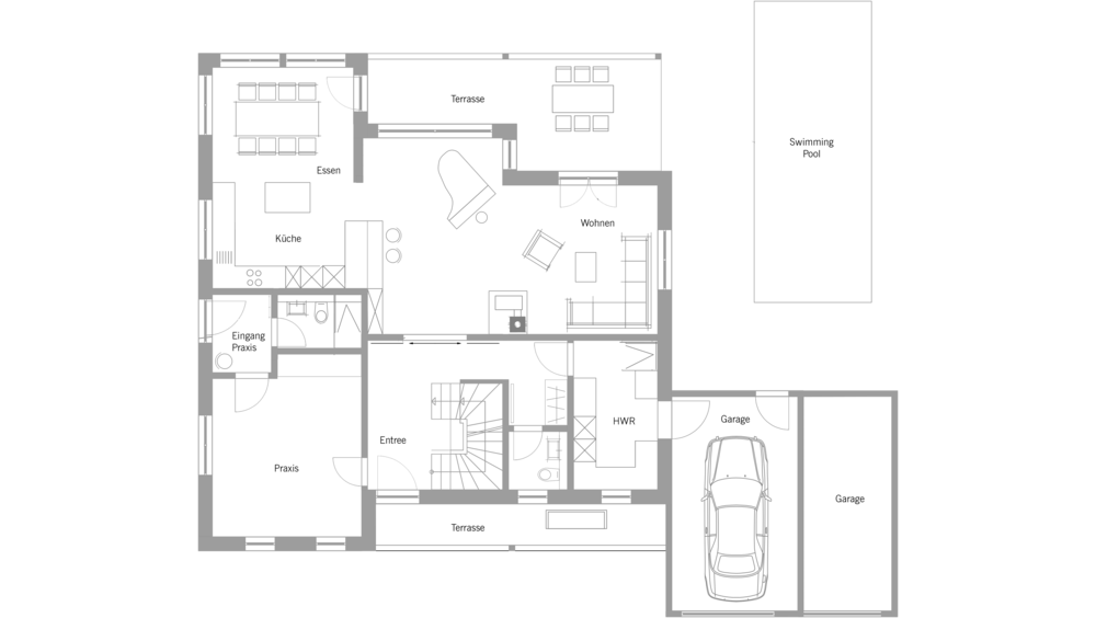
"Die Familie van Dyck verwirklichte sich ihren persönlichen Wohntraum im amerikanischen Stil mit mediterranen Akzenten. Besondere Anforderung war ein integrierter, aber doch separierter Praxisbereich, in dem der Bauherr und praktizierende Psychologe von zu Hause aus seiner ärztlichen Tätigkeit nachgehen kann."
Gestalterisch wurde das Domizil ganz nach den Vorstellungen und Wünschen der Bauherren im New England-Look gestaltet. Seinen besonderen Charakter unterstreicht die Landhaus-typische Holzfassade in Schlammfarben und creme-farbenen Akzenten, die in Kombination mit den Dachgiebeln und verspielt-romantischen Rundbogenfenstern den amerikanischen Charme nach Außen tragen. Auch aufwendige Architekturdetails, wie die Fenster im Vintage-Look mit innenliegenden Sprossen oder die überdachte Veranda zur Gartenseite hin, vollenden das Stilbild.
Bewusst Grenzen ziehen
Beim Betreten der Wohnräume spürt man unmittelbar die hohen Ansprüche an die Innenraumgestaltung, die ganz nach den Wünschen und Vorstellungen der Bauherren umgesetzt wurde. In Kontrast zu Außen findet sich im Inneren auch eine spanisch-mediterrane Handschrift wieder, so etwa in Ornament-Fliesen oder rötlichen Farbtönen.
Gelebte Work-Life-Balance
Die Terrasse, die von einem Naturteich in der Flucht des Gartens begrenzt wird, stellt ein weiteres Highlight des Hauses dar. In Verlängerung der Garage haben die Bauherren zudem einen schlichten Garten-Swimmingspool realisiert, der mittels einer Sichtschutzmauer mit eingelassenem Buntglas-Ornament vom östlichen Nachbargrundstück blickgeschützt ist.