Architekturentwurf Lichtblick Terrassenansicht

Kundenhaus

Lichtblick

Wenn man von einem Lichtblick spricht, so dreht es sich meist um ein freudiges Ereignis, den Auftakt einer neue Ära oder ein bestimmtes Momentum, das zum eintönigen Ist-Zustand kontrastiert – und damit den Weg in eine bessere Zukunft weisen soll. Auch die Emotionen des Wandels spielen dabei eine zentrale Rolle: von gespannter (Vor-)Freude und erwartungsvollen Glücksgefühlen über Zukunftsträumereien bis hin zu dem Punkt, an dem das Herbeigesehnte die neue, bessere Zukunft wird. Diesem Paradigma folgend und unter höchsten Ansprüchen des Klimaschutzes und der Wohngesundheit, gelang es mit dem neuen Architekturentwurf "Lichtblick" ein zukunftsweisendes Haus zu planen, das diese Emotionen und Stärken vermittelt – und ein neues Kapitel des nachhaltigen Bauens einläutet, das konsequent für Nachhaltigkeit, Klimaschütz und Wohngesundheit steht.

Hausdaten

Bauaufgabe
Einfamilienhaus
Haustyp
Individuell
Baustil
Moderne Klassiker
Dachform
Satteldach
Fassade
Holz
Baukörper
schmal
Personen
2 - 4
Geschosse
2
Zimmeranzahl
4
Außenmaße in m
15,08 x 5,70
10,08 x 3,85
Wohnfläche in m² *
127
Preis ab
785.000 CHF i
Architekturentwurf Lichtblick Anbau

Erster in Deutschland bei Gesundheit und Klimaschutz

Ein "Lichtblick" für alle, die sich viel Freiraum auf wenig Grundfläche wünschen: Das bietet der gleichnamige Lieblingsentwurf unserer Hausdesigner. Sein schlanker Baukörper ist ideal für schmale Restgrundstücke, wo die kluge Kompakt-Architektur 130 m² Wohnfläche bis ins kleinste Detail nutzt. In den beiden Kinderzimmern oder im offenen Büro im Dachgeschoss. Und vielen versteckten Stauraumlösungen im ganzen Haus.

Architekturentwurf Lichtblick Eingangsbereich Dämmerungsaufnahme

Bereits von außen zeigt sich das geradlinig geschnittene und kompakte Ökohaus in einem naturbelassenen, hölzernen Gewand – verschalt mit einer vollkommen unbehandelten, horizontal verlaufenden, "Credo"-Fichtenfassade und akzentuierten Holzdekorplatten aus Weißtanne zwischen den Fensterflächen. Dies trifft nicht nur aus Nachhaltigkeitsaspekten den Zeitgeist, sondern auch die moderne Stilvorliebe vieler junger Familien oder Paare. Auf knapp 130 Quadratmetern, verteilt auf zwei Geschosse und an die "Vorarlberger Architektur" angelehnt, gelang es den Planern, das Haus überdurchschnittlich umwelt- und klimaschützend zu entwerfen, ohne ihm seiner modernen Erscheinung zu berauben. Mit optischen Highlights, wie dem waagrecht liegenden Übereck-Fenster, das zum Sterneschauen von der Badewanne aus einlädt, oder der Möglichkeit, optional auch zwei Terrassenflächen zu realisieren, die die bewusste Naturliebe unterstreichen, überzeugt der Architekturentwurf bereits beim ersten Anblick mit charmanten Details und einer kompromisslosen Charakterstärke.
 
Der stylische Naturlook, der durch die minimalistische Formsprache und die hellen Erdtöne untermalt wird, lässt den Entwurf zu einem nachhaltigen und dennoch noch nicht dagewesenen Statement für eine neue Ära werden. Die tendenziell eher junge und individualistische Außenwirkung akzentuiert, was sich auch im Hausinnern konsequent fortsetzt und das Hauskonzept zu einer formschönen, stimmigen Einheit werden lässt.

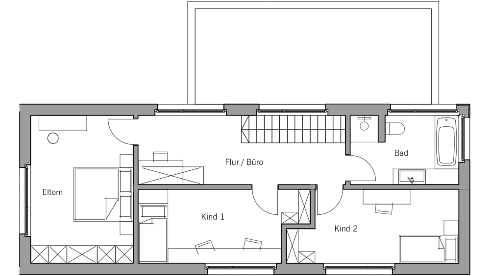
Grundrisse

EG

Architekturentwurf Lichtblick Grundriss Ergeschoss

OG

Architekturentwurf Lichtblick Grundriss Obergeschoss

Verlieben kostet nichts

Laden Sie sich deshalb gleich hier umfangreiche Informationsunterlagen zu Ihrem Lieblingsentwurf "Lichtblick" herunter - Preisliste und Einrichtungstipps vom Experten inklusive! Alternativ können Sie sich die Unterlagen auch ganz bequem nach Hause schicken.

oder

Mehr über Architekturentwürfe erfahren

Architekturentwurf Ideenreich Broschüre weißer Hintergrund

Diese Themen könnten Sie auch interessieren

14 Schritte bis zu Ihrem Wunschhaus

Es sind exakt 14 Schritte bis zu Ihrem neuen Baufritz-Zuhause. Warum wir Ihnen das versprechen können? Weil wir wissen, wie …

14 Schritte bis zu Ihrem Wunschaus

10 Gründe für Baufritz

Haushersteller gibt es viele. Welche Kriterien wirklich zählen? Machen Sie einfach den Vergleich ...

10 Gründe für Baufritz

Sie haben Fragen?

Finden Sie Ihren persönlichen Fachberater ganz in Ihrer Nähe und vereinbaren Sie gleich einen Termin.

Fachberater-Suche