
14 Schritte bis zu Ihrem Wunschhaus
Es sind exakt 14 Schritte bis zu Ihrem neuen Baufritz-Zuhause. Warum wir Ihnen das versprechen können? Weil wir wissen, wie …
Sie möchten alle Vorteile von myBaufritz nutzen? Dann melden Sie sich bitte jetzt an.
Kundenhaus
Architekt
Simone Pretelli
"Bei diesem Mehrfamilienhaus-Projekt entschieden sich die Bauherren für ein modernes Gebäude mit drei Wohneinheiten, das sich harmonisch neben dem alten Bauernhaus in die Landschaft fügt."
Gutes KLima von grund auf
Ein heller Eichenboden - geölte Landhausdielen - darf auf allen Etagen einziehen und sorgt für ein wunderbar warmes Wohnraumklima.
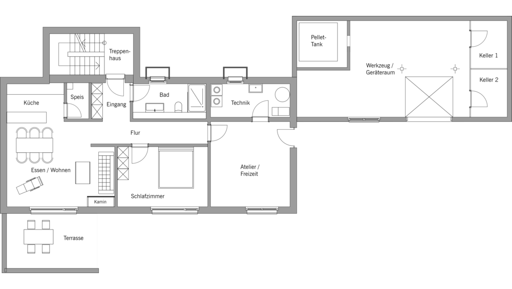
Im Schweizer Kanton Waadt haben Dora Herndl und ihr Sohn Sebastien gemeinsam mit Baufritz ein Mehrfamilienhaus errichtet. Warum gleich drei Wohneinheiten in einem neuen Gebäude neben dem alten Bauernhaus entstehen sollten und warum sie so viel Lob für ihr aktuelles Wohnkonzept erhalten, erzählen die beiden gerne.
Wussten Sie, dass Sie von Steuervorteilen profitieren können, wenn Sie für mehrere Familien bauen möchten? Durch gezielte Abschreibungen, Sonderabschreibungen und Steuerbegünstigungen können Sie Ihre Steuerlast erheblich senken. Entdecken Sie alle Vorteile und Möglichkeiten, steuerliche Belastungen und Finanzierungskosten zu reduzieren. Haben Sie Fragen zur Steueroptimierung für Ihr Mehrfamilienhaus? Unsere Experten stehen Ihnen bei jeder einzelnen zur Seite.