Clifton

Kundenhaus

Clifton

Ein klares Bild von Innengestaltung und Außenanlagen vor Augen – entstanden ist ein Designhaus, das Individualität und Wohlfühlqualität vereint, mit einer modernen Kombination aus Flach- und Pultdach spielt und erst auf den zweiten Blick Größe demonstriert. Der natürliche Pool und die Gartengestaltung schmiegen sich in die Hügellandschaft, sind ideal auf das Haus abgestimmt und bilden eine Einheit. Großen Anteil hat die gekonnte Symbiose aus Mineralputzfassade und naturbelassener Holzfassade. Offenheit auch beim lichtdurchfluteten Eingangsbereich und im Wohn-Ess- und Kochbereich mit freistehender Kochinsel. Diskrete Atmosphäre dagegen im Schlafzimmer mit hohem Kniestock und charmanter Dachschräge.

Hausdaten

Bauaufgabe
Einfamilienhaus
Haustyp
Individual
Baustil
Modern / Design
Dachform
Flachdach
Fassade
Holz-Putz-Kombination
Baukörper
rechteckig
Personen
2 - 5
Geschosse
2
Zimmeranzahl
8
Außenmaße in m
22,51 x 9,34
Wohnfläche in m² *
261
Preis ab
2.340.000 CHF i
Dafür steht Baufritz:
Zertifizierte Wohngesundheit
Nachhaltig & klimaschonend
Individuelle Architektur
Energiestandards möglich
Ausbau mit schweizer Partnern
Clifton

Nachhaltiger Charme des Holzhauses mitten im Wald

Architekt

Anthony Cooper

"Auf dem weitläufigen Gelände befand sich ein Haus mit flachem Dach, welches modern, offen und hell war und einen direkten Zugang zum Garten und den Außenbereichen hatte. Die Bauherren wollten diese Eigenschaften in einem Neubau nachbilden und ein großes, repräsentatives Designhaus schaffen. Die Materialien sollten hochwertig und gut verarbeitet sein und sich harmonisch in die natürliche Umgebung einfügen."

Clifton
Clifton
Clifton
Clifton
Clifton
Clifton
Clifton

Freistehende Kochinsel

Gastfreundschaft und Gastronomieerfahrung der Bauherren zeigen sich bei der Küchenauswahl, wo man sich gezielt von einer industriellen Profi-Küche inspirieren ließ. Die Kochinsel wurde eigens angefertigt und mit viel verstecktem Stauraum, einer offenen Anordnung und einem Tresen geplant, an dem sich Freunde und Gäste entspannt zusammenfinden können.

Clifton

Drinnen wie draußen

Der Blick aus den großen Glasfronten und vom durchgängigen Balkon mit Glasgeländer reicht über ein weites Tal. So wird ein ein fließender Übergang vom Innen- zum Außenbereich des Designhauses geschaffen. Diese Freiräume sind wichtiges Design-Statement und tragen für die Baufamilie entscheidend zum angenehmen und natürlichen Wohnklima bei.

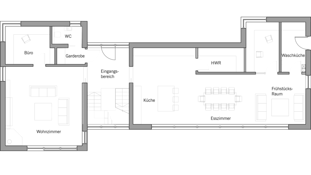
Grundrisse

EG

OG

KG

* Die Quadratmeter-Angaben beziehen sich auf die Nettogeschossfläche und sind nicht gleichzusetzen mit der Wohnfläche nach DIN. Bei Häusern mit Kniestock (z. B. Doppelhaus) kann die angegebene Zahl dementsprechende Abweichungen zwischen der angegebenen Bodenfläche und Wohnfläche aufweisen.

Diese Themen könnten Sie auch interessieren

14 Schritte bis zu Ihrem Wunschhaus

Es sind exakt 14 Schritte bis zu Ihrem neuen Baufritz-Zuhause. Warum wir Ihnen das versprechen können? Weil wir wissen, wie …

14 Schritte bis zu Ihrem Wunschaus

10 Gründe für Baufritz

Haushersteller gibt es viele. Welche Kriterien wirklich zählen? Machen Sie einfach den Vergleich ...

10 Gründe für Baufritz

Sie haben Fragen?

Finden Sie Ihren persönlichen Fachberater ganz in Ihrer Nähe und vereinbaren Sie gleich einen Termin.

Fachberater-Suche